Sold

The Braes

Thornhill, Stirling, FK8 3QH
Scroll

The Braes

The Braes

Thornhill, Stirling, FK8 3QH

Offers Over £569,000

Enjoying a peaceful rural setting on the outskirts of Thornhill, The Braes is an impressive detached villa offering spacious and flexible accommodation across two levels. Surrounded by open countryside, the property boasts beautiful, uninterrupted views and combines the tranquillity of country living with convenient access to the wider amenities of Stirling.

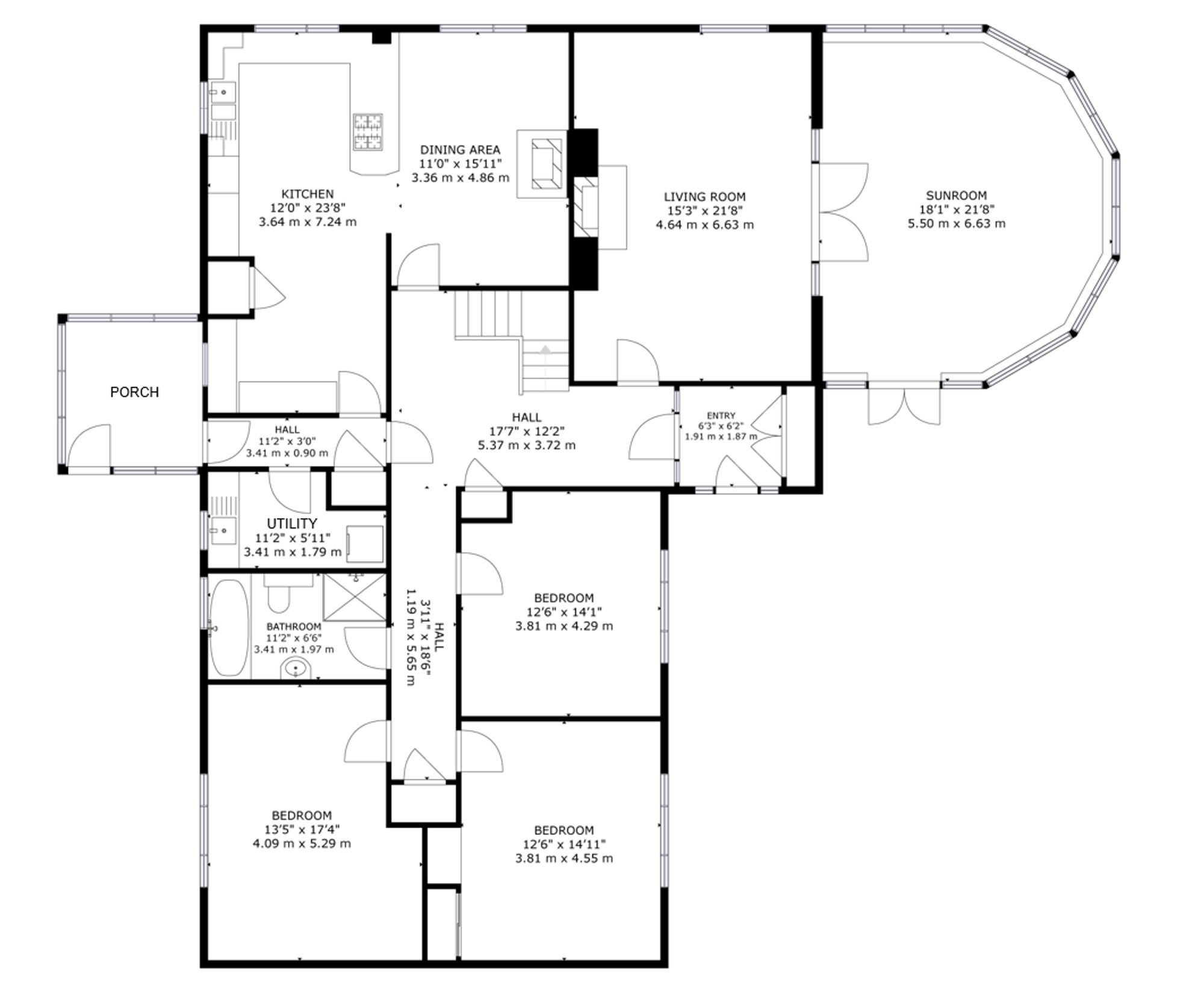
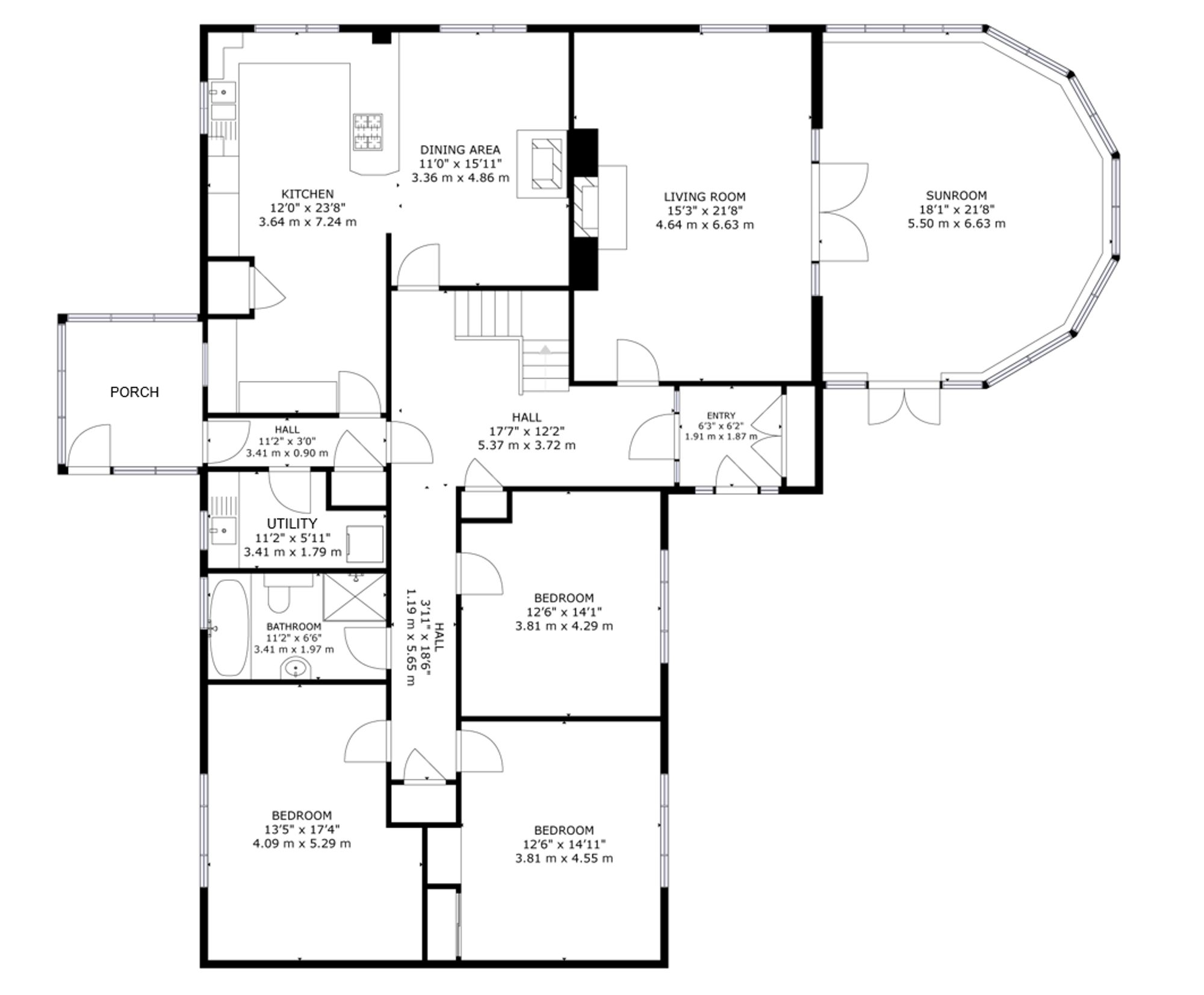
The ground floor features a welcoming entrance vestibule and hallway, leading to a bright and generous lounge, a well-appointed kitchen/diner ideal for family life and entertaining, and three comfortable bedrooms. A stylish family bathroom, a practical utility room, and a side porch enhance the home’s functionality. Large windows throughout frame the stunning vistas and flood the rooms with natural light. A charming conservatory, added to the side of the property, provides a light-filled space to enjoy the surrounding landscape in all seasons.

The upper floor continues to impress, offering a spacious master bedroom with en-suite shower room, a second en-suite bedroom, an additional bedroom, a study, and a separate shower room – offering excellent flexibility for larger families or home working.

Set within private, well-maintained garden grounds mostly enclosed by timber fencing, The Braes offers a high degree of privacy and seclusion. The expansive gardens provide a true sanctuary – perfect for gardening enthusiasts, entertaining, or simply relaxing while taking in the scenery. A driveway to the side of the property provides convenient off-street parking.

This is a rare opportunity to acquire a substantial and versatile home in a scenic location, ideal for those seeking rural living without compromising on space or connectivity.

Thornhill is a charming and well-regarded village situated in the heart of rural Stirlingshire. Surrounded by rolling countryside, the area is a haven for outdoor enthusiasts, with a wealth of scenic walking, cycling, and wildlife-watching opportunities on the doorstep. Despite its peaceful setting, Thornhill is just a short drive from the historic city of Stirling and the popular towns of Dunblane and Callander, offering easy access to a wide range of shops, schools, and transport links. The community enjoys a relaxed pace of life while remaining well connected to central Scotland and beyond.

Early viewing is highly recommended to fully appreciate all that this exceptional home has to offer.

Key Features

  • 6 Bedrooms
  • 4 Bathrooms
  • Detached House

Interested in this Property?

Make an enquiry via email

"*" indicates required fields

This field is for validation purposes and should be left unchanged.
Please use valid format e.g. 07123456789, +44 7123456789, +447123456789 #123, (07123) 456 789, etc
GDPR Consent*

OR

Contact our local expert or request a callback

Julie Martin
t. 01786 471777
Email Julie Martin Request A Callback

Request A Call Back

"*" indicates required fields

This field is for validation purposes and should be left unchanged.
Please use valid format e.g. 07123456789, +44 7123456789, +447123456789 #123, (07123) 456 789, etc
GDPR Consent*

Featured Properties

Your saved properties

clyde logo white

Property Alerts.

Stay one step ahead of the market. Register with us today to receive property alters before the portals.

Register your details and property criteria below, and we will send you updates about homes that match your search criteria.

Tip: You can add multiple options/criteria after registration.