Sold

6 Cairns Drive

Milngavie, Glasgow, G62 8AJ
Scroll

6 Cairns Drive

6 Cairns Drive

Milngavie, Glasgow, G62 8AJ

Offers Over £675,000

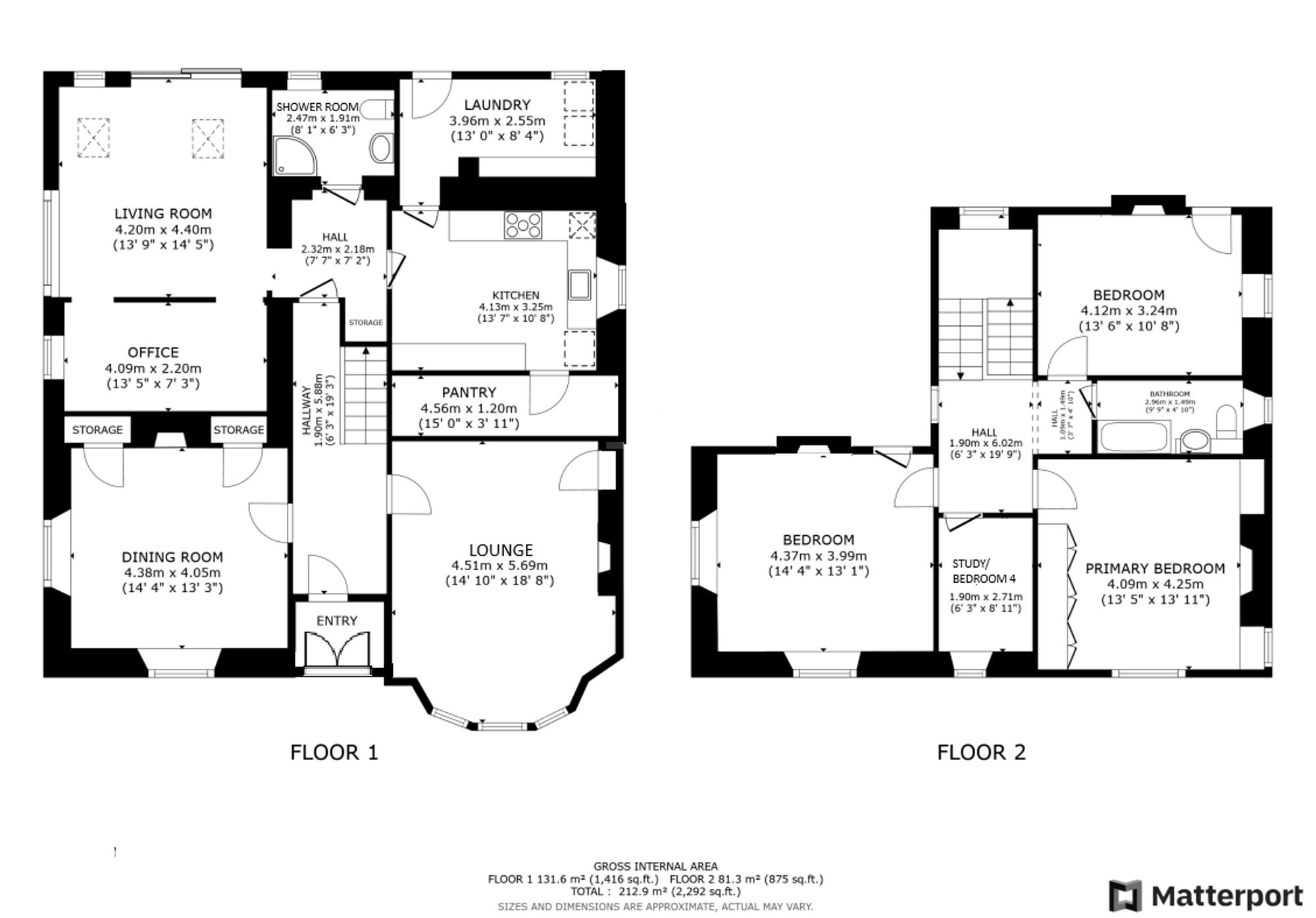
This charming detached four-bedroom blonde sandstone Edwardian villa is nestled in one of Milngavie’s most desirable locations. The property has been thoughtfully extended to create additional contemporary living space while maintaining its traditional character and charm. Upon arrival, the front door opens into a tiled porch which leads to a welcoming reception hallway featuring a solid oak floor, cast-iron radiator, and the original wooden staircase.

At the front of the house, the spacious lounge boasts dual aspects and a large bay window facing south with double-glazed sash and case windows framed by wood panelling. There is a stunning feature fireplace with a living flame fire, cast-iron radiators, a press cupboard and decorative ceiling rose. The natural wood finishes on the doors, panelling and skirting add warmth and character to the room. Adjacent to the lounge is a delightful front-facing dining room, which can also serve as a fifth bedroom. This room also benefits from natural wood finishes, dual aspects, large double-glazed sash and case windows with wood panelling, and cast iron radiators. It has an open fire with original mahogany mantel-piece and Westmorland slate surround, two press cupboards, and ceiling rose. It also has a solid oak floor.

The back hallway leads through to a well-appointed kitchen, fitted with cream Shaker-style cabinetry, wooden worktops, and a classic Belfast sink. The double-glazed window looks over the side garden with fruit trees. Integrated appliances include a gas hob with extractor fan and an electric oven. Off the kitchen, a walk-in pantry/storage area overlooks the side garden, and a further generously sized utility area offers direct access to the rear garden.

The ground floor also features a bright, airy extension with the main area being used currently as a family room, but which would also make a stunning dining room overlooking the attractive rear garden. This room features a lovely clerestory window to the west, Velux windows in the roof and sliding doors that open onto the garden. The extension also contains a useful study area, providing flexible space ideal for home working or quiet reading, and a modern shower room.

A beautiful staircase ascends to a mid-landing, highlighted by a striking stained glass window (which has been double-glazed) and cast iron radiator, then continues to the top landing which boasts a vaulted ceiling, an elegant arched feature, and another stained glass window. The upper floor comprises three spacious double bedrooms all with the original tiled fireplaces as well as a single bedroom or study, providing flexible accommodation to suit a variety of needs. The principal bedroom is particularly impressive with dual aspects to the east and south, feature fireplace, double-glazed sash and case windows, and vanity unit with sink and marble top. The second bedroom also features dual aspect double-glazed sash and case windows to the south and west, and fireplace. Bedroom 3 benefits from a double-glazed window to the east, and also has a fireplace and small vanity unit. Bedroom 4 offers access to the loft via a Ramsay ladder. Completing this floor is a stylish family bathroom with a three-piece suite and an over-bath shower.

Externally, the property has a gravel driveway with ample parking for two or more cars leading to a brick built garage. The front garden has a grass lawn bordered by mature hedging, shrubs, herbaceous plants, and a magnificent pear tree. The private enclosed rear garden provides a peaceful setting with a lawn, decking, two patio areas, established planting (including apple trees and soft fruit bushes), stone walls, and gates offering side access. A Malvern greenhouse and a timber shed are also included.

This wonderful home is ideally located for access to a wide range of amenities in Milngavie, with excellent schooling in both the state and private sectors. The pedestrianised town centre offers excellent shopping and services including banks, a Post Office, restaurants, Tesco store, Marks & Spencer Food Hall, and Waitrose at the nearby West Retail Park. There are numerous recreational opportunities close by, such as private gyms, the newly rebuilt Allander Sports Centre, Dougalston Golf Club, tennis and bowling clubs, and other reputable golf courses. Milngavie is also the starting point of the West Highland Way, with nearby Mugdock Country Park and the Allander and Craigmaddie Reservoirs offering scenic walking and cycling routes. For commuters, Milngavie train station, situated a short walk from the property, provides regular services to Glasgow’s West End and city centre, as well as direct trains to Edinburgh.

Key Features

  • 4 Bedrooms
  • 2 Bathrooms
  • Detached House
  • Covered area approx. 2,368 sqft
  • Council Tax Band G
  • Parking Garage
  • Front Garden

Interested in this Property?

Make an enquiry via email

"*" indicates required fields

This field is for validation purposes and should be left unchanged.
Please use valid format e.g. 07123456789, +44 7123456789, +447123456789 #123, (07123) 456 789, etc
GDPR Consent*

OR

Contact our local expert or request a callback

Clyde Property
t. 0141 570 0777
Email Clyde Property Request A Callback

Request A Call Back

"*" indicates required fields

This field is for validation purposes and should be left unchanged.
Please use valid format e.g. 07123456789, +44 7123456789, +447123456789 #123, (07123) 456 789, etc
GDPR Consent*

Featured Properties

Your saved properties

clyde logo white

Property Alerts.

Stay one step ahead of the market. Register with us today to receive property alters before the portals.

Register your details and property criteria below, and we will send you updates about homes that match your search criteria.

Tip: You can add multiple options/criteria after registration.