Ardgour 13 Heathfield Drive

Milngavie, G62 8AZ
Scroll

Ardgour 13 Heathfield Drive

Ardgour 13 Heathfield Drive

Milngavie, G62 8AZ

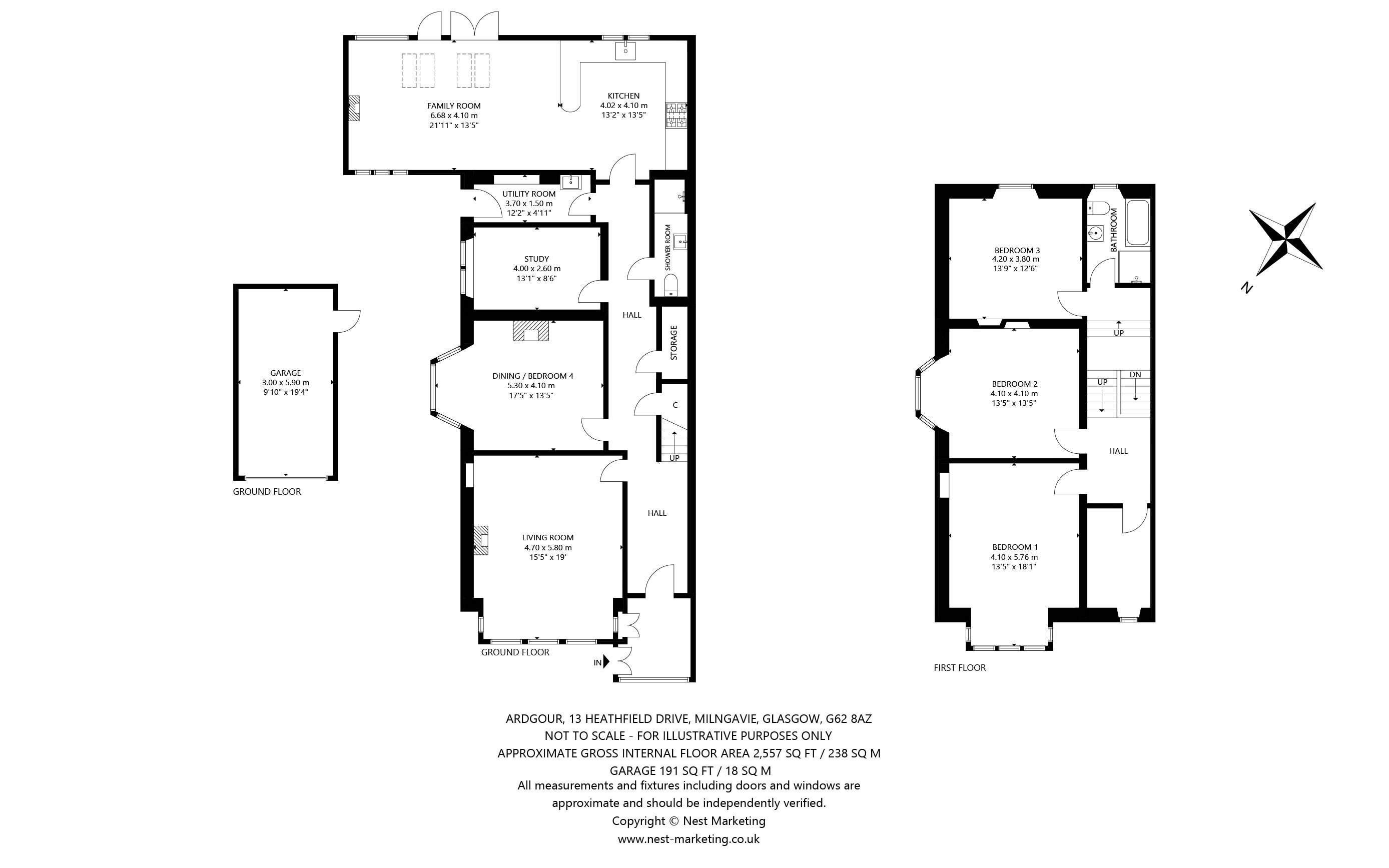
UNFURNISHED - AVAILABLE NOW - Set on the edge of the picturesque Tannoch Loch, Ardgour is an elegant Victorian Semi-Detached Villa that beautifully blends original period features with a stylish modern rear extension. Occupying a prime position at the head of a quiet and exclusive cul-de-sac of similar Victorian homes, Number 13 offers a generously proportioned and highly versatile family home.
The property is accessed via a private driveway and landscaped gardens, with steps leading to the main entrance. Early viewing is highly recommended to fully appreciate the exceptional setting, generous proportions, and quality of this outstanding Victorian home.
The accommodation begins with an entrance porch leading into a welcoming reception hallway, complete with under-stairs storage and a ground-floor shower room. To the front of the property are a stunning bay-windowed formal lounge and an equally impressive bay-windowed dining room, both showcasing the character and charm of the home. A flexible ground-floor bedroom provides additional versatility for family living or home working and shower room.
To the rear, a contemporary kitchen fitted with modern wall and base units opens into a spacious open-plan kitchen/dining/living area featuring a log-burning stove. This impressive space benefits from glazed double doors providing direct access to the rear garden. Adjacent to the kitchen is a generous utility room with fitted cupboards and a door leading outside.
A traditional staircase leads to the split upper landing, where the family bathroom is located, fitted with a three-piece white suite and a separate shower cubicle. There are three well-proportioned double bedrooms on this level, with both the principal and second bedrooms enjoying bay windows overlooking the garden, while the third bedroom features rear-facing double windows.
Further benefits include gas central heating, well-maintained gardens to the front and rear (maintained by the landlord)..
Landlord Registration Number 734965/200/24041. EPC Rating E. Clyde Property Scottish Letting Agent Registration No. LARN1902033.

EPC Band E.
Landlord Registration Number 734965/200/24041.
Clyde Property Scottish Letting Agent Registration No. LARN1902033.

Key Features

  • Double Glazing
  • Front & Rear Gardens
  • Gas Central Heating
  • Modern Wood-Burning Stove
  • Ongoing Garden Maintenance Included

Interested in this Property?

Make an enquiry via email

"*" indicates required fields

This field is for validation purposes and should be left unchanged.
Please use valid format e.g. 07123456789, +44 7123456789, +447123456789 #123, (07123) 456 789, etc
GDPR Consent*

OR

Contact our local expert or request a callback

Judy Graham
t. 0141 576 8500
Email Judy Graham Request A Callback

Request A Call Back

"*" indicates required fields

This field is for validation purposes and should be left unchanged.
Please use valid format e.g. 07123456789, +44 7123456789, +447123456789 #123, (07123) 456 789, etc
GDPR Consent*

Your saved properties

clyde logo white

Property Alerts.

Stay one step ahead of the market. Register with us today to receive property alters before the portals.

Register your details and property criteria below, and we will send you updates about homes that match your search criteria.

Tip: You can add multiple options/criteria after registration.