Under Offer

10 Littlejohn Street

Stirling, FK8 1ZG
Scroll

10 Littlejohn Street

10 Littlejohn Street

Stirling, FK8 1ZG

Fixed Price £385,000

Situated to the rear of a modern development on the outskirts of Stirling, this impressive detached home offers generous and flexible accommodation over two levels, ideal for modern living. Built in 2018, the property has been thoughtfully designed with well-proportioned rooms and high-quality finishes throughout.

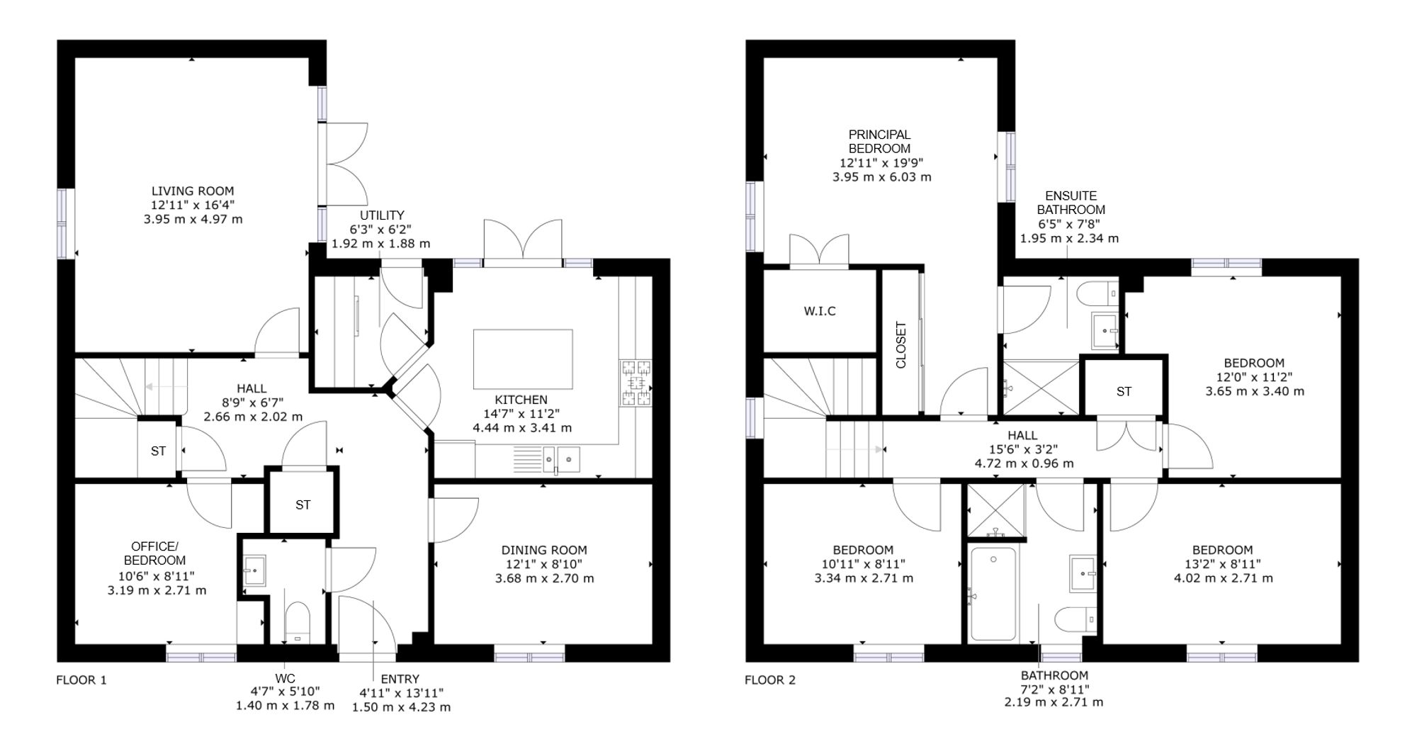
The ground floor comprises a welcoming entrance hall, a bright and comfortable lounge, and a spacious kitchen/diner that serves as the heart of the home. A separate dining room provides an ideal space for entertaining, while an additional room offers flexibility as a fifth bedroom or study. A utility room and a convenient toilet complete the ground floor layout. The study and toilet have been specifically designed with the potential to convert and create downstairs bedroom with ensuite.

Upstairs, the first floor features a spacious hall giving access to the master bedroom with its own dressing room and contemporary ensuite shower room. Three further double bedrooms offer ample space for family or guests, and a well-appointed family bathroom boasting a separate bath and shower cubicle, serves this level. 

The property sits within private garden grounds bordered by timber fencing, offering a safe and enclosed space for outdoor enjoyment. A decked seating area provides the perfect spot for relaxing or socialising. A double detached garage is located to the side, with a driveway to the front offering off-street parking for multiple vehicles.

Stirling is ideally positioned for commuting, with excellent road and rail links providing easy access to Glasgow, Edinburgh, and further afield. Local amenities and services are also within easy reach, and the surrounding homes are of similar style and construction, contributing to a cohesive and attractive neighbourhood setting.

Key Features

  • 5 Bedrooms
  • 3 Bathrooms
  • Detached House

Interested in this Property?

Make an enquiry via email

"*" indicates required fields

This field is for validation purposes and should be left unchanged.
Please use valid format e.g. 07123456789, +44 7123456789, +447123456789 #123, (07123) 456 789, etc
GDPR Consent*

OR

Contact our local expert or request a callback

Tara Sinclair
t. 01786 471777
Email Tara Sinclair Request A Callback

Request A Call Back

"*" indicates required fields

This field is for validation purposes and should be left unchanged.
Please use valid format e.g. 07123456789, +44 7123456789, +447123456789 #123, (07123) 456 789, etc
GDPR Consent*

Featured Properties

Your saved properties

clyde logo white

Property Alerts.

Stay one step ahead of the market. Register with us today to receive property alters before the portals.

Register your details and property criteria below, and we will send you updates about homes that match your search criteria.

Tip: You can add multiple options/criteria after registration.