Sold

Craig Park Townhead

Auchterarder, PH3 1JG
Scroll

Craig Park Townhead

Craig Park Townhead

Auchterarder, PH3 1JG

Offers Over £450,000

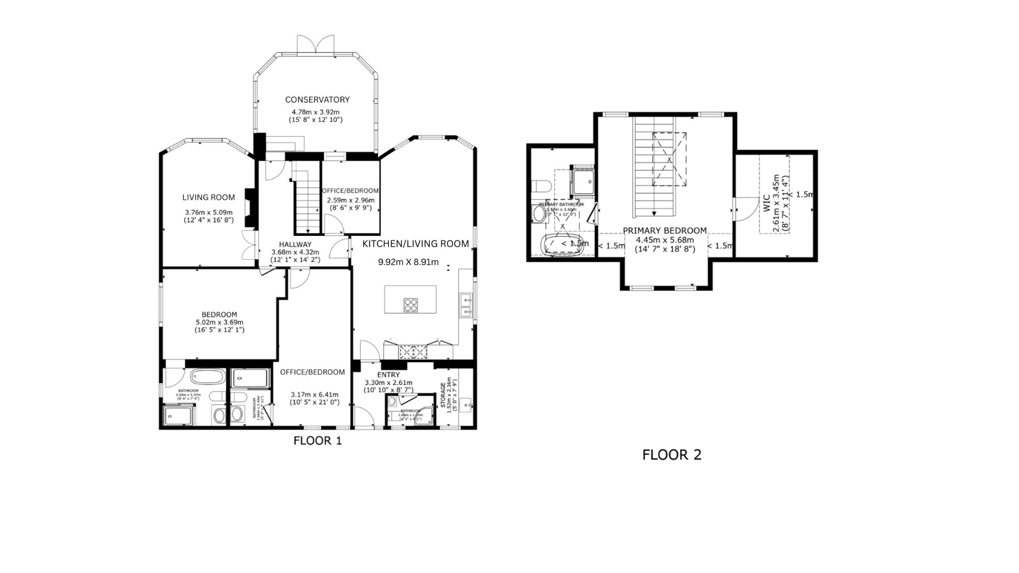
Craig Park has been extensively renovated to provide a wonderful home in the extremely popular town of Auchterarder, close to the world-renowned Gleneagles Hotel and Resort. The bright and spacious four-bedroom detached villa offers generously proportioned accommodation arranged over two levels and comprises an entrance porch, welcoming reception hallway, shower room, impressive open-plan living/dining/kitchen with fully fitted kitchen and adjoining utility, comfortable sitting room, and a conservatory overlooking the rear garden. The principal bedroom benefits from a dressing room and en-suite bathroom, while two further double bedrooms each enjoy their own en-suite facilities. A dedicated home office/bedroom completes the internal accommodation.

The property is warmed by air source heat pump central heating and benefits from full double glazing throughout.

Externally, the villa occupies a large plot with a well-maintained and private rear garden. To the front, there is a courtyard area providing ample parking along with a double garage. Situated on a quiet lane, the property also offers direct access to the nearby field, with scenic views extending over to the Ochils.

Craig Park occupies a superb setting close to the heart of Auchterarder and the world-renowned Gleneagles Hotel, which offers an exceptional range of leisure facilities including three championship golf courses. Auchterarder itself provides excellent day-to-day amenities, including a supermarket, butcher shops, bakery, post office, ironmonger, library, health centre, and both primary and secondary schooling, alongside a wide selection of independent and specialist retailers.

Gleneagles railway station nearby offers regular services north and south, including an overnight sleeper service to London, while Dunblane provides frequent commuter links to both Edinburgh and Glasgow. Perth lies approximately 15 miles to the east and offers a comprehensive range of national retailers, cultural attractions, restaurants, and a mainline railway station. Edinburgh and Glasgow are both accessible within around an hour by car, each providing international airports and extensive city amenities.

Key Features

  • 4 Bedrooms
  • 4 Bathrooms
  • Detached Villa
  • Covered area approx. 2,098 sqft
  • Council Tax Band F
  • Parking Double garage
  • Garden

Interested in this Property?

Make an enquiry via email

"*" indicates required fields

This field is for validation purposes and should be left unchanged.
Please use valid format e.g. 07123456789, +44 7123456789, +447123456789 #123, (07123) 456 789, etc
GDPR Consent*

OR

Contact our local expert or request a callback

Jamie Cockburn
Email Jamie Cockburn Request A Callback

Request A Call Back

"*" indicates required fields

This field is for validation purposes and should be left unchanged.
Please use valid format e.g. 07123456789, +44 7123456789, +447123456789 #123, (07123) 456 789, etc
GDPR Consent*

Featured Properties

Your saved properties

clyde logo white

Property Alerts.

Stay one step ahead of the market. Register with us today to receive property alters before the portals.

Register your details and property criteria below, and we will send you updates about homes that match your search criteria.

Tip: You can add multiple options/criteria after registration.