Sold STC

382 Knightswood Road, Knightswood

Glasgow, G13 2BT
Scroll

382 Knightswood Road, Knightswood

382 Knightswood Road, Knightswood

Glasgow, G13 2BT

Offers Over £175,000

Benefiting from a peaceful setting within a highly sought-after address, this well presented two-bedroom, semi-detached home is ideally located for quick and convenient access to Westerton Rail Station. The property offers comfortable family accommodation and further benefits from a professionally extended sunroom.

Knightswood Road is a particularly desirable location, combining a tranquil atmosphere with excellent proximity to a wide range of local amenities. The area caters well to everyday needs, with nearby primary and secondary schools, shops, supermarkets, and leisure facilities. As such, it remains popular with couples, growing families, and those looking to downsize. The location is also ideal for commuters, providing easy access to major road networks across the central belt.

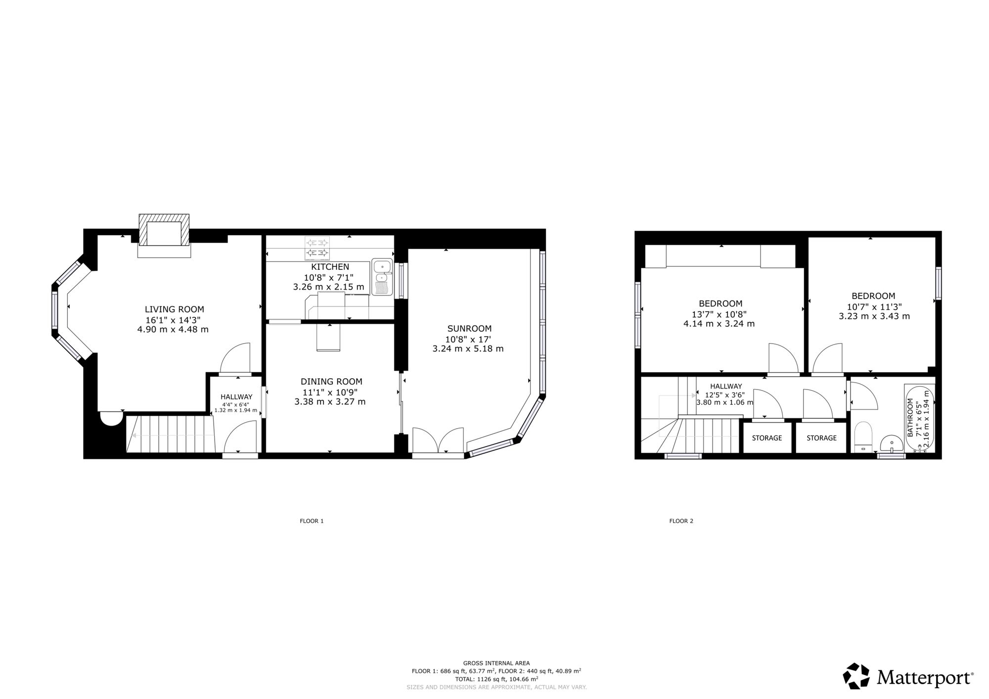
The property itself offers spacious and versatile accommodation arranged over two principal levels, complemented by generous private garden grounds. While the photographs, floor plan, and HD video tour provide a clear sense of the home’s size and layout, the accommodation briefly comprises: an entrance vestibule, a bright bay-windowed lounge, a dining room leading into the sunroom, and a galley-style kitchen.

Upstairs, there are two well-proportioned bedrooms, a family bathroom, two storage cupboards, and access to a loft space, offering excellent additional flexibility for the new owner. Externally, the home enjoys extensive garden grounds to the front, side, and rear.

Key Features

  • 2 Bedrooms
  • 1 Bathroom
  • Semi Detached House
  • Covered area approx. 1,033 sqft
  • Council Tax Band D
  • Parking On street
  • Front Garden

Interested in this Property?

Make an enquiry via email

"*" indicates required fields

This field is for validation purposes and should be left unchanged.
Please use valid format e.g. 07123456789, +44 7123456789, +447123456789 #123, (07123) 456 789, etc
GDPR Consent*

OR

Contact our local expert or request a callback

Rachel Dewar
t. 0141 212 7014
Email Rachel Dewar Request A Callback

Request A Call Back

"*" indicates required fields

This field is for validation purposes and should be left unchanged.
Please use valid format e.g. 07123456789, +44 7123456789, +447123456789 #123, (07123) 456 789, etc
GDPR Consent*

Featured Properties

Your saved properties

clyde logo white

Property Alerts.

Stay one step ahead of the market. Register with us today to receive property alters before the portals.

Register your details and property criteria below, and we will send you updates about homes that match your search criteria.

Tip: You can add multiple options/criteria after registration.