Sold

13 Hutchison Drive

Scone, Perth, PH2 6GB
Scroll

13 Hutchison Drive

13 Hutchison Drive

Scone, Perth, PH2 6GB

Offers Over £269,995

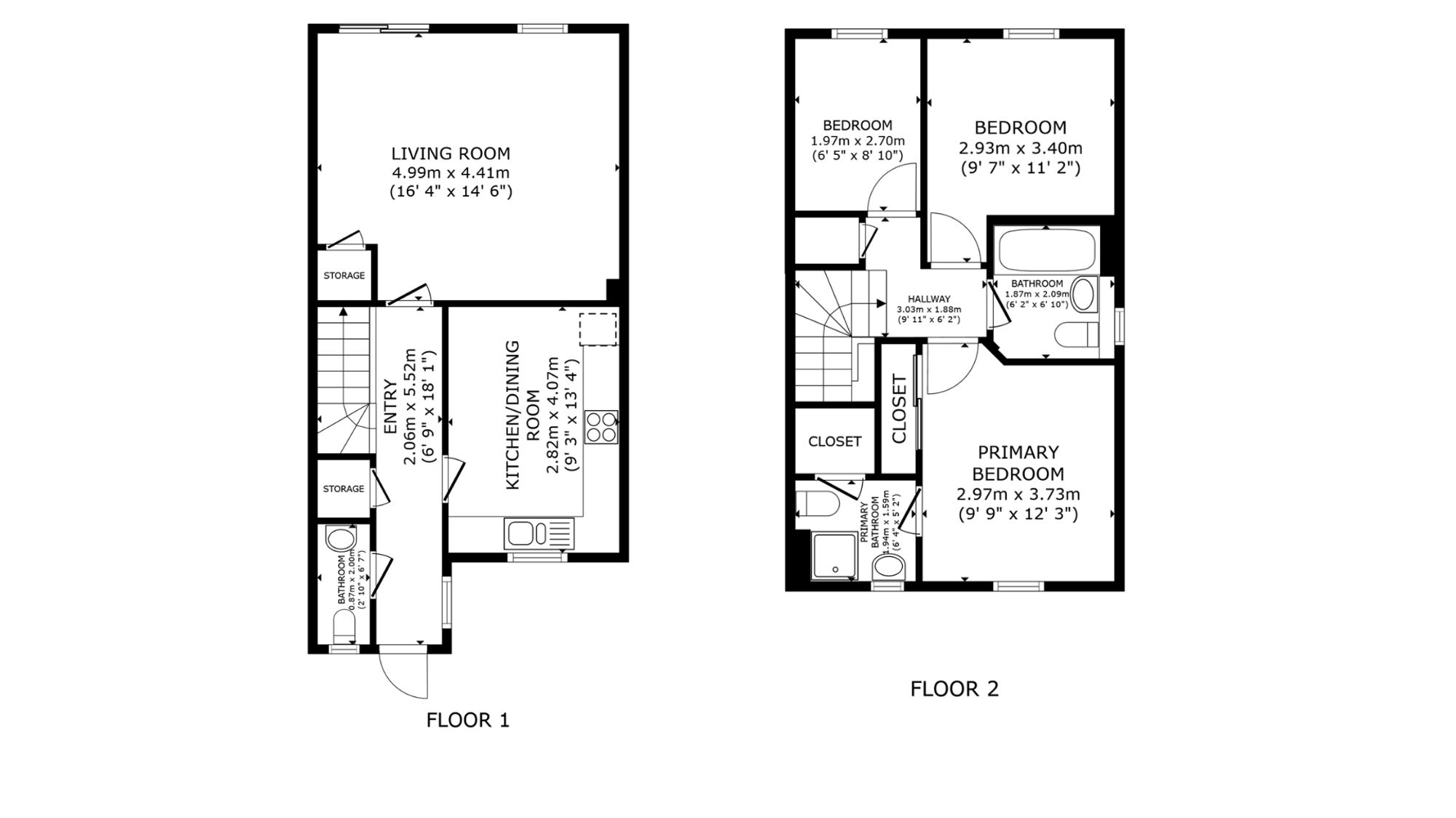
A charming semi-detached house, offering well-proportioned and versatile family accommodation in a highly convenient location. The ground floor features an inviting entrance hall leading to a generous living and dining area, ideal for both relaxing and entertaining. The kitchen is thoughtfully arranged and provides ample space for day-to-day living, while a cloakroom/WC completes the ground floor.

On the first floor, there are three comfortable bedrooms, including a principal bedroom with en-suite facilities, alongside a well-appointed family bathroom. The property benefits from natural light throughout and offers a practical layout suitable for modern family life.

Located a short distance to the north-east of the Perth town centre, the house sits within an established residential area comprising homes of similar age and character. Local amenities, including shopping, schools, and transport links, are all within easy reach, making this an ideal home for families or those seeking a convenient yet peaceful setting.

Key Features

  • 3 Bedrooms
  • 2 Bathrooms
  • Semi Detached House
  • Covered area approx. 957 sqft
  • Council Tax Band D
  • Parking Garage
  • Garden

Interested in this Property?

Make an enquiry via email

"*" indicates required fields

This field is for validation purposes and should be left unchanged.
Please use valid format e.g. 07123456789, +44 7123456789, +447123456789 #123, (07123) 456 789, etc
GDPR Consent*

OR

Contact our local expert or request a callback

Jamie Cockburn
Email Jamie Cockburn Request A Callback

Request A Call Back

"*" indicates required fields

This field is for validation purposes and should be left unchanged.
Please use valid format e.g. 07123456789, +44 7123456789, +447123456789 #123, (07123) 456 789, etc
GDPR Consent*

Featured Properties

Your saved properties

clyde logo white

Property Alerts.

Stay one step ahead of the market. Register with us today to receive property alters before the portals.

Register your details and property criteria below, and we will send you updates about homes that match your search criteria.

Tip: You can add multiple options/criteria after registration.