Sold STC

36 Jeanfield Road

Perth, PH1 1PD
Scroll

36 Jeanfield Road

36 Jeanfield Road

Perth, PH1 1PD

Offers Over £239,000

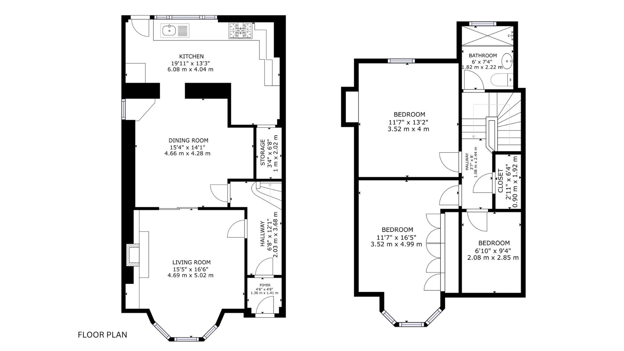
This well-presented extended semi-detached home offers spacious and flexible accommodation over two levels, making it an excellent choice for families, first-time buyers, or those seeking additional living space.

The ground floor accommodation begins with a welcoming entrance vestibule leading into a central hallway, setting the tone for the rest of the home. The bright and comfortable lounge provides an ideal space for relaxation, while the separate dining room offers ample room for family meals and entertaining guests. To the rear, the fitted kitchen is well-positioned and provides good storage and workspace, with potential for further modernisation if desired.

Upstairs, the property comprises two generously proportioned bedrooms, both offering comfortable accommodation. In addition, there is a useful box room which could serve as a home office, nursery, or additional storage space. A contemporary shower room completes the first floor.

Externally, the property benefits from its position on one of Perth’s well-established and busy thoroughfares, with surrounding homes of similar age and character contributing to a sense of continuity and community. Perth city centre is within easy reach, providing a wide range of shopping, leisure facilities, schools, and transport links, making this a highly convenient location for everyday living.

Key Features

  • 3 Bedrooms
  • 1 Bathroom
  • Semi Detached House
  • Covered area approx. 1,140 sqft
  • Council Tax Band E
  • Parking Driveway
  • Garden

Interested in this Property?

Make an enquiry via email

"*" indicates required fields

This field is for validation purposes and should be left unchanged.
Please use valid format e.g. 07123456789, +44 7123456789, +447123456789 #123, (07123) 456 789, etc
GDPR Consent*

OR

Contact our local expert or request a callback

Jamie Cockburn
Email Jamie Cockburn Request A Callback

Request A Call Back

"*" indicates required fields

This field is for validation purposes and should be left unchanged.
Please use valid format e.g. 07123456789, +44 7123456789, +447123456789 #123, (07123) 456 789, etc
GDPR Consent*

Featured Properties

Your saved properties

clyde logo white

Property Alerts.

Stay one step ahead of the market. Register with us today to receive property alters before the portals.

Register your details and property criteria below, and we will send you updates about homes that match your search criteria.

Tip: You can add multiple options/criteria after registration.