Sold STC

114 Glasgow Road

Perth, PH2 0LU
Scroll

114 Glasgow Road

114 Glasgow Road

Perth, PH2 0LU

Offers Over £260,000

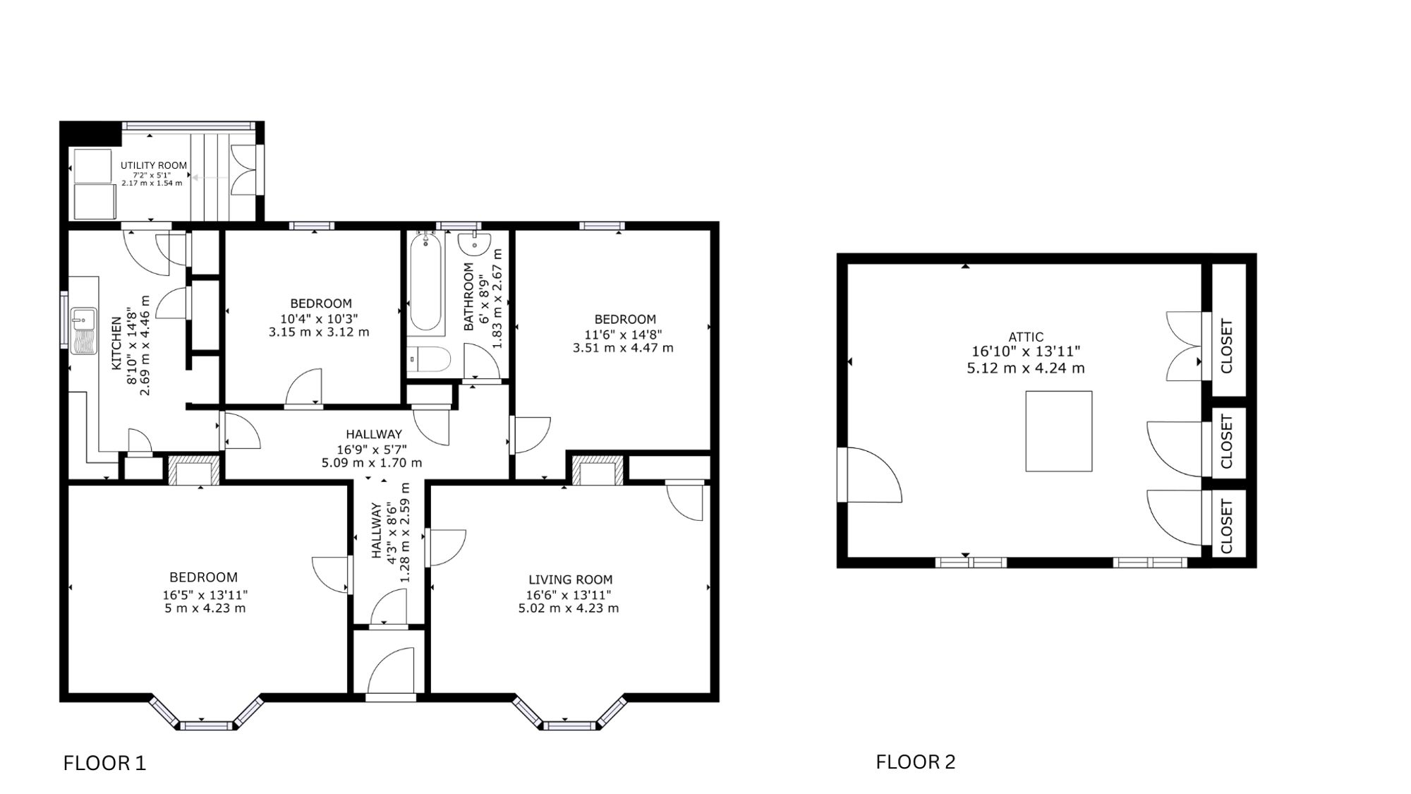
This property comprises a detached bungalow with attic accommodation, situated within an established residential area of Perth.

The accommodation is primarily arranged over the ground floor and comprises an entrance vestibule leading into a central hallway. From the hallway there is access to a living room, kitchen, bathroom, and three bedrooms. The kitchen provides access to a rear vestibule, which offers a secondary entrance to the property and provides additional practical space.

In addition to the ground floor accommodation, the property benefits from a spacious upper attic room, which provides flexible additional accommodation and may be suitable for a variety of uses such as a home office and hobby room.

Externally, the property benefits from private garden grounds and a range of useful outbuildings. These include a detached garage, together with a greenhouse and garden shed, providing additional storage and practical outdoor space.

The property forms part of a well-established residential neighbourhood, with surrounding properties generally of a similar age and style. A range of local amenities, including shops, schools and transport links, can be found within the wider area, providing convenient access to everyday services.

Key Features

  • 3 Bedrooms
  • 1 Bathroom
  • Bungalow
  • Covered area approx. 1,097 sqft
  • Council Tax Band F
  • Parking Garage
  • Garden

Interested in this Property?

Make an enquiry via email

"*" indicates required fields

This field is for validation purposes and should be left unchanged.
Please use valid format e.g. 07123456789, +44 7123456789, +447123456789 #123, (07123) 456 789, etc
GDPR Consent*

OR

Contact our local expert or request a callback

Nicola Dow
Email Nicola Dow Request A Callback

Request A Call Back

"*" indicates required fields

This field is for validation purposes and should be left unchanged.
Please use valid format e.g. 07123456789, +44 7123456789, +447123456789 #123, (07123) 456 789, etc
GDPR Consent*

Featured Properties

Your saved properties

clyde logo white

Property Alerts.

Stay one step ahead of the market. Register with us today to receive property alters before the portals.

Register your details and property criteria below, and we will send you updates about homes that match your search criteria.

Tip: You can add multiple options/criteria after registration.