Sold

2 Langhaul Court

Crookston, Glasgow, G53 7RU
Scroll

2 Langhaul Court

2 Langhaul Court

Crookston, Glasgow, G53 7RU

Offers Over £435,000

Set within a spacious and predominantly level garden plot in the ever sought-after pocket of Crookston, this outstanding detached residence boasts a generously proportioned interior of a scale that is not typically seen in the local market. Boasting a fresh and stylishly neutral decorative finish; this home will not fail to appeal to the family market.

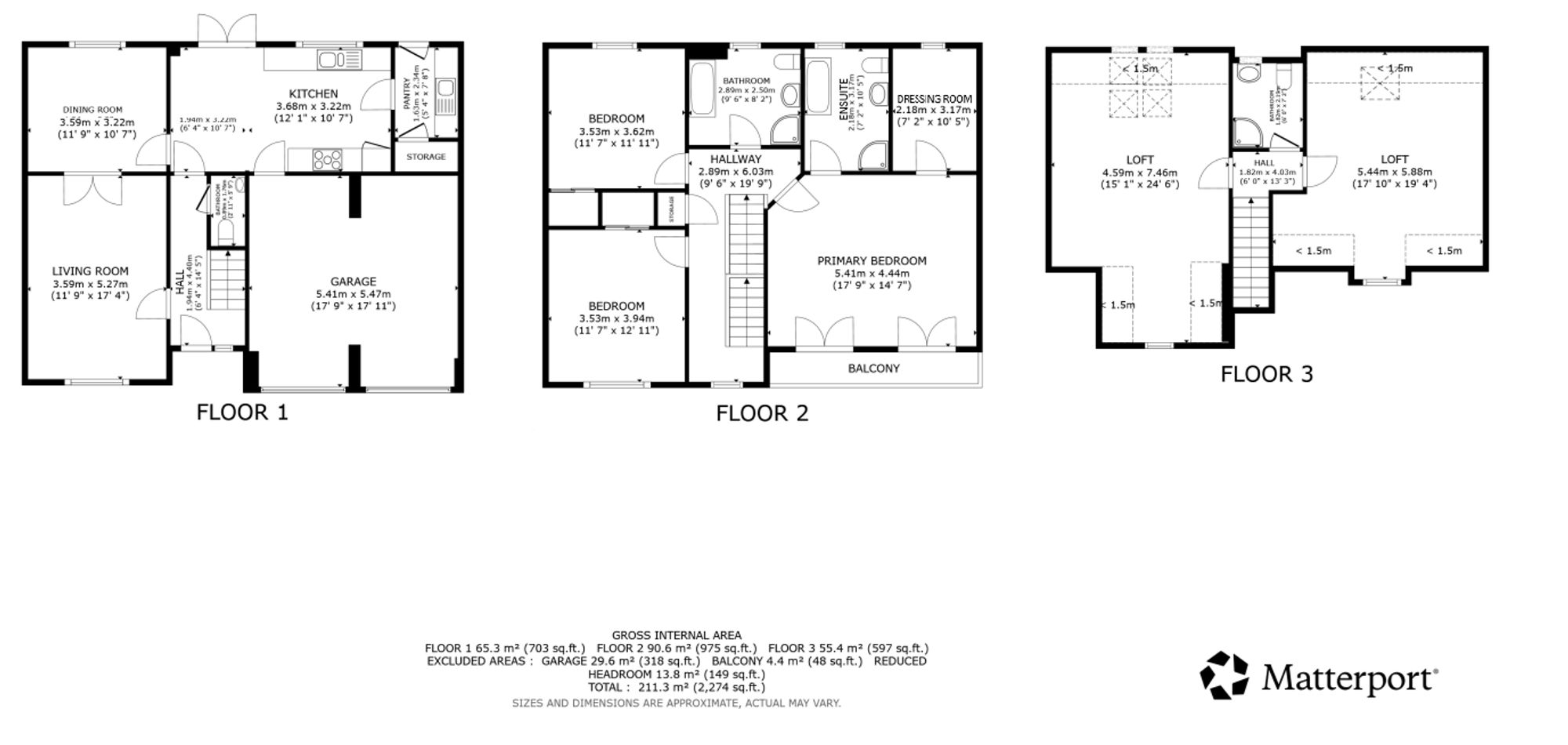
Defined by a sense of space, this immediately welcoming home is set over three levels and extends, on the ground floor, to a reception hallway with practical two-piece cloakroom off, spacious formal lounge which features an attractive double door formation leading in to a separate family / dining room, a comprehensively fitted kitchen hosting a range of base and wall mounted units as well as providing ample space for family dining, and an independent utility room which in turn provides internal access to a sizeable double garage.

On the first floor of this home, a broad and notably bright landing provides access to three generously proportioned bedrooms. The principle of these is set within an impressive suite with both a four-piece en-suite facility and generous dressing room off. From this apartment, twin French door formations provide access to a charming sun balcony providing the perfect spot for a morning coffee. Completing the accommodation on this floor is a further four piece family bathroom hosting both tub and independent shower stall.

A further stairwell ascends to the attic level of this superb property where a further two spacious bedrooms are set, each of which draw an abundance of natural light from multi-aspect window formations, and a practical upper floor shower room with white suite.

Similarly impressive externally, Langhgaul Court benefits from a sizeable garden plot with is fully enclosed and level at the rear to provide the ideal family and pet friendly proposition. This area combines an expansive lawn with feature sun-deck and a lengthy patio running along the rear elevation of the property. To the front, there is a section of Monobloc with capacity for two vehicles set in front of the double garage.

Key Features

  • 5 Bedrooms
  • 4 Bathrooms
  • Detached House
  • Covered area approx. 2,346 sqft
  • Council Tax Band G

Interested in this Property?

Make an enquiry via email

"*" indicates required fields

This field is for validation purposes and should be left unchanged.
Please use valid format e.g. 07123456789, +44 7123456789, +447123456789 #123, (07123) 456 789, etc
GDPR Consent*

OR

Contact our local expert or request a callback

Ann Forbes
t. 0141 212 7029
Email Ann Forbes Request A Callback

Request A Call Back

"*" indicates required fields

This field is for validation purposes and should be left unchanged.
Please use valid format e.g. 07123456789, +44 7123456789, +447123456789 #123, (07123) 456 789, etc
GDPR Consent*

Featured Properties

Your saved properties

clyde logo white

Property Alerts.

Stay one step ahead of the market. Register with us today to receive property alters before the portals.

Register your details and property criteria below, and we will send you updates about homes that match your search criteria.

Tip: You can add multiple options/criteria after registration.