Sold

40 Switchback Road

Bearsden, Glasgow, G61 1AD
Scroll

40 Switchback Road

40 Switchback Road

Bearsden, Glasgow, G61 1AD

Offers Over £390,000

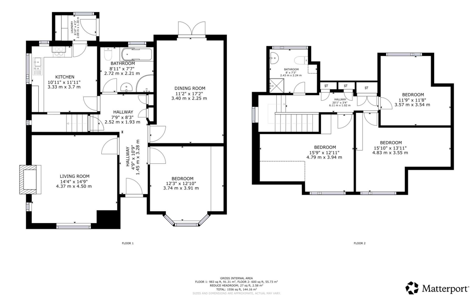
40 Switchback Road is a charming and spacious four bedroom, detached bungalow located in the highly regarded Switchback area of Bearsden. Perfectly positioned within the catchment for the sought after Westerton Primary and Boclair Secondary High School, the property offers a versatile layout ideal for family living. Entry is via a welcoming vestibule that opens into a bright and spacious reception hallway with useful storage. To the front of the home is a generously proportioned lounge, beautifully presented with a feature fireplace and large window offering an abundance of natural light. Also on the ground floor is a sizeable double bedroom complete with fitted wardrobes, along with a separate dining room to the rear that benefits from French doors leading directly out to the garden, making it a lovely space for entertaining. The kitchen is bright and well-appointed, featuring a range of wall and base units, integrated cooker, and a door through to a practical utility room. A modern family bathroom completes the accommodation on this level.

A staircase from the hall leads to the upper floor, where there are three further well sized bedrooms, additional storage space, and a stylish shower room. Further features include gas central heating, double glazing, and a garage, offering additional storage or parking options.

Externally, the home enjoys well maintained gardens to both front and rear. A monobloc driveway to the front provides off street parking, while the private rear garden is fully enclosed and features a level lawn and paved patio area, ideal for children, pets, or relaxing outdoors.

The location offers the Cairnhill Woods nearby providing scenic walking paths that lead to Westerton train station, ensuring quick and easy access into Glasgow’s West End and city centre. Bearsden Cross is also within easy reach and offers a range of excellent amenities including independent shops, restaurants, bars, a Marks & Spencer Food Hall, post office, and community hub. The surrounding area is well served by recreational facilities including golf clubs and sports centres, and road connections from Switchback Road provide convenient routes to Anniesland, Glasgow City Centre, and the Clyde Tunnel, offering swift access to Glasgow Airport and beyond. The property is also well placed for access to Glasgow University’s Garscube Campus and is very convenient for commuting to the Queen Elizabeth University Hospital.

Key Features

  • 4 Bedrooms
  • 2 Bathrooms
  • Detached Bungalow
  • Covered area approx. 1,550 sqft
  • Council Tax Band G
  • Parking Driveway
  • Garden

Interested in this Property?

Make an enquiry via email

"*" indicates required fields

This field is for validation purposes and should be left unchanged.
Please use valid format e.g. 07123456789, +44 7123456789, +447123456789 #123, (07123) 456 789, etc
GDPR Consent*

OR

Contact our local expert or request a callback

Clyde Property
t. 0141 570 0777
Email Clyde Property Request A Callback

Request A Call Back

"*" indicates required fields

This field is for validation purposes and should be left unchanged.
Please use valid format e.g. 07123456789, +44 7123456789, +447123456789 #123, (07123) 456 789, etc
GDPR Consent*

Featured Properties

Your saved properties

clyde logo white

Property Alerts.

Stay one step ahead of the market. Register with us today to receive property alters before the portals.

Register your details and property criteria below, and we will send you updates about homes that match your search criteria.

Tip: You can add multiple options/criteria after registration.