Under Offer

53 Davidson Street

Bannockburn, Stirling, FK7 0NE
Scroll

53 Davidson Street

53 Davidson Street

Bannockburn, Stirling, FK7 0NE

Offers Over £150,000

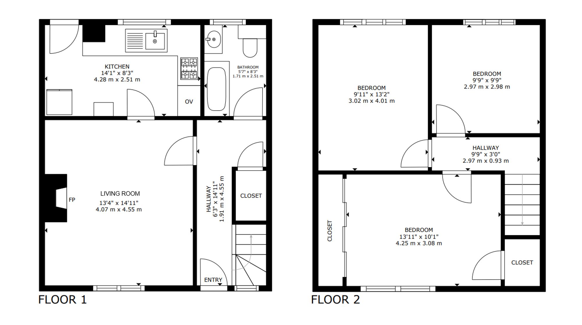
This immaculate mid-terraced house is positioned within a quiet residential cul-de-sac in the Whins of Milton area of Stirling, well suited to a range of purchasers including families and first-time buyers.

The internal accommodation is arranged over two levels. On the ground floor there is an entrance hallway providing access to a comfortable living room, a fitted kitchen and a bathroom. The layout is both practical and functional.

The upper floor comprises an internal hallway leading to three bedrooms. These rooms offer flexible use and can accommodate a variety of needs such as sleeping accommodation, home working space or additional storage depending on individual requirements. Natural light is provided via window openings to both front and rear elevations, contributing to a bright internal atmosphere.

Externally, the property benefits from private garden ground located to both the front and rear. These areas include a combination of chipped, paved and turfed sections, providing low-maintenance outdoor space suitable for seating, recreation or general domestic use.

A wide selection of amenities, retail outlets, schooling and transport links can be accessed within nearby Stirling city centre, placing everyday conveniences and leisure facilities within easy reach while still enjoying the advantages of a residential setting.

Key Features

  • 3 Bedrooms
  • 1 Bathroom
  • Terraced House
  • Covered area approx. 936 sqft
  • Council Tax Band B

Interested in this Property?

Make an enquiry via email

"*" indicates required fields

This field is for validation purposes and should be left unchanged.
Please use valid format e.g. 07123456789, +44 7123456789, +447123456789 #123, (07123) 456 789, etc
GDPR Consent*

OR

Contact our local expert or request a callback

Tara Sinclair
t. 01786 471777
Email Tara Sinclair Request A Callback

Request A Call Back

"*" indicates required fields

This field is for validation purposes and should be left unchanged.
Please use valid format e.g. 07123456789, +44 7123456789, +447123456789 #123, (07123) 456 789, etc
GDPR Consent*

Featured Properties

Your saved properties

clyde logo white

Property Alerts.

Stay one step ahead of the market. Register with us today to receive property alters before the portals.

Register your details and property criteria below, and we will send you updates about homes that match your search criteria.

Tip: You can add multiple options/criteria after registration.