Sold

3 Netherton Avenue, Flat 2/2, Anniesland

Glasgow, G13 1BQ
Scroll

3 Netherton Avenue, Flat 2/2, Anniesland

3 Netherton Avenue, Flat 2/2, Anniesland

Glasgow, G13 1BQ

Offers Over £139,000

Situated within an attractive modern development in Anniesland, this appealing apartment offers bright, well-appointed living space and would be ideal for a young professional couple or Buy To Let investor.

Attractively priced, the flat enjoys a highly convenient position just minutes from a broad selection of amenities. Within five minutes’ drive of the property, there is an excellent range of supermarkets, shops, restaurants, schools and public transport links. Netherton Road is perfectly placed for gaining quick and easy access to Crow Road, Great Western Road and the wider motorway network.

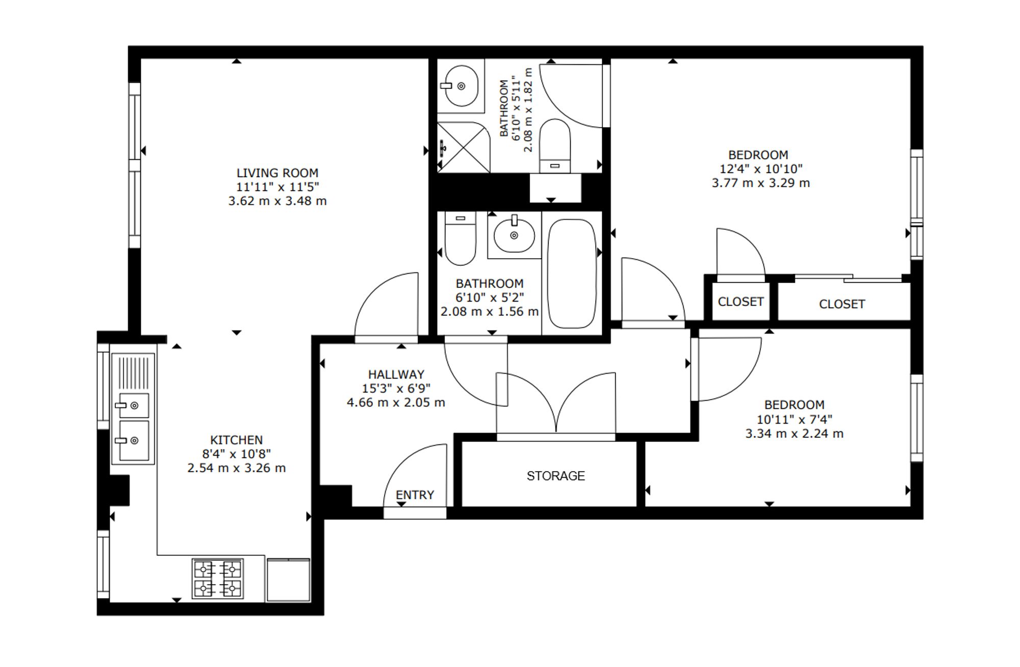
The home for sale is a bright two-bedroom, second-floor apartment presented in good condition throughout. The attached photographs, floor plan and HD video provide an indication of the size and layout; however, in brief the accommodation extends to an entrance hallway with storage, and a spacious open-plan living/dining/kitchen area. The kitchen is fitted with a range of base and wall-mounted units, integrated appliances and tiled splashback.

There are two well-proportioned bedrooms, with the principal bedroom benefiting from built-in storage and a modern en-suite shower room. The accommodation is completed by a fully tiled bathroom with a three-piece suite. Externally, the flat further benefits from allocated parking within the development.

Key Features

  • 2 Bedrooms
  • 2 Bathrooms
  • Flat
  • Covered area approx. 645 sqft
  • Council Tax Band C

Interested in this Property?

Make an enquiry via email

"*" indicates required fields

This field is for validation purposes and should be left unchanged.
Please use valid format e.g. 07123456789, +44 7123456789, +447123456789 #123, (07123) 456 789, etc
GDPR Consent*

OR

Contact our local expert or request a callback

Millie Gibbons
t. 0141 212 7026
Email Millie Gibbons Request A Callback

Request A Call Back

"*" indicates required fields

This field is for validation purposes and should be left unchanged.
Please use valid format e.g. 07123456789, +44 7123456789, +447123456789 #123, (07123) 456 789, etc
GDPR Consent*

Featured Properties

Your saved properties

clyde logo white

Property Alerts.

Stay one step ahead of the market. Register with us today to receive property alters before the portals.

Register your details and property criteria below, and we will send you updates about homes that match your search criteria.

Tip: You can add multiple options/criteria after registration.