Sold

24 Cedar Court

Auchterarder, PH3 1GH
Scroll

24 Cedar Court

24 Cedar Court

Auchterarder, PH3 1GH

Offers Over £169,000

This beautifully appointed two-bedroom top-floor apartment, built by the acclaimed Robertson Homes in 2019, is situated in the picturesque Perthshire town of Auchterarder. Presented in immaculate, walk-in condition, the property enjoys an abundance of natural light, generous living space, and a well-considered contemporary layout. Highlights include double-glazed windows, efficient gas central heating, and both allocated and visitor parking. An ideal choice for professional couples, first-time buyers, buy-to-let investors, or those looking to downsize—this home offers broad appeal.

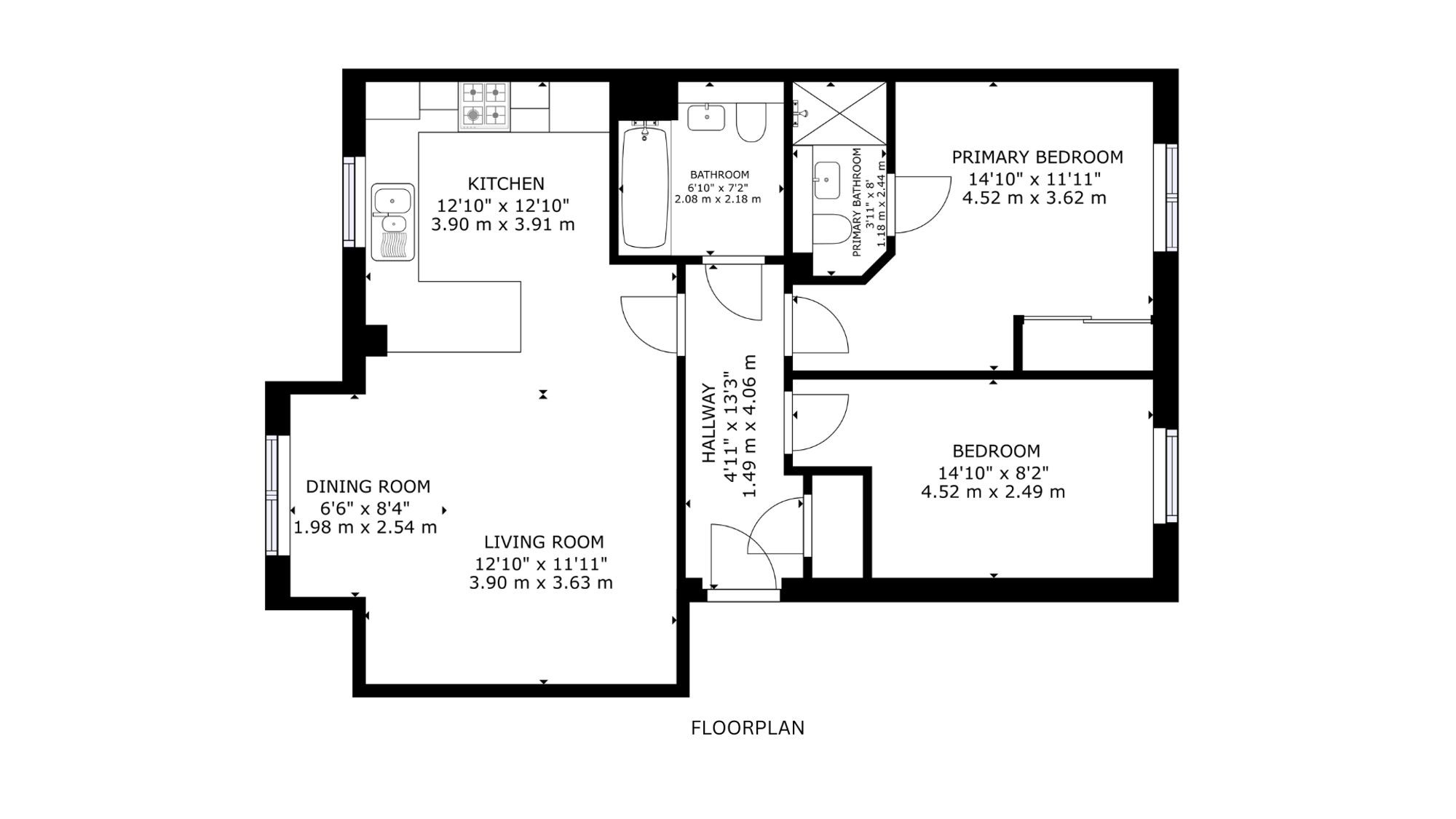
Set on a single level, the accommodation comprises a welcoming reception hallway, a striking open-plan living/dining kitchen, two spacious double bedrooms (one benefitting from a stylish en suite shower room), and a sleek, modern main bathroom. Externally, convenient parking further enhances the appeal.

Auchterarder boasts an excellent selection of local amenities, including a supermarket, two butchers, a bakery, post office, library, health centre, and well-regarded primary and secondary schools. The town is also home to a range of boutique shops and services. Gleneagles railway station lies nearby, offering regular services both north and south, including a sleeper to London, while Dunblane provides easy commuter links to Edinburgh and Glasgow.

For leisure seekers, the world-renowned Gleneagles Hotel is just minutes away. It features three championship golf courses—The King's, The Queen's, and the PGA Centenary (host of the 2014 Ryder Cup)—alongside top-tier leisure facilities, including a cutting-edge gym, swimming pool, luxury spa, tennis and squash courts, equestrian centre, and shooting school. A variety of dining experiences are available, from relaxed eateries to the acclaimed Andrew Fairlie at Gleneagles, a prestigious two-Michelin-star restaurant.

Combining contemporary comfort, a sought-after location, and outstanding local amenities, this apartment offers a truly exceptional living opportunity.

Key Features

  • 2 Bedrooms
  • 2 Bathrooms
  • Flat
  • Covered area approx. 742 sqft
  • Council Tax Band C

Interested in this Property?

Make an enquiry via email

"*" indicates required fields

This field is for validation purposes and should be left unchanged.
Please use valid format e.g. 07123456789, +44 7123456789, +447123456789 #123, (07123) 456 789, etc
GDPR Consent*

OR

Contact our local expert or request a callback

Nicola Dow
Email Nicola Dow Request A Callback

Request A Call Back

"*" indicates required fields

This field is for validation purposes and should be left unchanged.
Please use valid format e.g. 07123456789, +44 7123456789, +447123456789 #123, (07123) 456 789, etc
GDPR Consent*

Featured Properties

Your saved properties

clyde logo white

Property Alerts.

Stay one step ahead of the market. Register with us today to receive property alters before the portals.

Register your details and property criteria below, and we will send you updates about homes that match your search criteria.

Tip: You can add multiple options/criteria after registration.