Sold

51 Bolton Drive, Flat 3/1, Mount Florida

Glasgow, G42 9DT
Scroll

51 Bolton Drive, Flat 3/1, Mount Florida

51 Bolton Drive, Flat 3/1, Mount Florida

Glasgow, G42 9DT

Offers Over £129,000

This superb one-bedroom third-floor tenement apartment offering bright, generously proportioned accommodation and boasting an exceptionally convenient location in Glasgow’s vibrant Southside, just a short walk from Mount Florida Rail Station.

Situated on ever-popular Bolton Drive, this charming red sandstone tenement enjoys a highly central Mount Florida position close to the side gates of Queen’s Park and within easy reach of Cathcart Road. The property is perfectly placed for buyers looking to enjoy the best of Southside living, whether that’s the excellent selection of cafés, coffee shops, bars, restaurants and independent retailers, or the abundance of green space and local leisure facilities. Public transport links are outstanding, with frequent buses from King’s Park Road and Holmlea Road and swift rail connections to Glasgow City Centre from nearby Mount Florida Station.

The building itself is well maintained, featuring secure buzzer entry and access to a neat, enclosed shared garden to the rear, complete with lawn, drying green and refuse facilities.

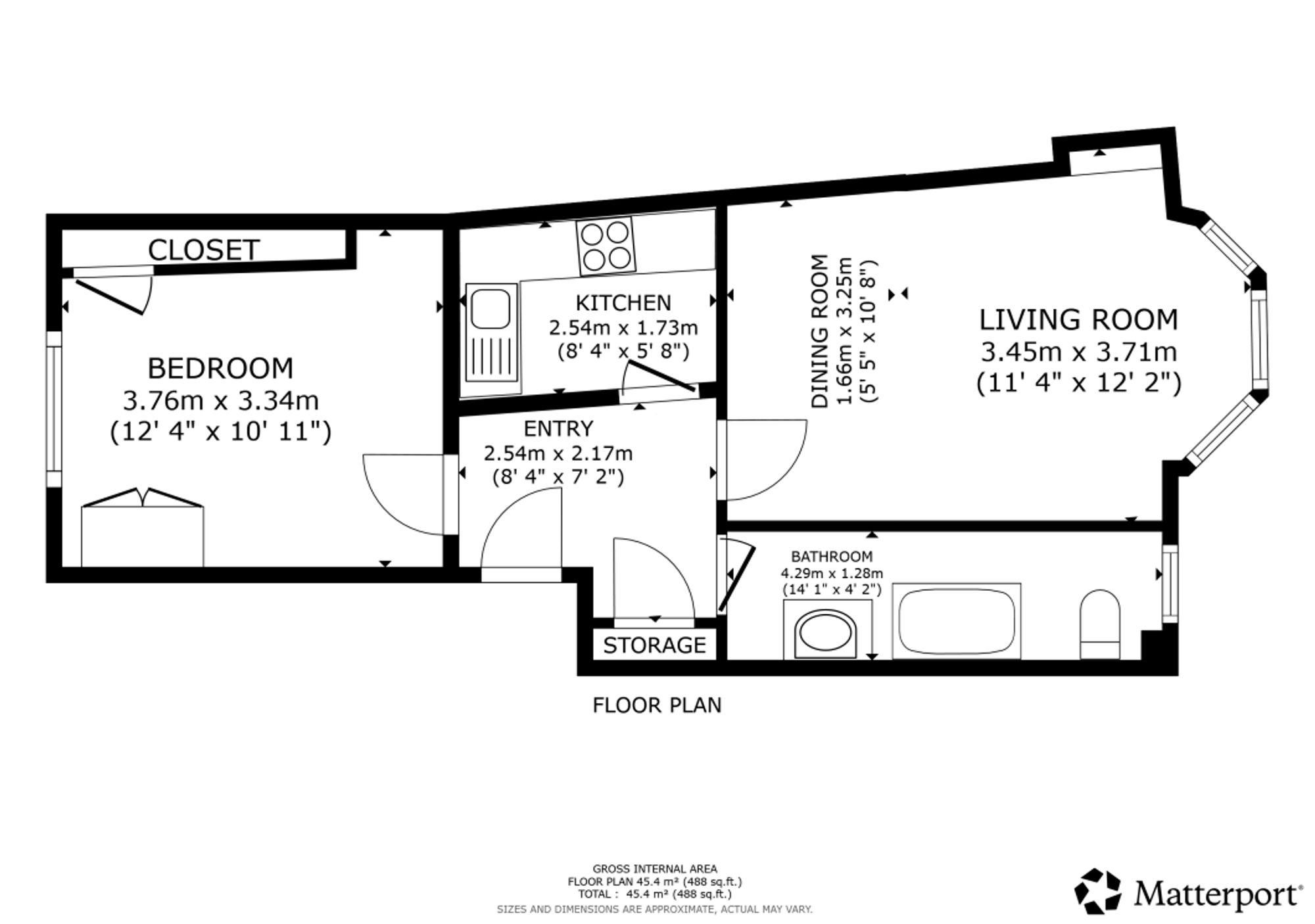
Internally, the property is immaculately presented and offers an immediately comfortable, move-in-ready home. The accommodation comprises: a welcoming entrance hallway with useful storage cupboard; a well-proportioned double bedroom; a stylish galley bathroom with shower over bath; a bright and spacious bay-windowed lounge; and a fitted internal kitchen featuring a range of wall and floor mounted units with integrated appliances.

Key Features

  • 1 Bedroom
  • 1 Bathroom
  • Flat
  • Covered area approx. 462 sqft
  • Council Tax Band B

Interested in this Property?

Make an enquiry via email

"*" indicates required fields

This field is for validation purposes and should be left unchanged.
Please use valid format e.g. 07123456789, +44 7123456789, +447123456789 #123, (07123) 456 789, etc
GDPR Consent*

OR

Contact our local expert or request a callback

Kieran MacLean
t. 0141 571 3777
Email Kieran MacLean Request A Callback

Request A Call Back

"*" indicates required fields

This field is for validation purposes and should be left unchanged.
Please use valid format e.g. 07123456789, +44 7123456789, +447123456789 #123, (07123) 456 789, etc
GDPR Consent*

Featured Properties

Your saved properties

clyde logo white

Property Alerts.

Stay one step ahead of the market. Register with us today to receive property alters before the portals.

Register your details and property criteria below, and we will send you updates about homes that match your search criteria.

Tip: You can add multiple options/criteria after registration.