Sold STC

24 Scott Terrace

Falkirk, FK2 7PJ
Scroll

24 Scott Terrace

24 Scott Terrace

Falkirk, FK2 7PJ

Offers Over £220,000

Ogilvie built luxury detached villa occupying private gardens complemented by a large front driveway and integral garage. The rear gardens afford considerable privacy and enjoys access to a larger sized rear conservatory which extends to in excess of seventeen feet. The property lies within easy reach of many excellent Falkirk amenities including the surrounding road and railway network.

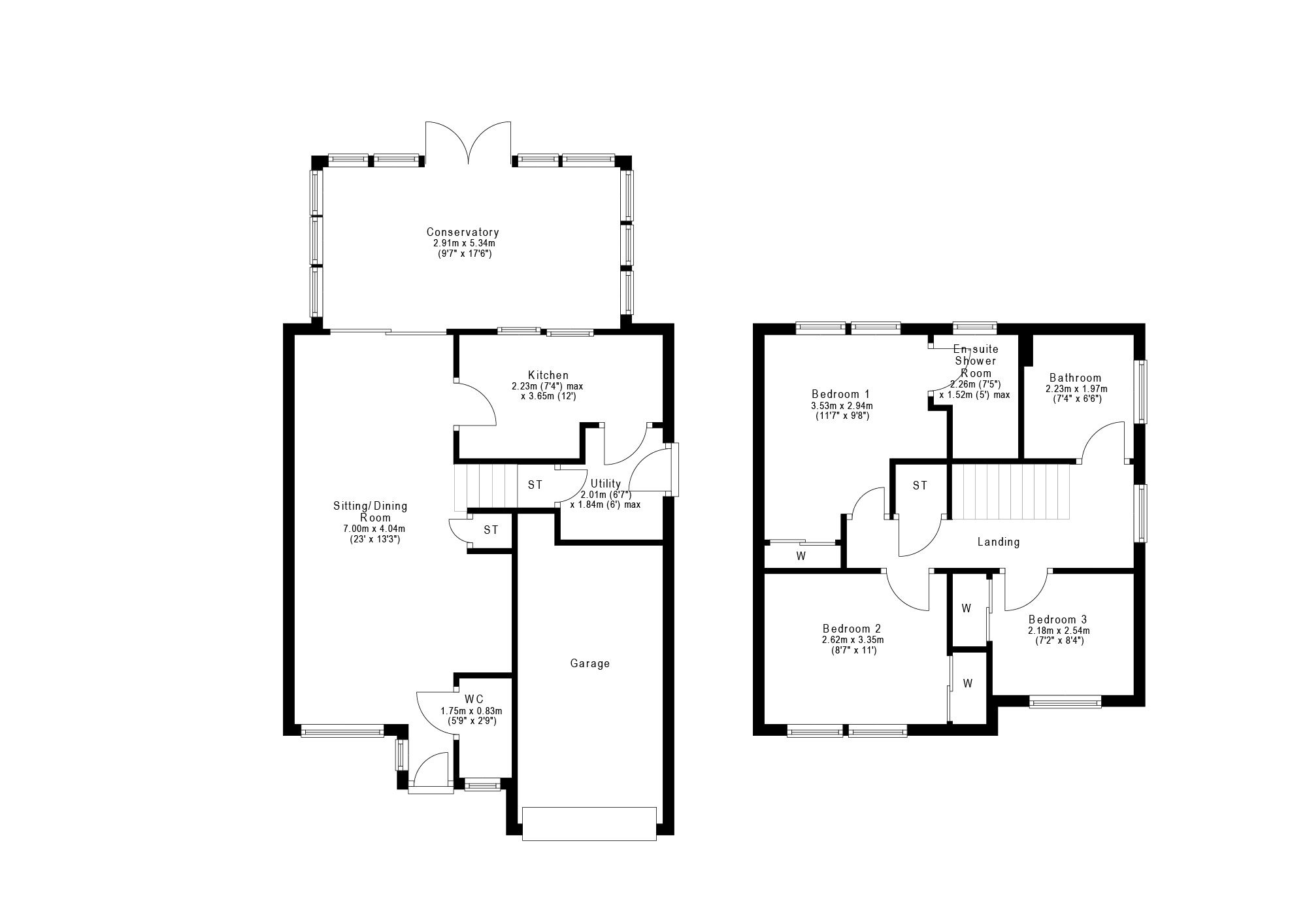
Access to the property is through an entrance vestibule with handy downstairs WC off. The super sitting/dining room extends to twenty three feet in length and enjoys access to the wonderful rear conservatory. The kitchen has an integrated oven, hob, extractor hood and dishwasher. A useful utility room is situated off the kitchen. The bright upper hallway has a gable window and allows access to three bedrooms with fitted robes and a generously sized bathroom. The master bedroom has a stylish fully refitted en suite shower room with feature ceramic tiling, mains shower valve, storage and chrome radiator. Practical features include gas central heating, double glazing and EV charging point included in sale. Well maintained and presented early viewing is highly recommended.

Sitting/Dining Room 23’ x 13’3” (at widest) 7.01m x 4.04m

Conservatory 17’6” x 9’7” 5.33m x 2.92m

Kitchen 12’ x 7’4” (at widest) 3.66m x 2.24m

Utility Room 6’7” x 6’ 2.01m x 1.83m

Bedroom One 11’7” x 9’8” 3.53m x 2.95m

En Suite Shower Room 7’5” x 5’ 2.26m x 1.52m

Bedroom Two 11’ x 8’7” 3.35m x 2.62m

Bedroom Three 8’4” x 7’2” 2.54m x 2.18m

Bathroom 7’6” x 6’6” 2.29m x 1.98m

Key Features

  • 3 Bedrooms
  • 2 Bathrooms
  • Detached House
  • Covered area approx. 1,097 sqft
  • Council Tax Band E

Interested in this Property?

Make an enquiry via email

"*" indicates required fields

This field is for validation purposes and should be left unchanged.
Please use valid format e.g. 07123456789, +44 7123456789, +447123456789 #123, (07123) 456 789, etc
GDPR Consent*

OR

Contact our local expert or request a callback

Susan Dunsmore
Email Susan Dunsmore Request A Callback

Request A Call Back

"*" indicates required fields

This field is for validation purposes and should be left unchanged.
Please use valid format e.g. 07123456789, +44 7123456789, +447123456789 #123, (07123) 456 789, etc
GDPR Consent*

Featured Properties

Your saved properties

clyde logo white

Property Alerts.

Stay one step ahead of the market. Register with us today to receive property alters before the portals.

Register your details and property criteria below, and we will send you updates about homes that match your search criteria.

Tip: You can add multiple options/criteria after registration.