18 Roman Court

Bearsden, Glasgow, G61 2HS
Scroll

18 Roman Court

18 Roman Court

Bearsden, Glasgow, G61 2HS

Offers Over £395,000

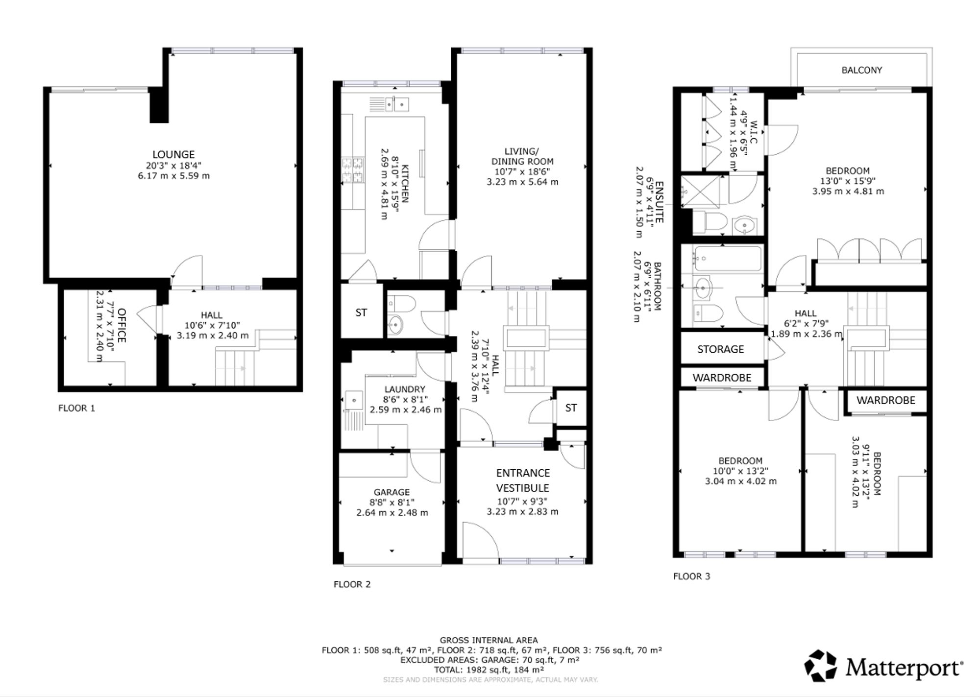
Built around 45 years ago by Woodblane Homes, Roman Court is a highly regarded development comprising predominantly luxury apartments, with only a small number of townhouses. This particular property is a rarely available mid terrace townhouse, offering generous and well balanced accommodation over three levels.

The layout has been thoughtfully designed, with the main entrance positioned on the mid level. From here, the home flows particularly well, while the lower ground floor opens directly onto a beautifully maintained south facing garden via patio doors, creating a strong connection between the internal living space and outdoors.

On entering, a welcoming porch leads through to a bright reception hall. The main living accommodation on this level includes a fitted kitchen, complete with wood effect units, contrasting worktops and a range of quality integrated appliances, alongside a versatile dining and family space which works well for both everyday living and entertaining. A useful cloakroom sits just off the hall, along with a well appointed utility room, cleverly formed from part of the original garage. The remaining section of the garage has been retained, providing excellent storage or bike space.

The lower garden level is home to the principal living space, a particularly generous lounge with two sets of patio doors opening directly onto the south facing garden. Given its size and proportions, this room could easily accommodate both lounge and dining areas if required. A further store, currently utilised as a home office, is accessed from the hall on this level, offering useful flexibility for modern living.

Upstairs, the property continues to impress with three well proportioned double bedrooms, all of which benefit from fitted wardrobes. The principal bedroom features more contemporary fitted storage and enjoys direct access to a private balcony. The upper level is served by a recently fitted main bathroom, finished to a high standard, along with a separate en suite shower room off the principal bedroom. A large linen cupboard and access to the attic provide additional practicality.

The property is further enhanced by double glazing and gas central heating.

Roman Court is ideally positioned just a short walk from Bearsden Cross, placing a wide range of amenities right on the doorstep. These include a selection of independent retailers, cafés and restaurants, a Marks and Spencer Foodhall, as well as banking and postal services. Excellent transport links are also nearby, with regular bus routes and Bearsden Train Station providing convenient access into Glasgow’s West End and City Centre.

Key Features

  • 3 Bedrooms
  • 3 Bathrooms
  • Terraced House
  • Covered area approx. 1,980 sqft
  • Council Tax Band G
  • Parking Driveway

Interested in this Property?

Make an enquiry via email

"*" indicates required fields

This field is for validation purposes and should be left unchanged.
Please use valid format e.g. 07123456789, +44 7123456789, +447123456789 #123, (07123) 456 789, etc
GDPR Consent*

OR

Contact our local expert or request a callback

Clyde Property
t. 0141 570 0777
Email Clyde Property Request A Callback

Request A Call Back

"*" indicates required fields

This field is for validation purposes and should be left unchanged.
Please use valid format e.g. 07123456789, +44 7123456789, +447123456789 #123, (07123) 456 789, etc
GDPR Consent*

Featured Properties

Your saved properties

clyde logo white

Property Alerts.

Stay one step ahead of the market. Register with us today to receive property alters before the portals.

Register your details and property criteria below, and we will send you updates about homes that match your search criteria.

Tip: You can add multiple options/criteria after registration.