Under Offer

19 Weir Street

Stirling, FK8 1FH
Scroll

19 Weir Street

19 Weir Street

Stirling, FK8 1FH

Offers Over £255,000

Set within a convenient and well-established residential area of Stirling, this attractive detached villa offers generous and versatile accommodation ideally suited to modern family living. The property is well positioned with easy access to a range of local amenities, schooling, and transport links, making it a practical and appealing choice for a variety of buyers.

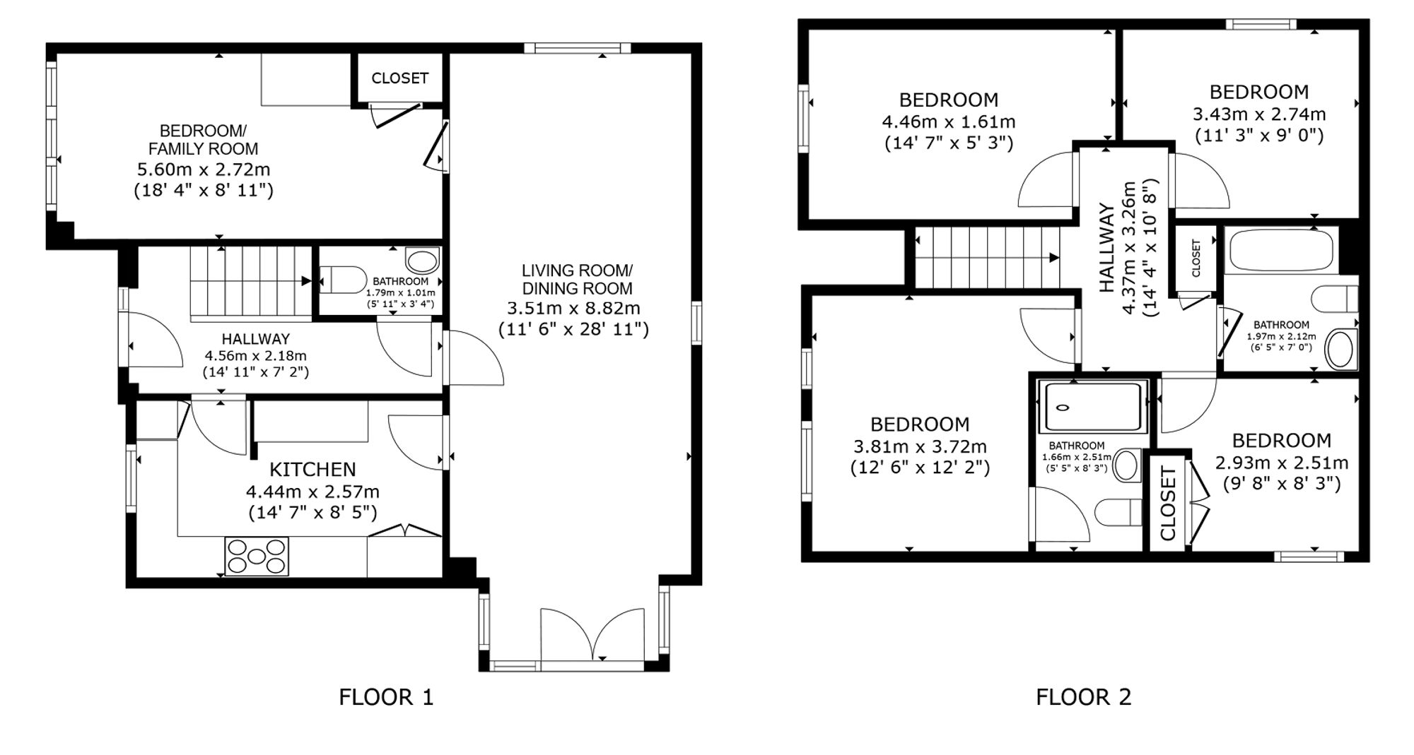
The ground floor accommodation is both spacious and well laid out, centred around a bright and contemporary open plan lounge and dining area. This impressive space is enhanced by modern finishes, warm wood flooring, and ample natural light from the rear aspect, creating an inviting setting for both everyday living and entertaining. The dining area comfortably accommodates a full-sized table, while the lounge offers a relaxed and stylish environment. A separate sitting room provides additional flexibility as a family room, home office, or playroom, and the kitchen is well-appointed with generous storage and workspace. A convenient ground floor toilet completes the lower level.

Upstairs, the property continues to impress with a generously proportioned master bedroom benefitting from its own ensuite shower room. Three further well-sized bedrooms provide comfortable accommodation for family or guests, all served by a modern family bathroom. The layout offers excellent flexibility to suit a range of needs.

Externally, the home enjoys private garden grounds to both the front and rear, enclosed by a combination of brick walls and timber fencing, creating a safe and secure outdoor space. Off-street parking is available via a driveway located to the side of the property, adding to the overall convenience of this appealing home. The property further benefits from granted planning permission for a two-storey extension, offering excellent potential for future expansion and the opportunity to tailor the home to individual requirements..

Key Features

  • 4 Bedrooms
  • 3 Bathrooms
  • Detached House
  • Covered area approx. 1,388 sqft
  • Council Tax Band E

Interested in this Property?

Make an enquiry via email

"*" indicates required fields

This field is for validation purposes and should be left unchanged.
Please use valid format e.g. 07123456789, +44 7123456789, +447123456789 #123, (07123) 456 789, etc
GDPR Consent*

OR

Contact our local expert or request a callback

Sophie Bechelli
Email Sophie Bechelli Request A Callback

Request A Call Back

"*" indicates required fields

This field is for validation purposes and should be left unchanged.
Please use valid format e.g. 07123456789, +44 7123456789, +447123456789 #123, (07123) 456 789, etc
GDPR Consent*

Featured Properties

Your saved properties

clyde logo white

Property Alerts.

Stay one step ahead of the market. Register with us today to receive property alters before the portals.

Register your details and property criteria below, and we will send you updates about homes that match your search criteria.

Tip: You can add multiple options/criteria after registration.