Sold STC

Flat

7 Marshall Place, Perth, PH2 8AH
Scroll

Flat

Flat

7 Marshall Place, Perth, PH2 8AH

Offers Over £270,000

Elegant Four-Bedroom Flat with Panoramic Views Over South Inch Park with parking.

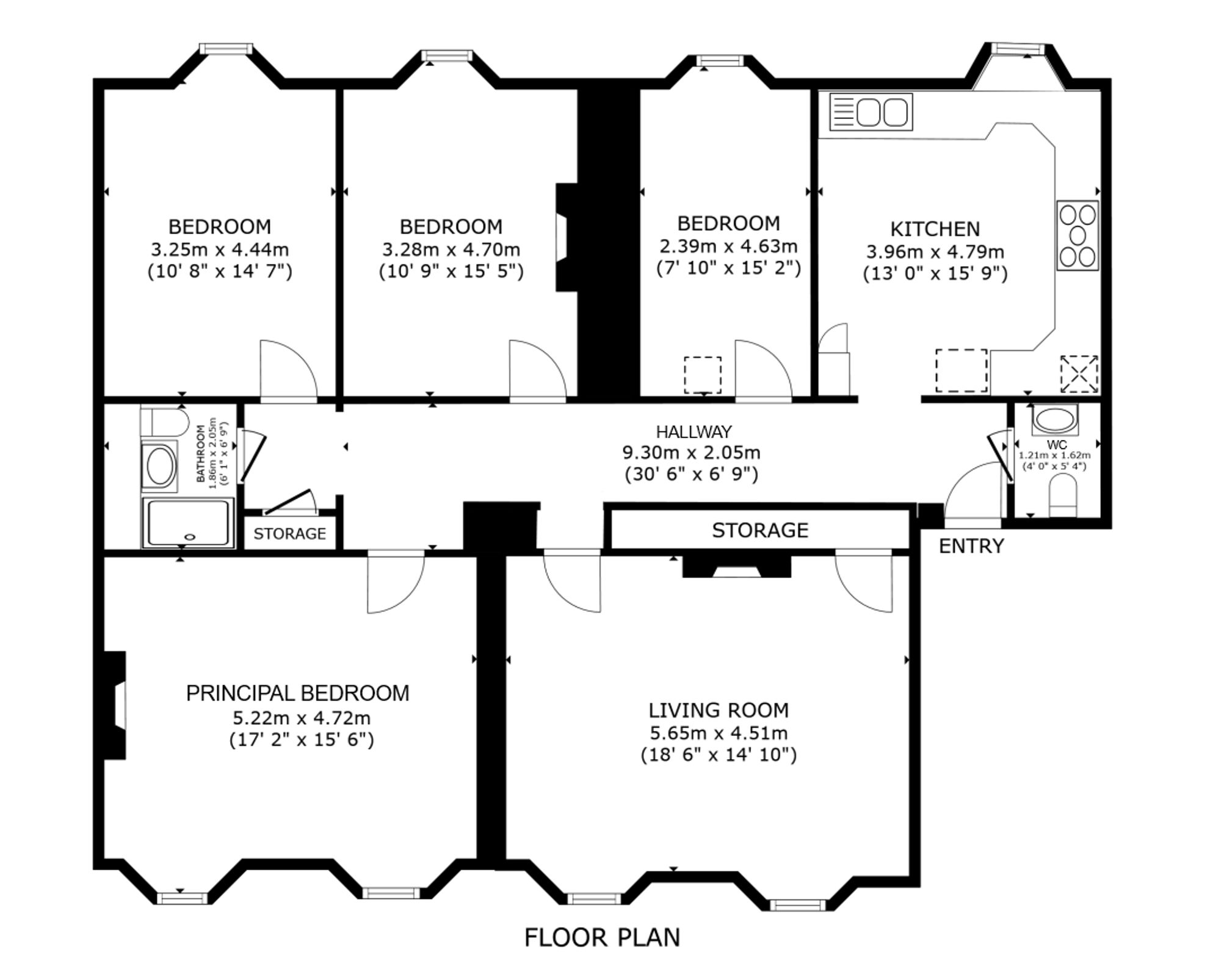
Situated on the desirable south side of Marshall Place, this charming top-floor flat occupies a prime position within a traditional four-storey mid-terraced block of stone construction. The property combines classic architectural character with bright, well-proportioned accommodation, offering a rare opportunity to own a piece of Perth’s historic streetscape.

Access to the flat is via a mutual entrance and stairwell, shared with one neighbouring property and maintained to a good standard. Internally, the flat extends to a generous layout comprising an entrance hall, spacious living room with feature window overlooking South Inch Park and wood burning stove, four double bedrooms, a modern fitted kitchen, shower room, and a separate WC. The rooms benefit from ample natural light, high ceilings, and traditional features such as decorative cornicing and new double glazed sash-and-case windows.

Externally, residents enjoy private parking and direct views over the beautiful landscaped parkland of the South Inch, ideal for leisure walks, outdoor activities, and scenic outlooks year-round.

The location offers excellent convenience, with day-to-day amenities available locally and Perth city centre less than one mile to the north, providing a wide selection of shops, cafés, restaurants, and cultural attractions. The area is also well-served by public transport, with bus and rail connections nearby, and easy access to the M90 motorway, linking Perth to Edinburgh, Dundee, and beyond.

This property represents an attractive proposition for those seeking a spacious period home in a prestigious and picturesque setting, combining historic charm with urban convenience.

Key Features

  • 4 Bedrooms
  • 2 Bathrooms
  • Flat
  • Covered area approx. 1,517 sqft
  • Council Tax Band D

Interested in this Property?

Make an enquiry via email

"*" indicates required fields

This field is for validation purposes and should be left unchanged.
Please use valid format e.g. 07123456789, +44 7123456789, +447123456789 #123, (07123) 456 789, etc
GDPR Consent*

OR

Contact our local expert or request a callback

Nicola Dow
Email Nicola Dow Request A Callback

Request A Call Back

"*" indicates required fields

This field is for validation purposes and should be left unchanged.
Please use valid format e.g. 07123456789, +44 7123456789, +447123456789 #123, (07123) 456 789, etc
GDPR Consent*

Featured Properties

Your saved properties

clyde logo white

Property Alerts.

Stay one step ahead of the market. Register with us today to receive property alters before the portals.

Register your details and property criteria below, and we will send you updates about homes that match your search criteria.

Tip: You can add multiple options/criteria after registration.