Sold STC

32 Montfort Place

Falkirk, FK1 1QS
Scroll

32 Montfort Place

32 Montfort Place

Falkirk, FK1 1QS

Offers Over £219,000

Rarely available semi detached villa located within a highly regarded and central residential locale. Set within a quiet cul de sac the property enjoys open tree lined views to both front and rear. The property is situated conveniently for access to many excellent town centre amenities including Comely Park Primary School, shopping and Falkirk High Station which proves popular with Edinburgh and Glasgow commuters. The property occupies private gardens complemented by a two car wide blocked paved front driveway. The sunny westerly facing rear garden provides lawn, paved patio, bark bed and garden storage shed.

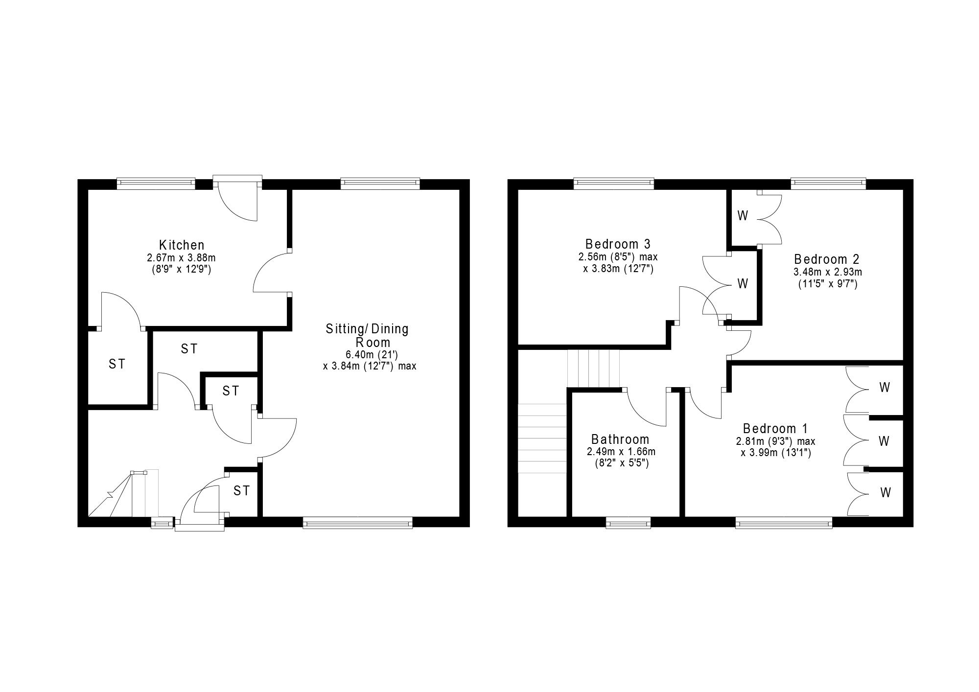
Access to the property is through a wide reception hallway with two useful storage cupboards off and an additional walk in cloaks/storage which provides potential for conversion to a downstairs WC/Shower room if required. The sitting/dining room is an impressive apartment which extends to in excess of twenty one feet and enjoys excellent natural light from the front and rear picture windows. The lower accommodation is completed by a well proportioned kitchen with exterior door to the rear gardens and a remarkably large walk in larder/store off.

On the upper floor there are three double sized bedrooms all of which have fitted robes. The upper floor is completed by a refitted family bathroom with Mira electric shower, easily maintained wet wall, storage and chrome radiator. Practical features include gas central heating, double glazing and timber laminate flooring. Early viewing in highly recommended in order to avoid disappointment.

Sitting/Dining Room 21’ x 12’7” (at widest) 6.40m x 3.84m

Bedroom One 13’1 x 9’3” (to robes) 3.99m x 2.82m

Bedroom Two 11’5” x 9’7” 3.48m x 2.92m

Bedroom Three 12’7” x 8’5” (to robes) 3.84m x 2.57m

Kitchen 12’9” x 8’9” 3.89m x 2.67m

Bathroom 8’2” x 5’5” 2.49m x 1.65m

Key Features

  • 3 Bedrooms
  • 1 Bathroom
  • Semi Detached House
  • Covered area approx. 1,022 sqft
  • Council Tax Band C

Interested in this Property?

Make an enquiry via email

"*" indicates required fields

This field is for validation purposes and should be left unchanged.
Please use valid format e.g. 07123456789, +44 7123456789, +447123456789 #123, (07123) 456 789, etc
GDPR Consent*

OR

Contact our local expert or request a callback

Susan Dunsmore
Email Susan Dunsmore Request A Callback

Request A Call Back

"*" indicates required fields

This field is for validation purposes and should be left unchanged.
Please use valid format e.g. 07123456789, +44 7123456789, +447123456789 #123, (07123) 456 789, etc
GDPR Consent*

Featured Properties

Your saved properties

clyde logo white

Property Alerts.

Stay one step ahead of the market. Register with us today to receive property alters before the portals.

Register your details and property criteria below, and we will send you updates about homes that match your search criteria.

Tip: You can add multiple options/criteria after registration.