Sold STC

20 Cartside Street, Flat 3/2, Battlefield

Glasgow, G42 9TF
Scroll

20 Cartside Street, Flat 3/2, Battlefield

20 Cartside Street, Flat 3/2, Battlefield

Glasgow, G42 9TF

Offers Over £99,000

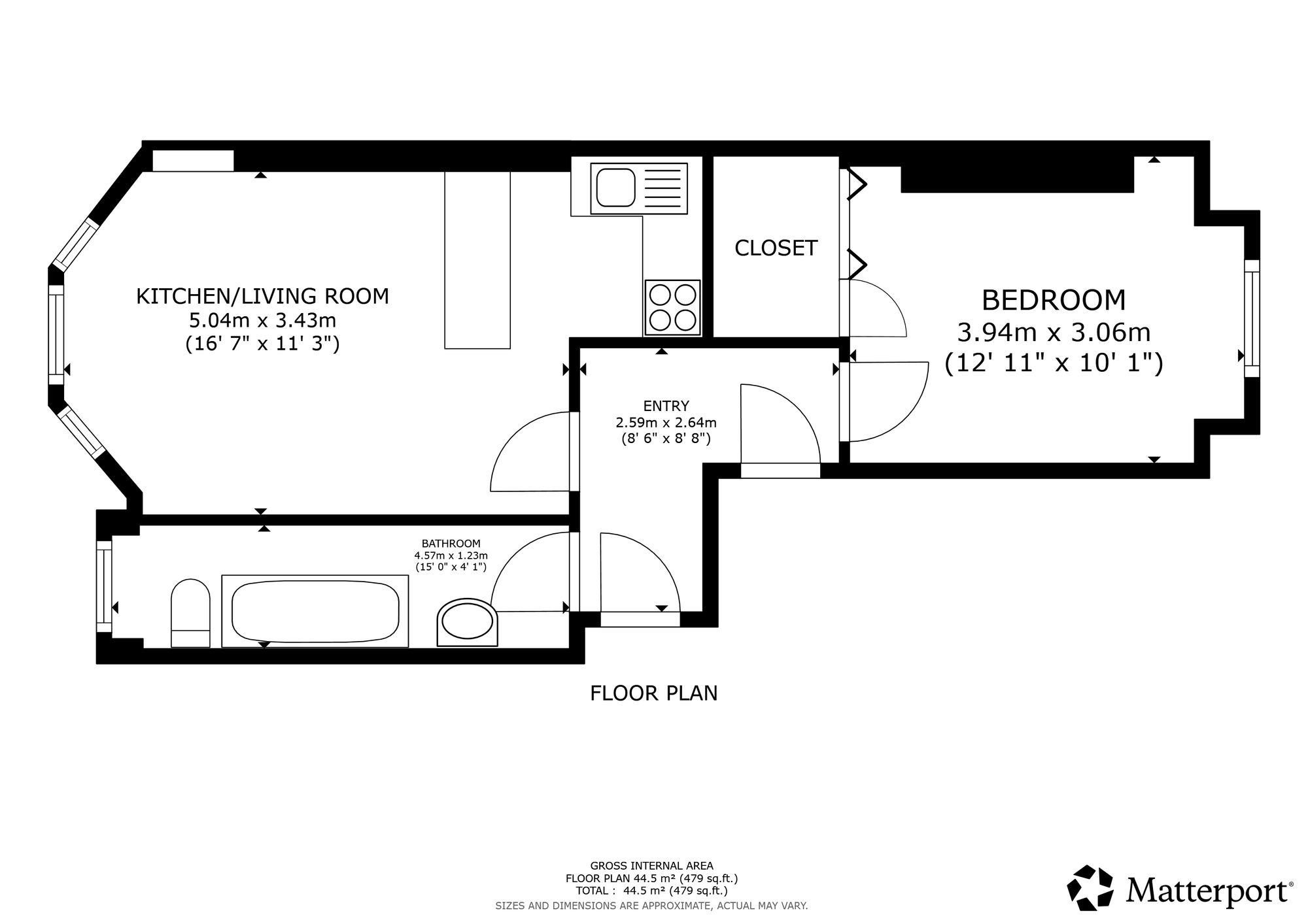
Located on the third floor of this traditional tenement building, this one bedroom flat enjoys open views over the River Cart and Albert Park. The property would benefit from a degree of internal modernisation and redecoration and is sure to appeal to first time buyers and investors alike.

The accommodation extends to welcoming reception hallway with storage cupboard off, bay windowed lounge with alcove and open plan kitchen area, double bedroom with walk-in wardrobe/storage and a bathroom with three piece suite and shower over bath.

Further benefits include gas central heating, secure door entry and a well maintained communal rear garden overlooking the river.

Situated within this popular south side locale, the property is well placed for a wide range of local amenities including shops, cafes, bars and restaurants, many of which are within walking distance. Nearby Shawlands offers a more extensive range of facilities including supermarkets, banking and recreational amenities. The area is well served by regular bus and rail services providing easy access to Glasgow City Centre and the surrounding areas, whilst the nearby M8, M77 and M74 motorway networks make this an ideal location for commuters. Recreational pursuits can also be found at nearby Queen's Park.

Key Features

  • 1 Bedroom
  • 1 Bathroom
  • Flat
  • Covered area approx. 473 sqft
  • Council Tax Band B

Interested in this Property?

Make an enquiry via email

"*" indicates required fields

This field is for validation purposes and should be left unchanged.
Please use valid format e.g. 07123456789, +44 7123456789, +447123456789 #123, (07123) 456 789, etc
GDPR Consent*

OR

Contact our local expert or request a callback

Kieran MacLean
t. 0141 571 3777
Email Kieran MacLean Request A Callback

Request A Call Back

"*" indicates required fields

This field is for validation purposes and should be left unchanged.
Please use valid format e.g. 07123456789, +44 7123456789, +447123456789 #123, (07123) 456 789, etc
GDPR Consent*

Featured Properties

Your saved properties

clyde logo white

Property Alerts.

Stay one step ahead of the market. Register with us today to receive property alters before the portals.

Register your details and property criteria below, and we will send you updates about homes that match your search criteria.

Tip: You can add multiple options/criteria after registration.