Sold STC

5 Muirhead Avenue

Falkirk, FK2 7SQ
Scroll

5 Muirhead Avenue

5 Muirhead Avenue

Falkirk, FK2 7SQ

Offers Over £290,000

Luxury Walker built detached villa enjoying a quiet cul de sac setting within popular New Carron Village. The property enjoys the benefit of a fully enclosed level child safe rear garden with artificial lawn and timber deck. A blocked paved front driveway provides off road parking for two cars and access to the integral garage.

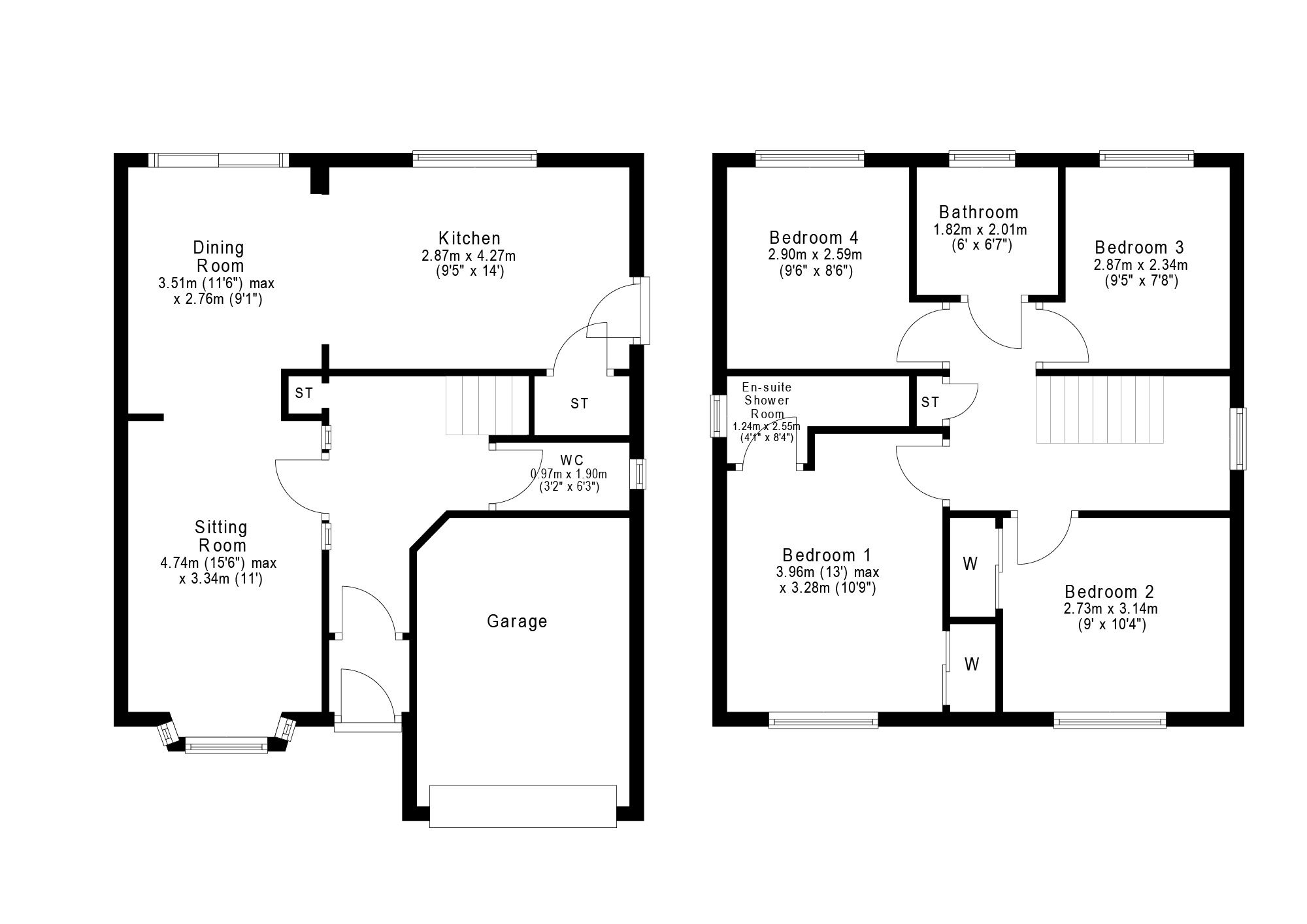
Access is through an entrance vestibule leading thereon to the reception hallway which has a handy downstairs WC off and staircase to upper apartments with feature glass balustrade. The front facing sitting room has a focal point bay window and feature flooring which continues throughout the dining room and kitchen. The dining room has sliding patio doors to the gardens and enjoys open plan access to the super fully refitted kitchen which has a useful storage cupboard off and several integrated appliances.

On the upper floor there are four well proportioned bedrooms two of which have fitted robes. The master bedroom has a stylish refitted en suite shower room complete with mains shower valve, chrome radiator and storage. The family bathroom has also been refitted complete with contemporary matt black fittings and mains shower valve. Practical features include EV car charger, gas central heating and double glazing. Offering excellent family accommodation immediate viewing is highly recommended.

Sitting Room 15’6” x 11’ 4.72m x 3.35m

Dining Room 11’6” x 9’1” 3.51m x 2.77m

Kitchen 14’ x 9’5” 4.27m x 2.87m

Bedroom One 13’ x 10’9” (to robes) 3.96m x 3.28m

En Suite Shower Room 8’4” x 4’1” 2.54m x 1.24m

Bedroom Two 10’4” x 9’ (to robes) 3.15m x 2.74m

Bedroom Three 9’5” x 7’8” 2.87m x 2.34m

Bedroom Four 9’6” x 8’6” 2.90m x 2.59m

Family Bathroom 6’7” x 6’ 2.01m x 1.83m

Downstairs WC 6’3” x 3’2” 1.91m x 0.97m

Key Features

  • 4 Bedrooms
  • 2 Bathrooms
  • Detached House
  • Covered area approx. 1,184 sqft
  • Council Tax Band E

Interested in this Property?

Make an enquiry via email

"*" indicates required fields

This field is for validation purposes and should be left unchanged.
Please use valid format e.g. 07123456789, +44 7123456789, +447123456789 #123, (07123) 456 789, etc
GDPR Consent*

OR

Contact our local expert or request a callback

Susan Dunsmore
Email Susan Dunsmore Request A Callback

Request A Call Back

"*" indicates required fields

This field is for validation purposes and should be left unchanged.
Please use valid format e.g. 07123456789, +44 7123456789, +447123456789 #123, (07123) 456 789, etc
GDPR Consent*

Featured Properties

Your saved properties

clyde logo white

Property Alerts.

Stay one step ahead of the market. Register with us today to receive property alters before the portals.

Register your details and property criteria below, and we will send you updates about homes that match your search criteria.

Tip: You can add multiple options/criteria after registration.