Sold STC

87 Mungalhead Road

Falkirk, FK2 7JH
Scroll

87 Mungalhead Road

87 Mungalhead Road

Falkirk, FK2 7JH

Offers Over £87,500

Charming upper cottage flat located within a well regarded residential locale. The subjects enjoy the benefit of a delightful large mature private rear garden which incorporates lawn and selection of shrubs. The property is situated conveniently for local amenities.

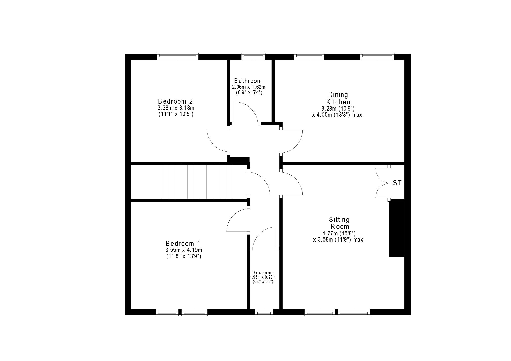
Constructed circa 1930 the property offers generously sized rooms and original period features including pine panelled doors and leaded stained glass windows. Access is through a private entrance door and stairway leading thereon to the reception hallway which has a useful box room/study off which could be utilised for home working. The sitting room is a bright front facing apartment with high ceiling, twin window and focal point fireplace. There are two double sized bedrooms and a dining sized kitchen. The accommodation is completed by a bathroom with white suite and cast iron bath. Further points of interest include partial double glazing and a new gas boiler installed in October 2024 with the balance of the original guarantee. Early viewing is highly recommended in order to avoid disappointment.

Sitting Room 15’8” x 11’9” (at widest) 4.78m x 3.58m

Dining Kitchen 13’3” x 10’9” 4.04m x 3.28m

Bedroom One 13’9” x 11’8” 4.19m x 3.56m

Bedroom Two 11’ x 10’5” 3.35m x 3.18m

Bathroom 6’9” x 5’4” 2.06m x 1.63m

Key Features

  • 2 Bedrooms
  • 1 Bathroom
  • Flat
  • Covered area approx. 807 sqft
  • Council Tax Band C

Interested in this Property?

Make an enquiry via email

"*" indicates required fields

This field is for validation purposes and should be left unchanged.
Please use valid format e.g. 07123456789, +44 7123456789, +447123456789 #123, (07123) 456 789, etc
GDPR Consent*

OR

Contact our local expert or request a callback

Susan Dunsmore
Email Susan Dunsmore Request A Callback

Request A Call Back

"*" indicates required fields

This field is for validation purposes and should be left unchanged.
Please use valid format e.g. 07123456789, +44 7123456789, +447123456789 #123, (07123) 456 789, etc
GDPR Consent*

Featured Properties

Your saved properties

clyde logo white

Property Alerts.

Stay one step ahead of the market. Register with us today to receive property alters before the portals.

Register your details and property criteria below, and we will send you updates about homes that match your search criteria.

Tip: You can add multiple options/criteria after registration.