Sold

69 Battlefield Avenue, Flat 2/2, Battlefield

Glasgow, G42 9HR
Scroll

69 Battlefield Avenue, Flat 2/2, Battlefield

69 Battlefield Avenue, Flat 2/2, Battlefield

Glasgow, G42 9HR

Offers Over £149,000

A particularly impressive second floor one-bedroom tenement apartment which offers bright, airy accommodation and enjoys a peaceful position within minutes' walk of Mount Florida Rail Station.

Number 69 is held within an attractive, red sandstone tenement which sits proudly on a picturesque street lined with period homes, which is typical of Battlefield. Access into the building is via a secure door with buzzer entry system and to the rear, you will find an enclosed shared garden with lawn, drying area and refuse stores. 

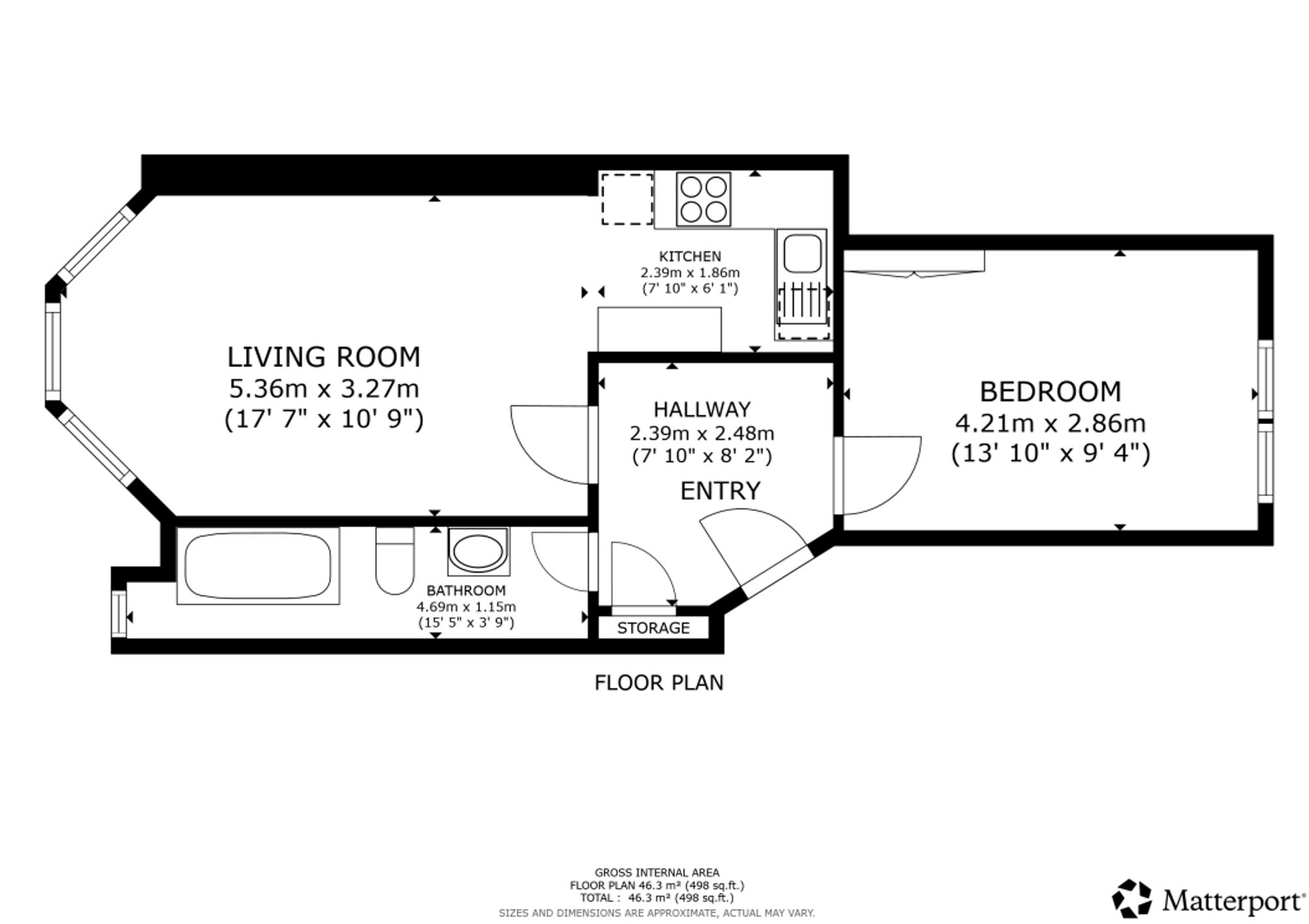
Internally, this home is a substantial apartment that has been meticulously maintained and upgraded by the current owners to offer attractive living quarters. The overall specification and level of finish throughout is impressive and as such is ready to be moved into and enjoyed immediately. In brief, accommodation extends to; broad entrance hall, main bathroom with shower over bath and high-quality tiled finish, double bedroom and an open plan style kitchen with bay windowed lounge off.

The home has a central location in the popular Glasgow district of Battlefield, on the Southside of the city. This area is best known for it's fantastic location, being a mere 10 minutes' walk to the side entrance of Queen's Park and on the doorstep of Battlefield's vibrant cafe scene which is home to the likes of 'Common Ground' and 'Big Bear Bakery'. A variety of public transport services are also readily available with multiple bus routes running along Sinclair Drive and Battlefield Road.

Key Features

  • 1 Bedroom
  • 1 Bathroom
  • Flat
  • Covered area approx. 516 sqft
  • Council Tax Band B

Interested in this Property?

Make an enquiry via email

"*" indicates required fields

This field is for validation purposes and should be left unchanged.
Please use valid format e.g. 07123456789, +44 7123456789, +447123456789 #123, (07123) 456 789, etc
GDPR Consent*

OR

Contact our local expert or request a callback

Jennifer Thomson
t. 0141 571 3777
Email Jennifer Thomson Request A Callback

Request A Call Back

"*" indicates required fields

This field is for validation purposes and should be left unchanged.
Please use valid format e.g. 07123456789, +44 7123456789, +447123456789 #123, (07123) 456 789, etc
GDPR Consent*

Featured Properties

Your saved properties

clyde logo white

Property Alerts.

Stay one step ahead of the market. Register with us today to receive property alters before the portals.

Register your details and property criteria below, and we will send you updates about homes that match your search criteria.

Tip: You can add multiple options/criteria after registration.