Sold

35 Newpark Road

Stirling, FK7 0QG
Scroll

35 Newpark Road

35 Newpark Road

Stirling, FK7 0QG

Offers Over £149,500

This well-proportioned semi-detached villa is located in the established Whins of Milton area of Stirling, a residential setting where neighbouring homes are similar in age and style. The property presents a fantastic opportunity for a range of buyers seeking a comfortable home with scope for personalisation.

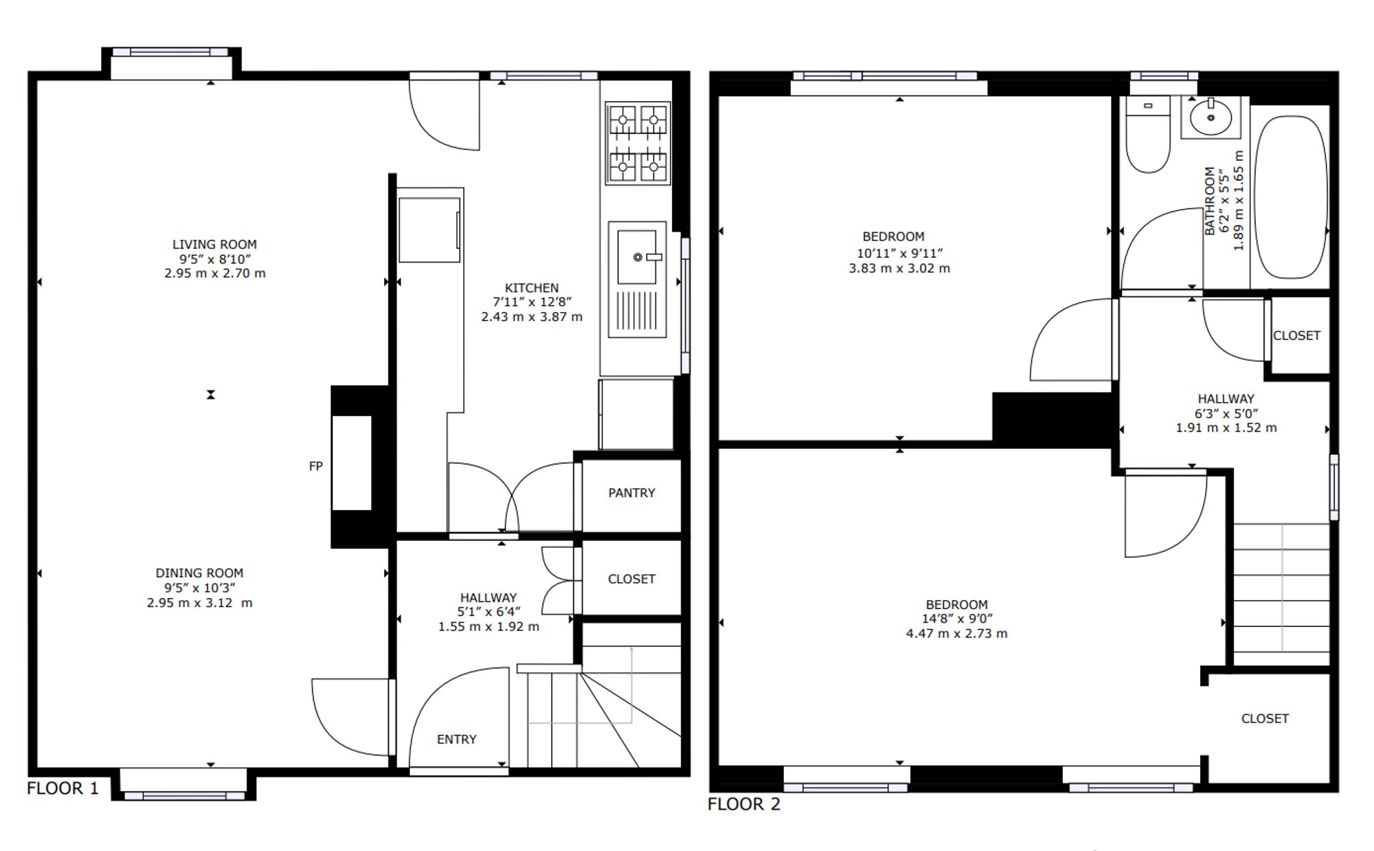
The ground floor comprises a welcoming entrance hall leading into a spacious lounge, ideal for relaxing or entertaining. To the rear, the kitchen provides ample space for everyday cooking and dining, with direct access to the garden.

Upstairs, the first floor hosts a central hall, two generously sized bedrooms, and a well-appointed family bathroom. Each room offers good natural light and practical layout options to suit modern living needs.

Externally, the property benefits from private garden grounds that wrap around the home, enclosed by a combination of timber and wrought iron fencing for both security and privacy. A brick-built entrance canopy adds character to the front elevation, providing shelter and a warm welcome.

Local amenities and facilities are within easy reach, making this an attractive location for families, professionals, or anyone looking to enjoy the balance of residential comfort with convenient access to Stirling’s wider offerings.

Key Features

  • 2 Bedrooms
  • 1 Bathroom
  • Semi Detached House
  • Plot 4,542 sqft
  • Covered area approx. 678 sqft
  • Council Tax Band A

Interested in this Property?

Make an enquiry via email

"*" indicates required fields

This field is for validation purposes and should be left unchanged.
Please use valid format e.g. 07123456789, +44 7123456789, +447123456789 #123, (07123) 456 789, etc
GDPR Consent*

OR

Contact our local expert or request a callback

Carol Clydesdale
t. 01786 471777
Email Carol Clydesdale Request A Callback

Request A Call Back

"*" indicates required fields

This field is for validation purposes and should be left unchanged.
Please use valid format e.g. 07123456789, +44 7123456789, +447123456789 #123, (07123) 456 789, etc
GDPR Consent*

Featured Properties

Your saved properties

clyde logo white

Property Alerts.

Stay one step ahead of the market. Register with us today to receive property alters before the portals.

Register your details and property criteria below, and we will send you updates about homes that match your search criteria.

Tip: You can add multiple options/criteria after registration.