39 Victoria Street

Perth, PH2 8LY
Scroll

39 Victoria Street

39 Victoria Street

Perth, PH2 8LY

Offers Over £220,000

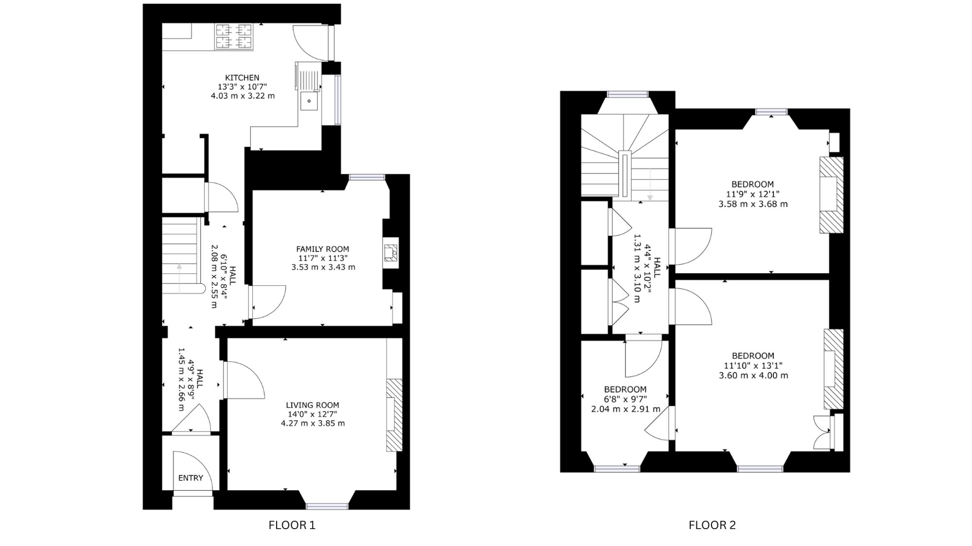
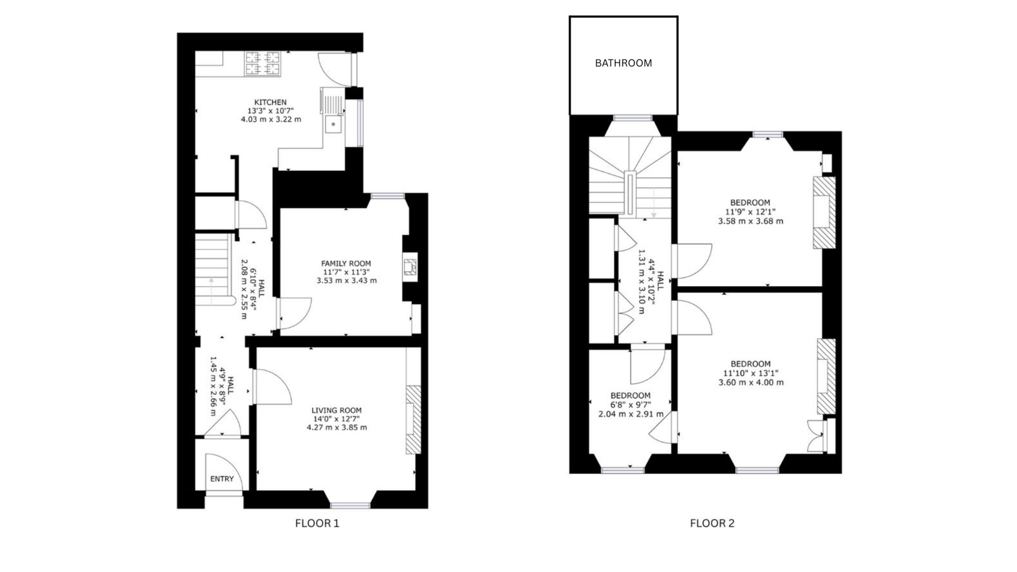
This attractive end-terraced two-storey townhouse offers spacious, well-arranged accommodation and an exceptionally convenient setting within Perth city centre. Ideally suited to families, professionals, or investors, the property combines generous room sizes with easy access to local amenities.

Upon entering, a welcoming entrance vestibule leads into a bright hallway, setting the tone for the home’s comfortable proportions. The living room enjoys excellent natural light and provides a relaxed space for everyday living. Adjacent is a separate family room, perfect for family gatherings or entertaining guests, while the well-sized kitchen offers ample storage and worktop space, with scope for modernisation to suit individual tastes.

From the hallway, a half-landing leads to a family bathroom, positioned for convenience for both ground and first-floor use. The upper floor comprises three well-proportioned bedrooms, each offering flexible use as sleeping accommodation, guest rooms, or home office space.

Externally, the property benefits from its end-terrace position, providing additional privacy and the potential for more natural light throughout.

Situated in the vibrant city centre, the townhouse is surrounded by a mix of residential and commercial properties, creating a lively and well-connected environment. A wide range of shops, cafés, restaurants, schools, and public transport links are all within comfortable walking distance, offering excellent convenience for daily living.

This property presents an exciting opportunity to secure a spacious home in a highly accessible location, with plenty of potential to enhance and personalise.

Key Features

  • 3 Bedrooms
  • 1 Bathroom
  • End of Terrace House
  • Covered area approx. 1,140 sqft
  • Council Tax Band D
  • Parking Permit

Interested in this Property?

Make an enquiry via email

"*" indicates required fields

This field is for validation purposes and should be left unchanged.
Please use valid format e.g. 07123456789, +44 7123456789, +447123456789 #123, (07123) 456 789, etc
GDPR Consent*

OR

Contact our local expert or request a callback

Jamie Cockburn
Email Jamie Cockburn Request A Callback

Request A Call Back

"*" indicates required fields

This field is for validation purposes and should be left unchanged.
Please use valid format e.g. 07123456789, +44 7123456789, +447123456789 #123, (07123) 456 789, etc
GDPR Consent*

Featured Properties

Your saved properties

clyde logo white

Property Alerts.

Stay one step ahead of the market. Register with us today to receive property alters before the portals.

Register your details and property criteria below, and we will send you updates about homes that match your search criteria.

Tip: You can add multiple options/criteria after registration.