Under Offer

17 Springbank Gardens

Dunblane, FK15 9JX
Scroll

17 Springbank Gardens

17 Springbank Gardens

Dunblane, FK15 9JX

Offers Over £380,000

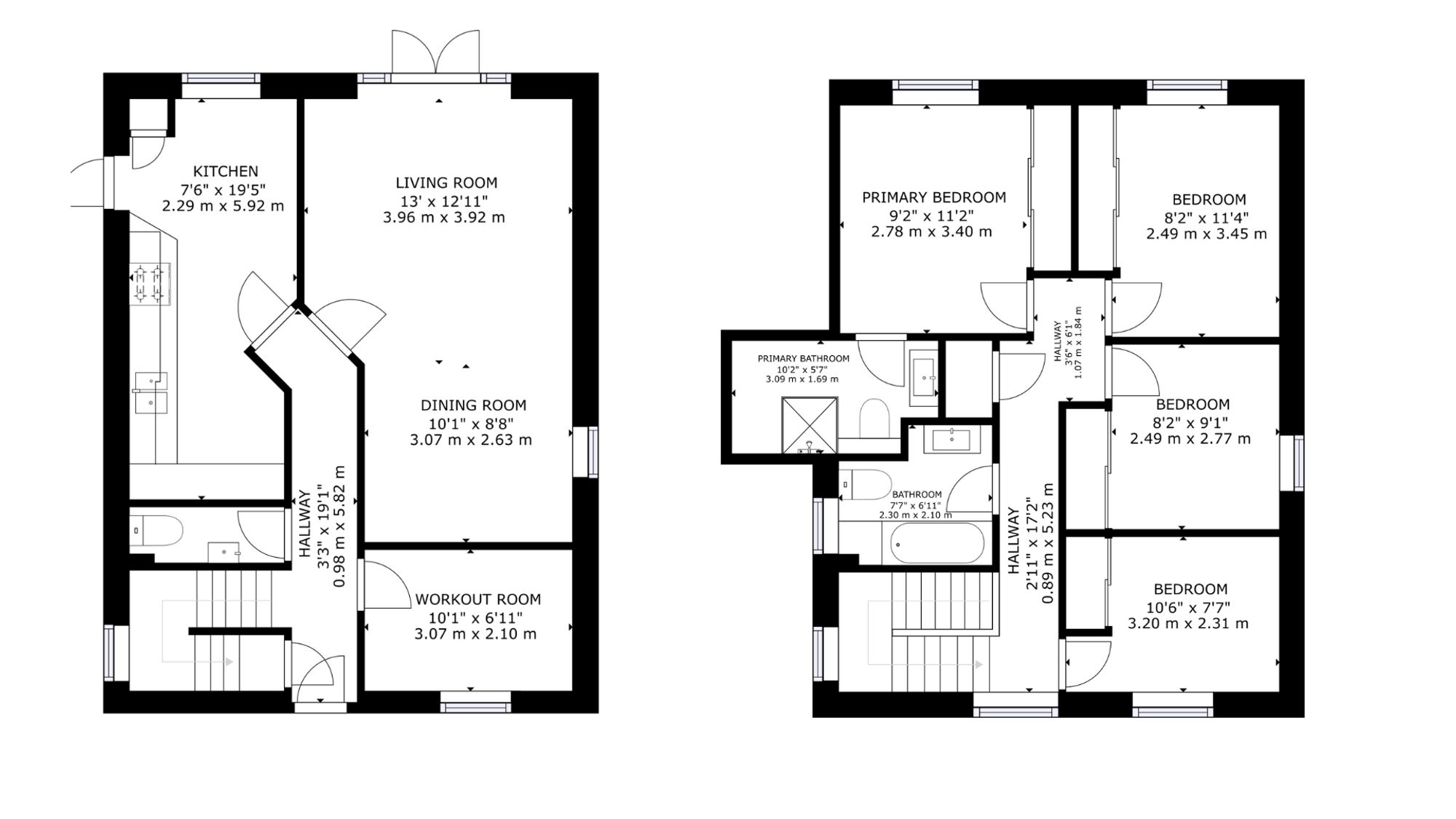
CLOSING DATE TUESDAY 28TH APRIL 2026 @ 12 NOON - Set within a sought-after and well-established residential area of Dunblane, this impressive detached villa offers bright, well-balanced accommodation extending to approximately 122 sq m, perfectly suited to modern family living, with beautiful views and an ideal location enhancing its overall appeal.

The ground floor opens into a welcoming entrance hall, leading through to a stylish and contemporary kitchen, thoughtfully laid out with sleek units, quality worktops and excellent storage. A separate dining area provides an ideal space for both everyday meals and entertaining, while the spacious lounge is flooded with natural light and benefits from direct access to the rear decking, seamlessly blending indoor and outdoor living. A further versatile room on this level offers flexibility as a home office, gym or additional bedroom, complemented by a convenient WC.

Upstairs, the property offers four well-proportioned bedrooms, including a generous principal bedroom with en-suite shower room. The remaining bedrooms are served by a modern family bathroom, all accessed from a central upper hall, creating a practical and family-friendly layout.

Externally, the property is set within private garden grounds bounded by timber fencing. A substantial timber deck to the rear provides an excellent space for outdoor dining and relaxation, perfectly positioned to take in the beautiful open views across the River Allan and towards Laighhills Park. To the front, a driveway offers off-street parking and leads to a garage.

The property is ideally located for access to Dunblane’s excellent local amenities, schooling and transport links, making it a superb choice for families seeking a home that combines space, flexibility and a scenic setting..

Key Features

  • 4 Bedrooms
  • 3 Bathrooms
  • Detached House
  • Covered area approx. 1,313 sqft
  • Council Tax Band F

Interested in this Property?

Make an enquiry via email

"*" indicates required fields

This field is for validation purposes and should be left unchanged.
Please use valid format e.g. 07123456789, +44 7123456789, +447123456789 #123, (07123) 456 789, etc
GDPR Consent*

OR

Contact our local expert or request a callback

Sophie Bechelli
Email Sophie Bechelli Request A Callback

Request A Call Back

"*" indicates required fields

This field is for validation purposes and should be left unchanged.
Please use valid format e.g. 07123456789, +44 7123456789, +447123456789 #123, (07123) 456 789, etc
GDPR Consent*

Featured Properties

Your saved properties

clyde logo white

Property Alerts.

Stay one step ahead of the market. Register with us today to receive property alters before the portals.

Register your details and property criteria below, and we will send you updates about homes that match your search criteria.

Tip: You can add multiple options/criteria after registration.