Sold STC

10 Stockiemuir Avenue

Bearsden, Glasgow, G61 3JH
Scroll

10 Stockiemuir Avenue

10 Stockiemuir Avenue

Bearsden, Glasgow, G61 3JH

Fixed Price £375,000

This generous four bedroom detached family home is located in the highly sought after Mosshead district of Bearsden, ideally positioned close to Mosshead Primary School and within the catchment area for the excellent Bearsden Academy. While offering generous accommodation and a superb location, the property does require a degree of upgrading, providing an excellent opportunity for buyers to modernise to their own taste and specification.

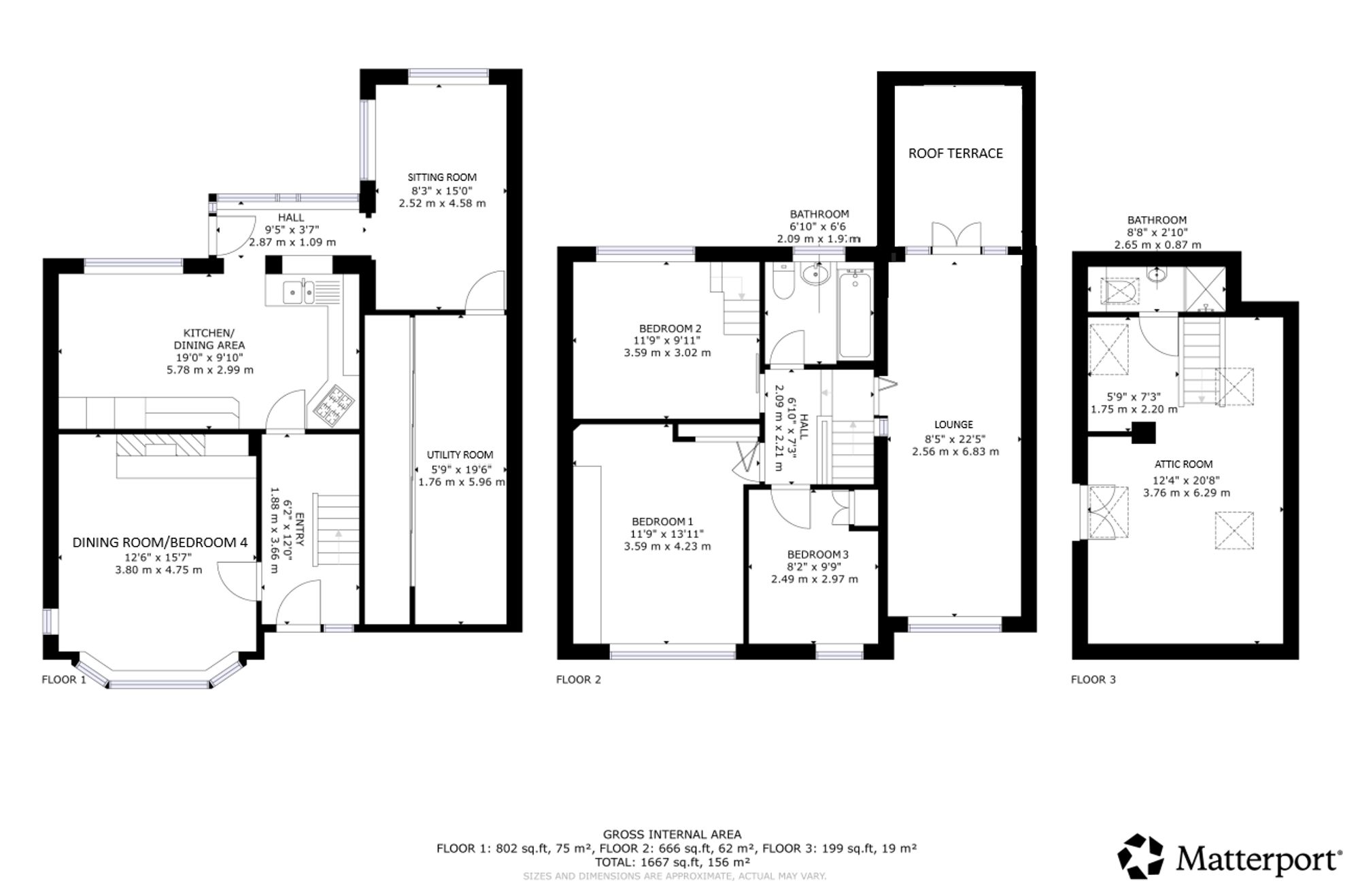
The property opens with a welcoming reception hallway and staircase, leading to a spacious front facing dining room featuring a bay window and electric fire. The kitchen is bright and modern, fitted with white cabinets, dark work surfaces, and integrated appliances including a double oven, dishwasher, microwave, and induction hob with extractor fan. From the kitchen, there is access to a rear porch and the converted garage, now a comfortable sitting room with dual aspects, additional storage, and a utility area.

A staircase leads to the mid landing where a beautifully bright lounge enjoys dual aspects and lovely views. French doors open onto a rooftop terrace with artificial grass, perfect for outdoor furniture and entertaining. On the first floor, there is a fully tiled family bathroom and three well-proportioned double bedrooms. The principal bedroom is front facing with fitted wardrobes, while the second overlooks the rear garden and includes a fixed staircase leading to a lined attic room with shower room.

The front garden is neatly presented with artificial grass bordered by a large hedge and stone wall, alongside a gravel driveway providing off street parking. The rear garden is private and enclosed, featuring a lawn, patio area, and surrounding trees and timber fencing.

Mosshead is a highly desirable area offering excellent local amenities, including nearby shops and larger supermarkets such as Asda in Bearsden, and Waitrose, Tesco, and Marks & Spencer Food Halls in Milngavie. The area is renowned for its outstanding schooling options, including Mosshead Primary, St Nicholas Primary, and Bearsden Academy. Bearsden also benefits from excellent transport links by both road and rail to the City Centre and beyond, while the surrounding countryside provides a wealth of outdoor pursuits such as walking and golf, along with several private gyms nearby.

Key Features

  • 4 Bedrooms
  • 2 Bathrooms
  • Detached House
  • Covered area approx. 1,829 sqft
  • Council Tax Band F
  • Parking Driveway
  • Garden

Interested in this Property?

Make an enquiry via email

"*" indicates required fields

This field is for validation purposes and should be left unchanged.
Please use valid format e.g. 07123456789, +44 7123456789, +447123456789 #123, (07123) 456 789, etc
GDPR Consent*

OR

Contact our local expert or request a callback

Clyde Property
t. 0141 570 0777
Email Clyde Property Request A Callback

Request A Call Back

"*" indicates required fields

This field is for validation purposes and should be left unchanged.
Please use valid format e.g. 07123456789, +44 7123456789, +447123456789 #123, (07123) 456 789, etc
GDPR Consent*

Featured Properties

Your saved properties

clyde logo white

Property Alerts.

Stay one step ahead of the market. Register with us today to receive property alters before the portals.

Register your details and property criteria below, and we will send you updates about homes that match your search criteria.

Tip: You can add multiple options/criteria after registration.