Sold

21d Kinnoull Street

Perth, PH1 5EN
Scroll

21d Kinnoull Street

21d Kinnoull Street

Perth, PH1 5EN

Offers Over £65,000

Charming Second-Floor Flat in the Heart of Perth City Centre

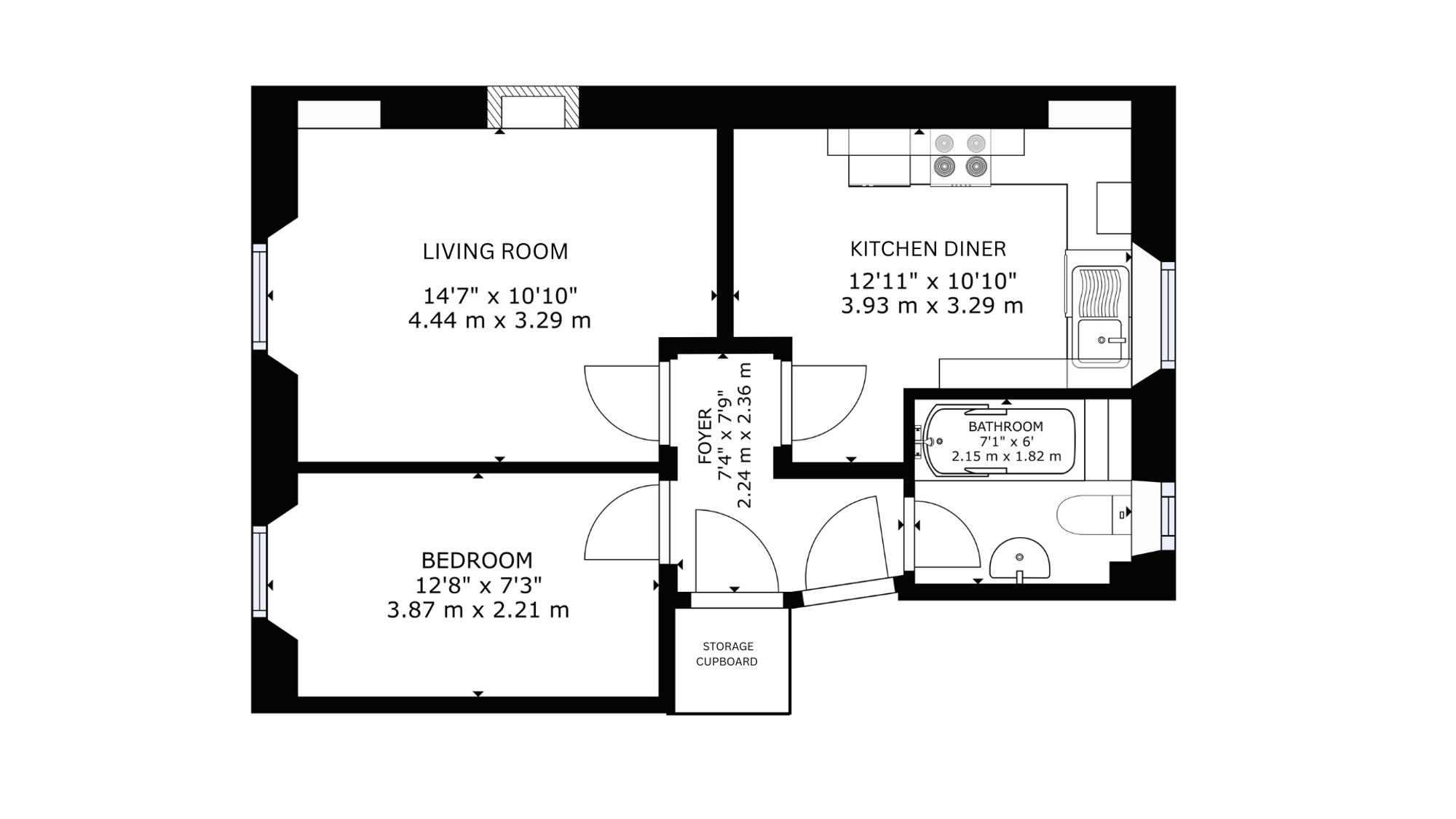
Well-positioned within a traditional mid-terraced tenement building, this one-bedroom second-floor flat offers a fantastic opportunity to acquire a centrally located property in the heart of Perth. The building is arranged over three storeys plus attic and contains six residential flats in total.

The flat itself benefits from double glazing throughout, gas central heating, and a secure entry system, ensuring year-round comfort and peace of mind. A storage cupboard is located immediately to the left upon entering the property, providing useful additional space.

Accommodation comprises a welcoming entrance hall leading to a bright and spacious living room , a well-appointed kitchen diner with ample space for a dining table, a comfortable double bedroom, and a modern bathroom. The layout is flexible and well-suited for first-time buyers, investors, or those seeking a centrally located pied-à-terre.

Situated in Perth city centre, the property enjoys a convenient location with a wide range of local amenities nearby, including shopping, educational facilities, and excellent transport links. The surrounding neighbourhood features a mix of residential and commercial properties, creating a vibrant and accessible urban environment.

Key Features

  • 1 Bedroom
  • 1 Bathroom
  • Apartment
  • Covered area approx. 441 sqft
  • Council Tax Band A

Interested in this Property?

Make an enquiry via email

"*" indicates required fields

This field is for validation purposes and should be left unchanged.
Please use valid format e.g. 07123456789, +44 7123456789, +447123456789 #123, (07123) 456 789, etc
GDPR Consent*

OR

Contact our local expert or request a callback

Jamie Cockburn
Email Jamie Cockburn Request A Callback

Request A Call Back

"*" indicates required fields

This field is for validation purposes and should be left unchanged.
Please use valid format e.g. 07123456789, +44 7123456789, +447123456789 #123, (07123) 456 789, etc
GDPR Consent*

Featured Properties

Your saved properties

clyde logo white

Property Alerts.

Stay one step ahead of the market. Register with us today to receive property alters before the portals.

Register your details and property criteria below, and we will send you updates about homes that match your search criteria.

Tip: You can add multiple options/criteria after registration.