Sold

9 Thornwood Gardens, Flat 1/2, Thornwood

Glasgow, G11 7PJ
Scroll

9 Thornwood Gardens, Flat 1/2, Thornwood

9 Thornwood Gardens, Flat 1/2, Thornwood

Glasgow, G11 7PJ

Offers Over £245,000

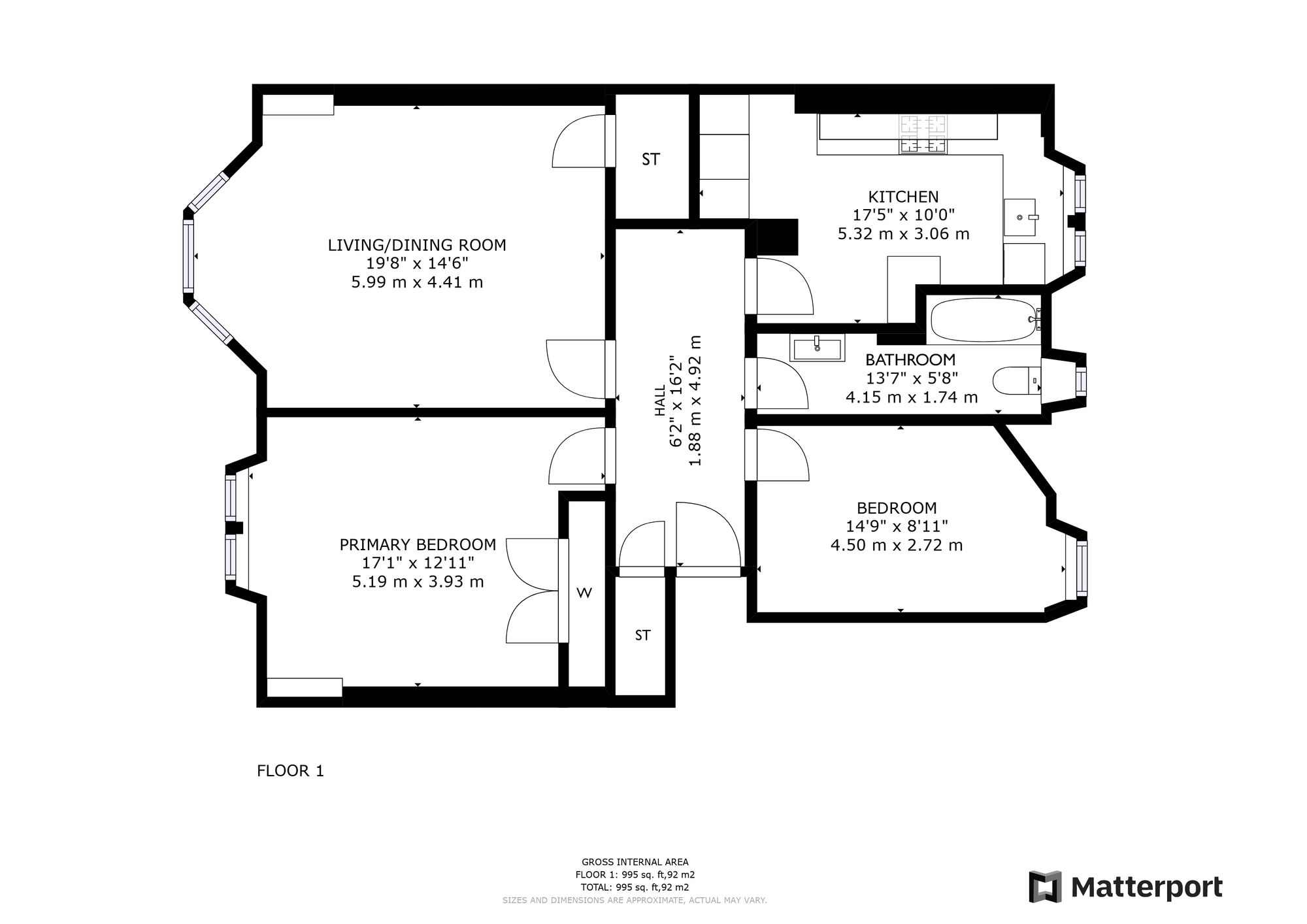
Finished to an exceptional standard throughout and ready for immediate move-in, this stunning, full-sized, two bedroom, tenement apartment offers luxurious accommodation and benefits from a preferred first floor position within a beautiful, red sandstone tenement in Thornwood. As you will see from the attached HD Video, photographs and floorplan, the apartment offers bright, airy accommodation which is perfect for a young professional couple wishing to be near amenities in Thornwood, Broomhill and Hyndland. The tenement also backs towards an attractive, south-facing, shared garden which is maintained by the residents. In terms of the layout and specification, the apartment has been formed with great care and attention to detail. The accommodation extends to: broad reception hallway with large walk-in cupboard, beautiful bay window living room with tiled floor in bay window area and access to another huge cupboard, two spacious double bedrooms of which the master has broad fitted wardrobes, stunning Ashley Ann fitted kitchen with full array of integrated appliances and breakfast bar and a fabulous, tiled main bathroom with white suite and shower over bath. Thornwood Gardens is in the catchment area for Hyndland Secondary, and is well placed for immediate access to a wealth of amenities including shops, cafes, boutiques and restaurants on Dumbarton Road. Broomhill and Hyndland and Crow Road retail park is minutes' walk. Partick main line, underground and bus station is close by and the major road networks can be joined within minutes making this an ideal base for those looking to commute throughout the central belt

Key Features

  • 2 Bedrooms
  • 1 Bathroom
  • Flat
  • Covered area approx. 1,011 sqft
  • Council Tax Band D

Interested in this Property?

Make an enquiry via email

"*" indicates required fields

This field is for validation purposes and should be left unchanged.
Please use valid format e.g. 07123456789, +44 7123456789, +447123456789 #123, (07123) 456 789, etc
GDPR Consent*

OR

Contact our local expert or request a callback

Rachel Dewar
t. 0141 212 7014
Email Rachel Dewar Request A Callback

Request A Call Back

"*" indicates required fields

This field is for validation purposes and should be left unchanged.
Please use valid format e.g. 07123456789, +44 7123456789, +447123456789 #123, (07123) 456 789, etc
GDPR Consent*

Your saved properties

clyde logo white

Property Alerts.

Stay one step ahead of the market. Register with us today to receive property alters before the portals.

Register your details and property criteria below, and we will send you updates about homes that match your search criteria.

Tip: You can add multiple options/criteria after registration.