Sold STC

145 Holmlea Road, Flat 3/3, Cathcart

Glasgow, G44 4AF
Scroll

145 Holmlea Road, Flat 3/3, Cathcart

145 Holmlea Road, Flat 3/3, Cathcart

Glasgow, G44 4AF

Offers Over £129,000

A traditional one-bedroom, third floor tenement apartment which benefits from a highly convenient setting in Cathcart, surrounded by popular local amenities and within 0.3 miles of Mount Florida Rail Station.

The home for sale has a central location in the popular Glasgow district of Cathcart, on the Southside of the city. This area is known for its fantastic location, being a mere 10 minutes' walk to the side entrance to Queens Park and on the doorstep of Battlefield's vibrant café scene which is home to the likes of 'Common Ground' and 'Big Bear Bakery'. Other amenities are also nearby with a Marks & Spencer’s, Starbucks and a Co-op supermarket to name a few. Local education facilities are also nearby with Glasgow Clyde College and Langside Library within walking distance. As such, this fantastic apartment is certain to appeal to a broad sector of the market including first time buyers, couples, parents buying for students and young professionals who wish to fully immerse themself into inner city apartment life. A variety of public transport services are also readily available with multiple bus routes running along Holmlea Road.

This superb apartment is held on the third floor of a particularly handsome red sandstone tenement. The building is understood to have been constructed around the 1900's and is meticulously maintained by the factor. Access into number 145 is via a secure door with buzzer entry system. At the rear of the building, you will find an enclosed area with separate drying facilities and refuse stores.

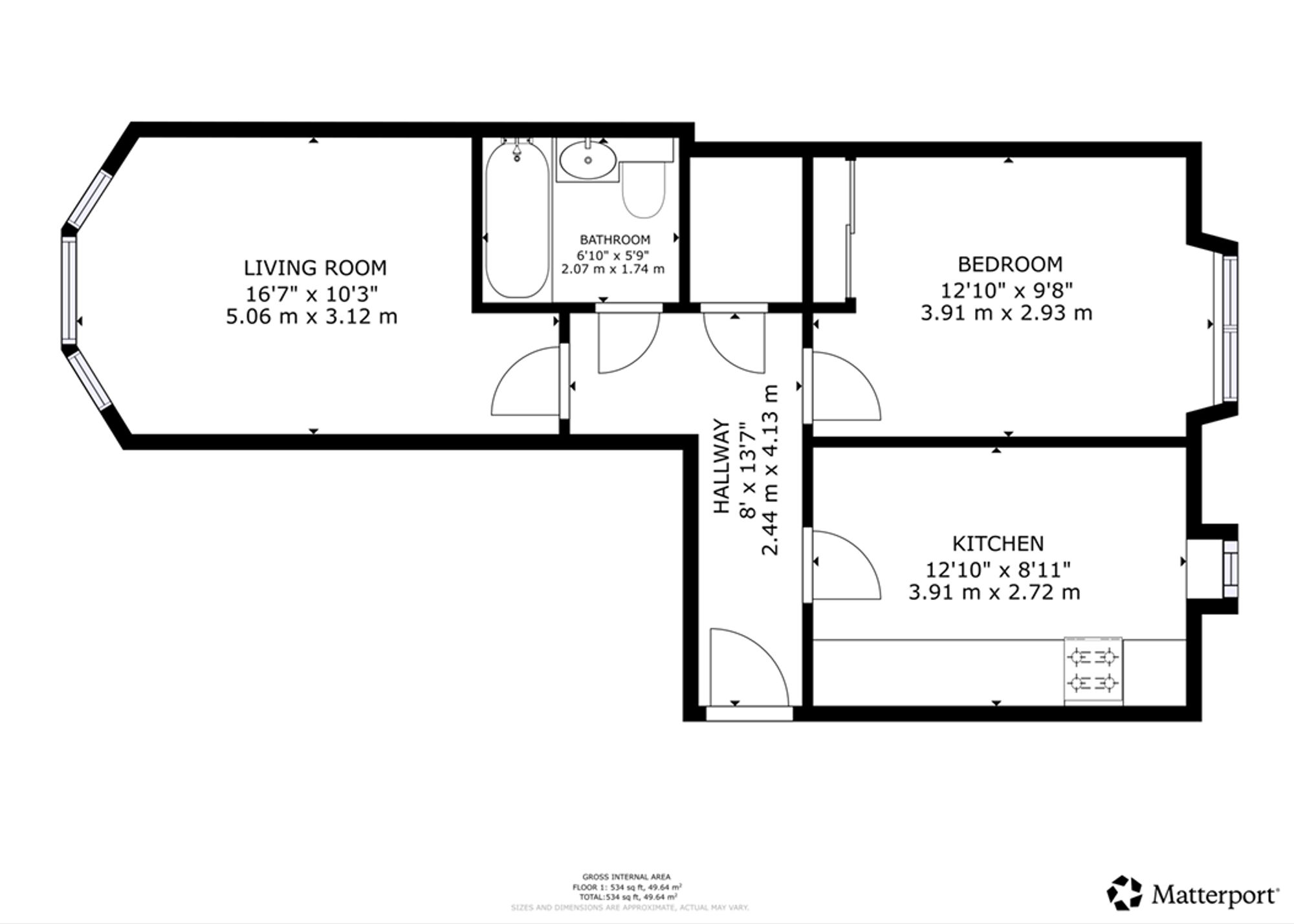
The apartment for sale is a well presented, one-bedroom example which offers bright, airy living space that will appeal to many. The attached photographs, HD video and floorplan will give you some idea of the size, style and specification of the property however in brief, the accommodation extends to;  reception hall, bay windowed lounge, bathroom with shower over bath, double bedroom and a breakfasting sized kitchen.

Key Features

  • 1 Bedroom
  • 1 Bathroom
  • Flat
  • Covered area approx. 516 sqft
  • Council Tax Band B

Interested in this Property?

Make an enquiry via email

"*" indicates required fields

This field is for validation purposes and should be left unchanged.
Please use valid format e.g. 07123456789, +44 7123456789, +447123456789 #123, (07123) 456 789, etc
GDPR Consent*

OR

Contact our local expert or request a callback

Kieran MacLean
t. 0141 571 3777
Email Kieran MacLean Request A Callback

Request A Call Back

"*" indicates required fields

This field is for validation purposes and should be left unchanged.
Please use valid format e.g. 07123456789, +44 7123456789, +447123456789 #123, (07123) 456 789, etc
GDPR Consent*

Featured Properties

Your saved properties

clyde logo white

Property Alerts.

Stay one step ahead of the market. Register with us today to receive property alters before the portals.

Register your details and property criteria below, and we will send you updates about homes that match your search criteria.

Tip: You can add multiple options/criteria after registration.