460 Sauchiehall Street, Flat 4/4, City Centre

Glasgow, G2 3JU
Scroll

460 Sauchiehall Street, Flat 4/4, City Centre

460 Sauchiehall Street, Flat 4/4, City Centre

Glasgow, G2 3JU

Offers Over £138,000

Located within the landmark Beresford building, this fantastic flat is exceptionally well placed for those looking to take advantage of all the offerings of the City Centre including restaurants, pubs, and shops.

Glasgow, Strathclyde and Calendonian Universities are all within close proximity whilst the world-renowned School of Art and the Royal Academy for Music and Drama are a short walk away. The building is steeped in history and in 1939 John F Kennedy gave his first public address to US Citizens in the ballroom following the sinking of SS Athena by a German U-boat. The building has also been used as offices and halls of residence before being converted to flats in 2006.

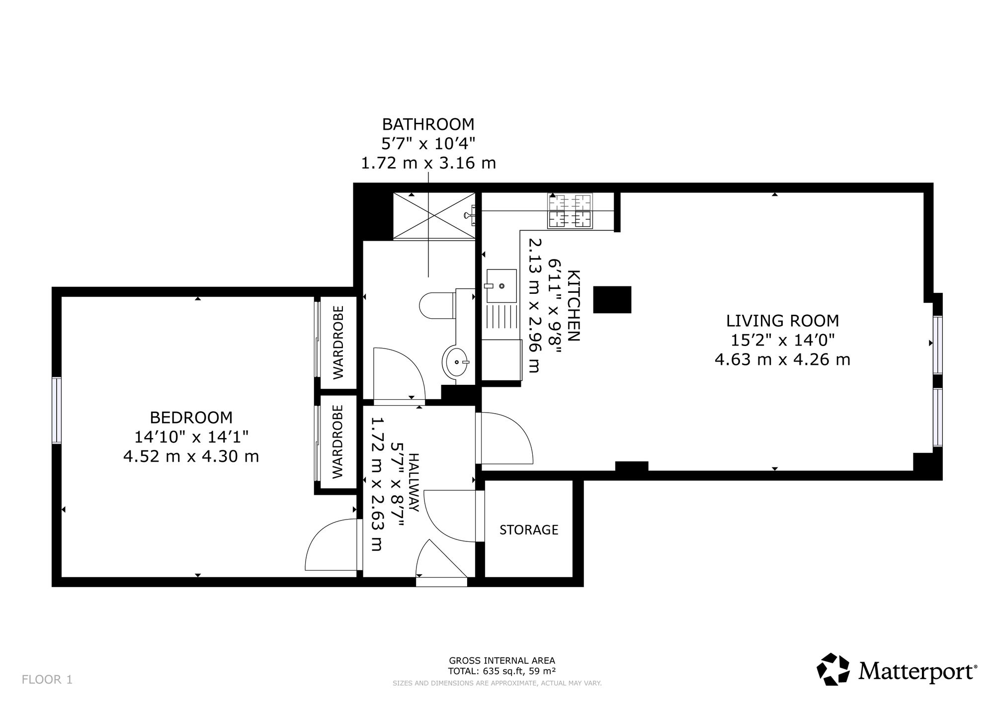
Access to the beautiful communal hallway is via a secure entry system with stairs and lifts allowing access to all levels. The home for sale is a well presented one bedroom flat located on the fourth floor. The attached photographs, floor plan and HD video tour will give an indication to the size and layout of the flat. However, in brief the accommodation extends to; welcoming entrance hallway with storage off, a spacious living/dining/kitchen. The kitchen itself has base and wall mounted units with tiled splash back and integrated appliances. There is an incredibly spacious bedroom, with two built in wardrobes and the accommodation is completed by a shower room with enclosed shower cubicle.

Key Features

  • 1 Bedroom
  • 1 Bathroom
  • Flat
  • Covered area approx. 441 sqft
  • Council Tax Band C

Interested in this Property?

Make an enquiry via email

"*" indicates required fields

This field is for validation purposes and should be left unchanged.
Please use valid format e.g. 07123456789, +44 7123456789, +447123456789 #123, (07123) 456 789, etc
GDPR Consent*

OR

Contact our local expert or request a callback

Millie Gibbons
t. 0141 212 7026
Email Millie Gibbons Request A Callback

Request A Call Back

"*" indicates required fields

This field is for validation purposes and should be left unchanged.
Please use valid format e.g. 07123456789, +44 7123456789, +447123456789 #123, (07123) 456 789, etc
GDPR Consent*

Featured Properties

Your saved properties

clyde logo white

Property Alerts.

Stay one step ahead of the market. Register with us today to receive property alters before the portals.

Register your details and property criteria below, and we will send you updates about homes that match your search criteria.

Tip: You can add multiple options/criteria after registration.