Sold STC

5 Drummond Place

Falkirk, FK1 5PN
Scroll

5 Drummond Place

5 Drummond Place

Falkirk, FK1 5PN

Offers Over £355,000

Luxury Bett built detached villa located within a highly regarded and sought after residential locale. Enjoying a peaceful, end of cul-de-sac setting, the subjects occupy delightful private gardens. Attention is drawn to the sunny, southerly facing, fully enclosed rear garden which incorporates lawn and patio. A large block paved driveway provides parking for several vehicles and access to a substantial double sized detached garage.

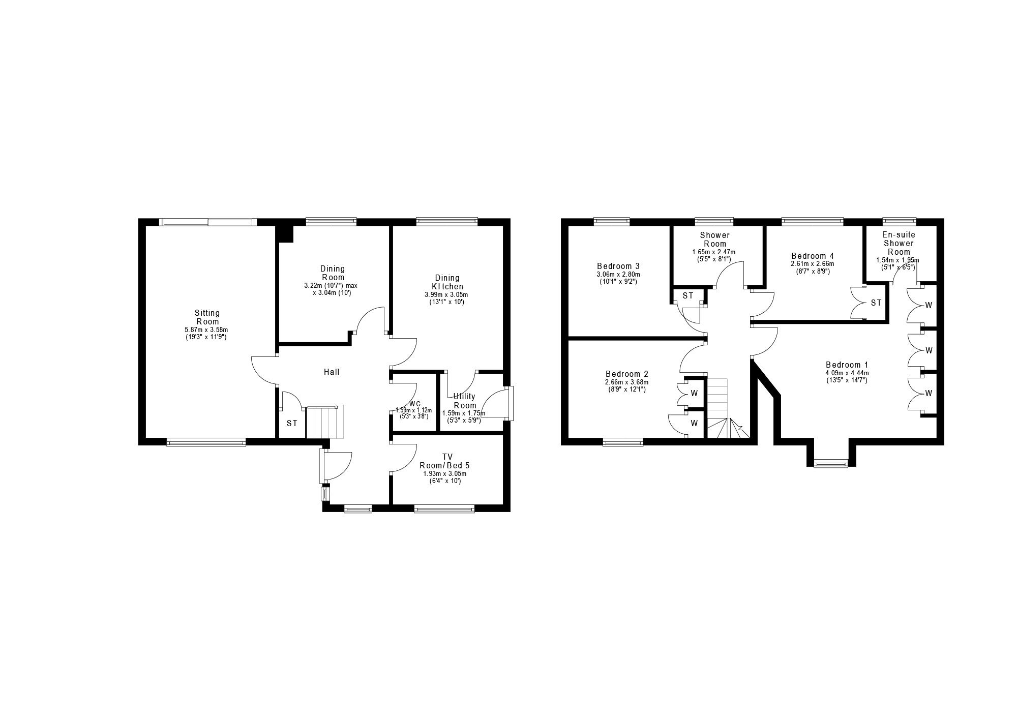
This property offers well designed family sized accommodation formed over two levels. Access is through a replacement exterior door (2025) to a particularly bright and broad reception hallway with focal point staircase, stairwell cloaks/storage cupboard and handy downstairs WC off. The public rooms include an impressive sitting room which extends to in excess of nineteen feet with French doors and a versatile separate dining room. The flexible downstairs TV room could be utilised as a fifth bedroom or study/office for house working if required. Particular attention is drawn to the well appointed dining sized kitchen which has an integrated six burner gas hob, oven, microwave, wine cooler, fridge, freezer and dishwasher. A useful utility room is situated off the kitchen with access to the garden.

On the upper floor there are four double sized bedrooms, all of which have fitted storage. The super master bedroom enjoys wonderful views to the Ochil Hills in addition to offering extensive fitted storage and a refitted, fully ceramic tiled en suite shower room. The stylish family shower room on the upper level is a generously sized apartment with walk-in shower, ceramic tiling throughout, mains shower valve with rain forest shower head and chrome radiator/towel rail. Practical feature include gas central heating with new Worcester Bosch boiler installed 2021 and double glazing. Presented with tasteful neutral décor, the property can truly be described as walk-in condition.

Sitting Room 19’3” x 11’9” 5.87m x 3.58m

Dining Room 10’7” x 10’0” 3.23m x 3.05m

TV Room/Bedroom Five/study 10’0” x 6’4” 3.05m x 1.93m

Dining Kitchen 13’1” x 10’0” 3.99m x 3.05m

Utility Room 5’9” x 5’3” 1.75m x 1.60m

Downstairs WC 5’3” x 3’8” 1.60m x 1.12m

Bedroom One 14’7” x 13’5” (at widest) 4.45m x 4.09m

En Suite Shower Room 6’5” x 5’1” 1.96m x 1.55m

Bedroom Two 12’1” x 8’9” (at widest) 3.68m x 2.67m

Bedroom Three 10’0” x 9’2” 3.05m x 2.79m

Bedroom Four 8’9” x 8’7” 2.67m x 2.62m

Family Shower Room 8’1” x 5’5” 2.46m x 1.65m

Key Features

  • 4 Bedrooms
  • 2 Bathrooms
  • Detached House
  • Covered area approx. 1,345 sqft
  • Council Tax Band G

Interested in this Property?

Make an enquiry via email

"*" indicates required fields

This field is for validation purposes and should be left unchanged.
Please use valid format e.g. 07123456789, +44 7123456789, +447123456789 #123, (07123) 456 789, etc
GDPR Consent*

OR

Contact our local expert or request a callback

Susan Dunsmore
Email Susan Dunsmore Request A Callback

Request A Call Back

"*" indicates required fields

This field is for validation purposes and should be left unchanged.
Please use valid format e.g. 07123456789, +44 7123456789, +447123456789 #123, (07123) 456 789, etc
GDPR Consent*

Featured Properties

Your saved properties

clyde logo white

Property Alerts.

Stay one step ahead of the market. Register with us today to receive property alters before the portals.

Register your details and property criteria below, and we will send you updates about homes that match your search criteria.

Tip: You can add multiple options/criteria after registration.