Sold STC

7 Shirra Place

Falkirk, FK2 7AL
Scroll

7 Shirra Place

7 Shirra Place

Falkirk, FK2 7AL

Offers Over £320,000

Set within a charming smaller cul de sac setting this luxury detached villa enjoys delightful tree lined open front views. The subjects occupy private gardens complemented by a two car wide block paved front driveway which allows access to an integral garage. The southerly westerly facing rear garden is laid to lawn. The property enjoys easy access to many excellent surrounding amenities.

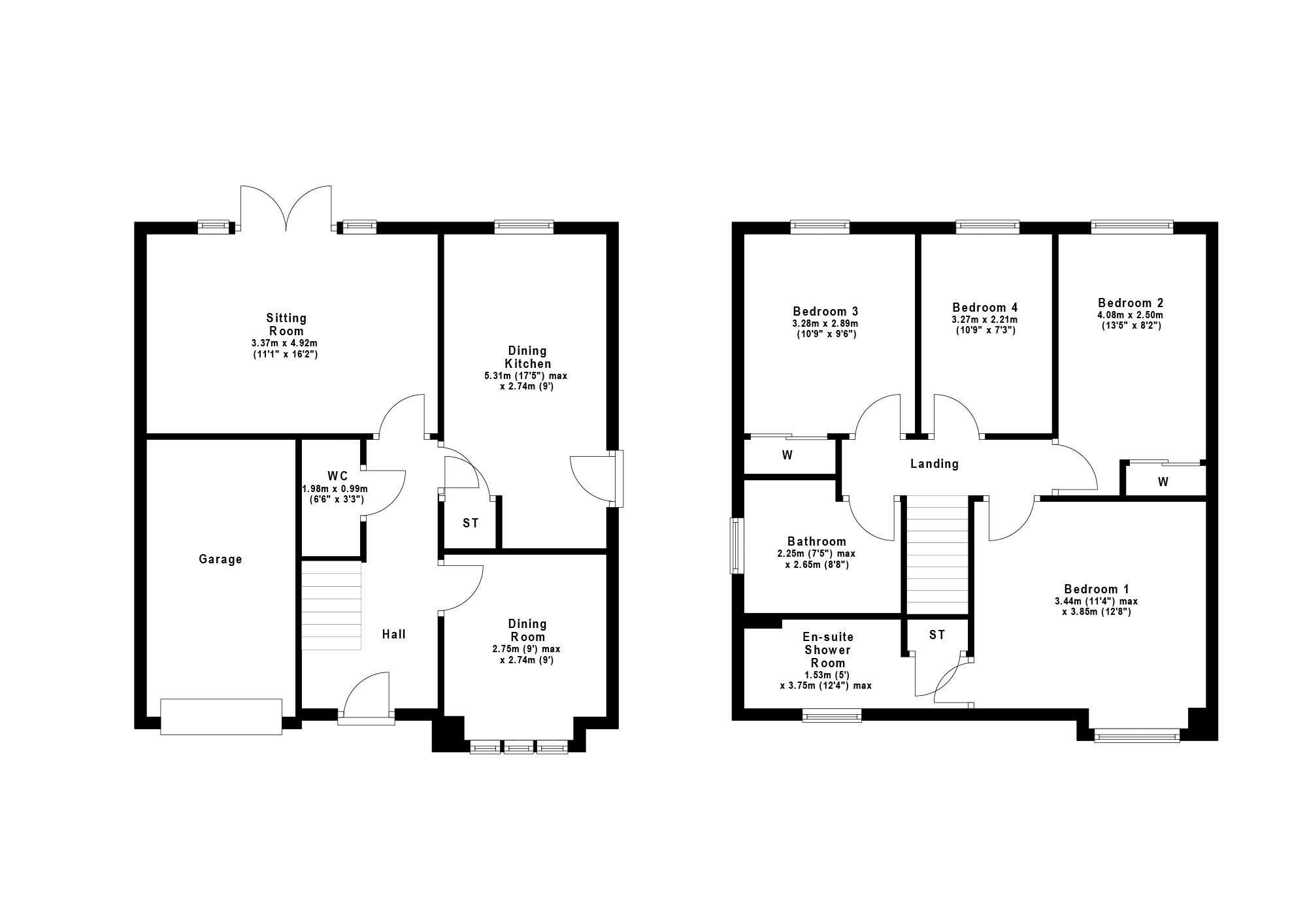
Access to the property is through a long reception hallway with downstairs WC off and stairway to upper apartments. The sitting room has focal point French doors with side lights leading to the rear gardens. The flexible dining/family room would suit a variety of uses including home office if required. The dining sized kitchen extends to in excess of seventeen feet and has an integrated oven, hob and extractor hood. The kitchen has a useful storage cupboard off and exterior rear door to the gardens.

On the upper floor there are four versatile bedrooms, two of which have fitted robes. The super master bedroom enjoys the additional benefit of a generously sized en suite shower room. The upper floor is completed by a large family bathroom with space for a separate shower if required. Practical features include gas central heating, double glazing and timber laminate flooring. Constructed by Persimmon Homes in 2016 the property carries a balance of the builders 10 year NHBC guarantee. Early viewing is highly recommended.

Sitting Room 16’2” x 11’1” 4.93m x 3.38m

Dining Room 9’1” x 9” 2.77m x 2.74m

Dining Kitchen 17’5” x 9” 5.31m x 2.74m

Downstairs WC 6’6” x 3’3” 1.98m x 0.99m

Bedroom One 12’8” x 11’4” 3.86m x 3.45m (at widest)

En Suite Shower Room 12’4” x 5” 3.76m x 1.53m

Bedroom Two 13’5” x 8’2” 4.09m x 2.49m

Bedroom Three 10’9” x 9’6” 3.28m x 2.90m

Bedroom Four 10’9” x 7’3” 3.28m x 2.21m

Bathroom 8’8” x 7’5” 2.64m x 2.26m (at widest)

Key Features

  • 4 Bedrooms
  • 3 Bathrooms
  • Villa
  • Covered area approx. 1,345 sqft
  • Council Tax Band F

Interested in this Property?

Make an enquiry via email

"*" indicates required fields

This field is for validation purposes and should be left unchanged.
Please use valid format e.g. 07123456789, +44 7123456789, +447123456789 #123, (07123) 456 789, etc
GDPR Consent*

OR

Contact our local expert or request a callback

Susan Dunsmore
Email Susan Dunsmore Request A Callback

Request A Call Back

"*" indicates required fields

This field is for validation purposes and should be left unchanged.
Please use valid format e.g. 07123456789, +44 7123456789, +447123456789 #123, (07123) 456 789, etc
GDPR Consent*

Featured Properties

Your saved properties

clyde logo white

Property Alerts.

Stay one step ahead of the market. Register with us today to receive property alters before the portals.

Register your details and property criteria below, and we will send you updates about homes that match your search criteria.

Tip: You can add multiple options/criteria after registration.