Sold STC

18 Lettoch Terrace

Pitlochry, PH16 5BA
Scroll

18 Lettoch Terrace

18 Lettoch Terrace

Pitlochry, PH16 5BA

Offers Over £260,000

Charming Semi-Detached Villa in a Sought-After Pitlochry Location

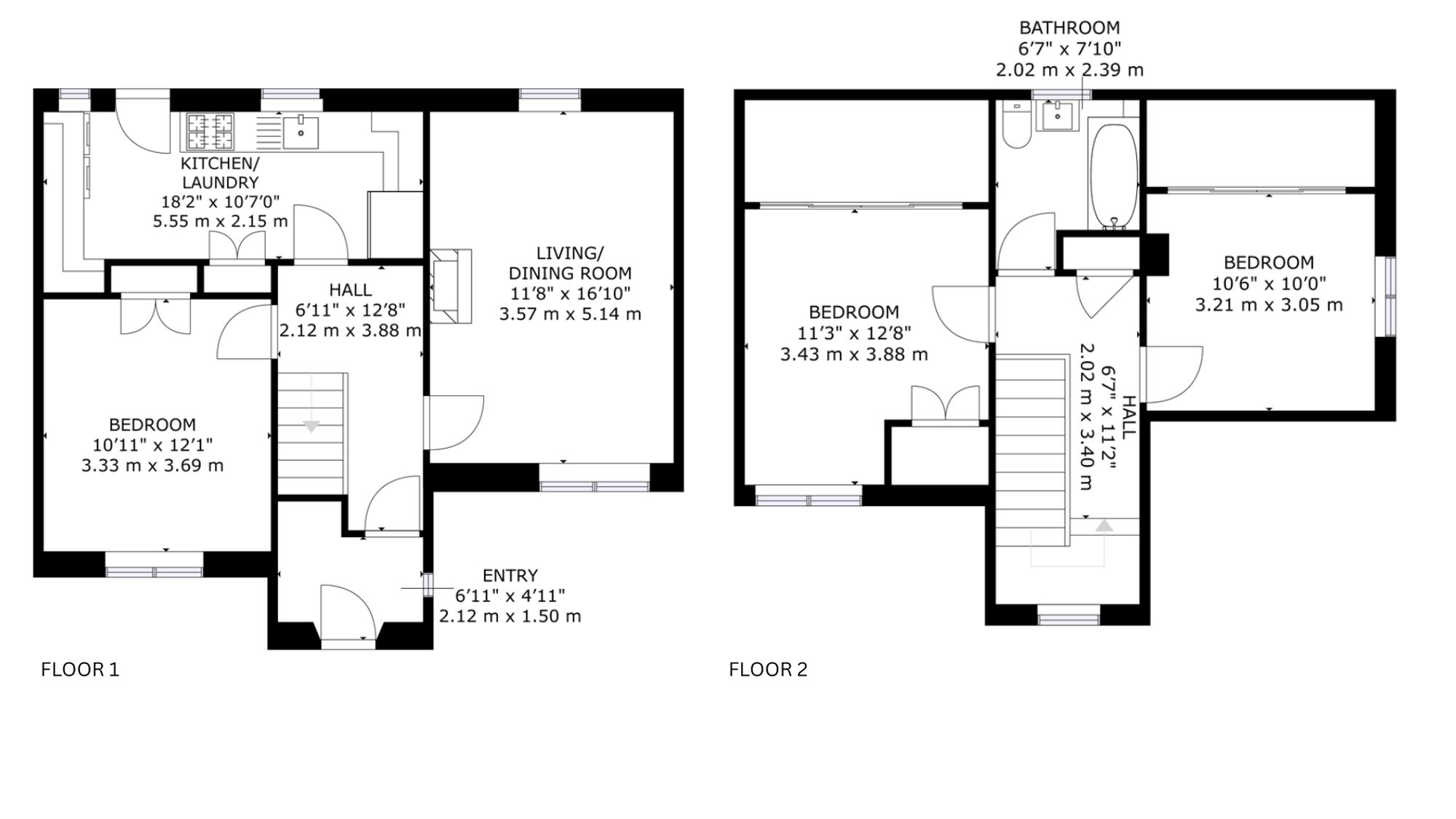
Located in the heart of the scenic Highland town of Pitlochry, this delightful semi-detached villa offers a comfortable and versatile layout across a single storey with an attic conversion. Nestled within a quiet and well-established residential area, the property is surrounded by a variety of traditional and contemporary homes, contributing to a welcoming neighbourhood atmosphere.

The accommodation is bright and well-proportioned throughout. On the ground floor, the home opens with an entrance vestibule leading into a spacious hallway with a staircase to the upper level. The generous lounge enjoys ample natural light and offers a cosy space for relaxing or entertaining. A well-sized double bedroom is also located on this level, providing flexibility for use as a principal bedroom or guest accommodation. The kitchen, located to the rear of the property, offers a practical layout with ample worktop space and storage, and could easily be modernised to suit individual taste.

Upstairs, the landing leads to two further bedrooms, both of which enjoy natural light and pleasant outlooks. A family bathroom with WC is also located on this level and completes the accommodation.

Externally, the property is accessed via an adopted road and benefits from a private garden area, offering potential for landscaping or outdoor seating. On-street parking is available nearby.

Pitlochry itself is a vibrant and highly desirable town, renowned for its natural beauty and excellent range of amenities including shops, cafés, restaurants, primary and secondary schools, and transport links via rail and road. The location is ideal for those looking to enjoy a peaceful lifestyle while remaining within easy reach of services and outdoor recreational opportunities.

This is a fantastic opportunity to acquire a charming home in one of Perthshire’s most attractive towns, with scope for further enhancement to create a truly special property.

Key Features

  • 3 Bedrooms
  • 1 Bathroom
  • Semi Detached House
  • Covered area approx. 1,108 sqft
  • Council Tax Band D
  • Parking On street
  • Garden

Interested in this Property?

Make an enquiry via email

"*" indicates required fields

This field is for validation purposes and should be left unchanged.
Please use valid format e.g. 07123456789, +44 7123456789, +447123456789 #123, (07123) 456 789, etc
GDPR Consent*

OR

Contact our local expert or request a callback

Jamie Cockburn
Email Jamie Cockburn Request A Callback

Request A Call Back

"*" indicates required fields

This field is for validation purposes and should be left unchanged.
Please use valid format e.g. 07123456789, +44 7123456789, +447123456789 #123, (07123) 456 789, etc
GDPR Consent*

Featured Properties

Your saved properties

clyde logo white

Property Alerts.

Stay one step ahead of the market. Register with us today to receive property alters before the portals.

Register your details and property criteria below, and we will send you updates about homes that match your search criteria.

Tip: You can add multiple options/criteria after registration.