Sold STC

29 George Terrace

Balfron, Glasgow, G63 0PL
Scroll

29 George Terrace

29 George Terrace

Balfron, Glasgow, G63 0PL

Offers Over £135,000

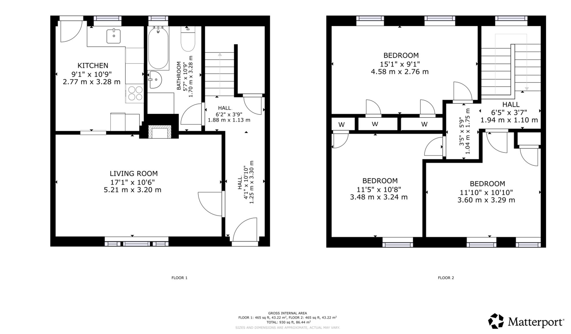
Enjoying a peaceful, traffic free setting, this spacious three bedroom mid terrace villa enjoys open outlooks across a lawned, tree lined triangle to the front, with scenic views of the Campsie Fells and Dumgoyne to the rear. Known as a Blackburn Mark 3, this well regarded style of terraced villa offers generously proportioned accommodation, including three sizeable double bedrooms. Further benefits include newly laid carpeting and fresh, neutral décor throughout.

The western end of George Terrace meets Buchanan Street, effectively Balfron’s main thoroughfare, which provides an excellent range of local amenities including a Co-op store, shops, cafés and restaurants. The village also benefits from a medical centre, pharmacy, veterinary practice, petrol station and two pubs.

Internally, the freshly painted accommodation is arranged over two levels and finished in a light, neutral palette. The ground floor comprises an entrance hall, a bright lounge and an almost floor-to-ceiling window overlooking the open grounds to the front. The kitchen is fitted with a range of wall and base units, new flooring, a traditional clothes-drying pulley and a door providing access to the rear garden.

Upstairs, there are three generous double bedrooms, all benefiting from fitted wardrobes, with the rear facing rooms enjoying attractive views towards the Campsie Fells. Additional storage is provided by a deep cupboard off the hallway, while the family bathroom is fully tiled and fitted with a white three-piece suite and an electric shower over the bath. Further features include double glazing and gas-fired central heating.

Externally the front garden enjoys a pleasant outlook over the adjacent communal lawned area. To the rear, accessed via both the kitchen and a garden gate, is the principal garden which is laid mainly to lawn and enjoys a desirable south-westerly aspect, capturing sunlight throughout the day. The rear garden also includes a garden shed, hedgerows and timber fencing and also boasts an abundance of fruit, including plum trees, raspberry canes and wild strawberries.

Balfron is surrounded by picturesque countryside, with Loch Lomond and The Trossachs National Park close by, along with Balfron Golf Club and bowling club. George Terrace is conveniently located just around the corner from Balfron Primary School, which feeds into the award-winning Balfron High School. Regular bus services and excellent road links provide easy access to both Glasgow and Stirling.

Key Features

  • 3 Bedrooms
  • 1 Bathroom
  • Mid-Terraced House
  • Covered area approx. 990 sqft
  • Council Tax Band B
  • Parking Off street
  • Garden

Interested in this Property?

Make an enquiry via email

"*" indicates required fields

This field is for validation purposes and should be left unchanged.
Please use valid format e.g. 07123456789, +44 7123456789, +447123456789 #123, (07123) 456 789, etc
GDPR Consent*

OR

Contact our local expert or request a callback

Clyde Property
t. 0141 570 0777
Email Clyde Property Request A Callback

Request A Call Back

"*" indicates required fields

This field is for validation purposes and should be left unchanged.
Please use valid format e.g. 07123456789, +44 7123456789, +447123456789 #123, (07123) 456 789, etc
GDPR Consent*

Featured Properties

Your saved properties

clyde logo white

Property Alerts.

Stay one step ahead of the market. Register with us today to receive property alters before the portals.

Register your details and property criteria below, and we will send you updates about homes that match your search criteria.

Tip: You can add multiple options/criteria after registration.