Sold

The Cottar House

Dalguise, Dunkeld, PH8 0JU
Scroll

The Cottar House

The Cottar House

Dalguise, Dunkeld, PH8 0JU

Offers in Region of £290,000

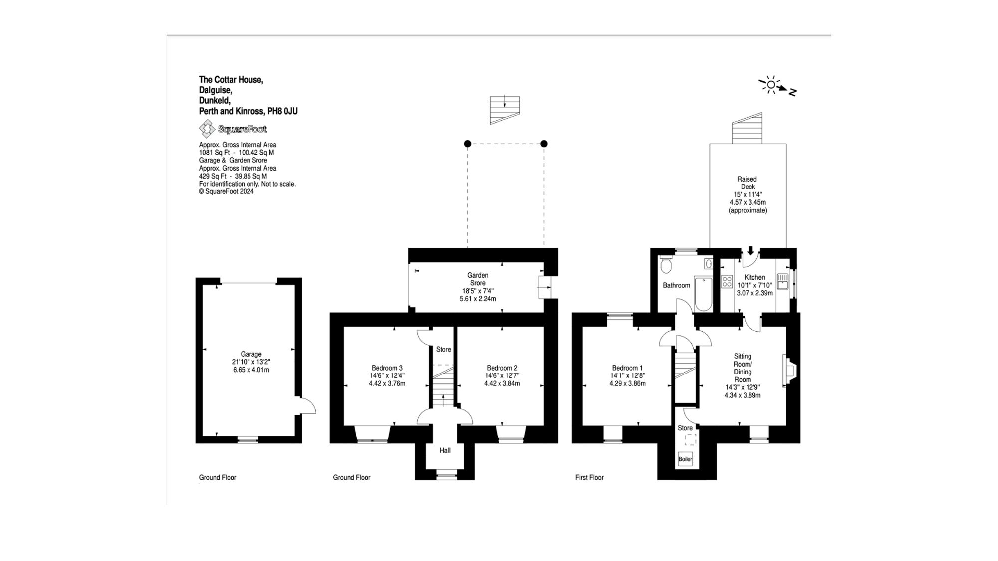
The Cottar House is a late 18th century detached cottage, set in the peaceful hamlet of Dalguise,on the edge of the Tay Forest Park. The property has been fully refurbished to form a lovely three bedroom detached home in this quiet rural hamlet in Highland Perthshire, which is approximately 4 miles from Dunkeld and eighteen miles north of the vibrant city of Perth.
Dunkeld has a number of shops, these include a small supermarket, bakery, butcher’s shop and delicatessen. There are also restaurants and hotels in the village, as well as a medical centre and primary school.

Cottar House is a unique property sitting in beautiful garden grounds, with shrubs and fruit trees. The exterior of the cottage retains much of its original charm, whilst the interior has been brought up to date for modern living, retaining a few original features which add to its appeal.
Within the garden grounds is a single garage, a summer house and a garden shed.
There are extensive views of the surrounding countryside, with a backdrop of hill and forest.
The garden has sitting out areas, including a raised decked terrace located off the kitchen; perfect for al fresco dining or morning coffee.

The living accommodation is formed over two floors, with all of the living space on the upper level and comprises kitchen, living room, double bedroom and bathroom. 
On the lower level there are two further double bedrooms and a large storage
area. All three double bedrooms are spacious and of a similar size.

The surrounding area has many delightful walks, great tracks for cyclists and plenty of fishing for anglers, including The Dalguise Fishings nearby. For keen golfers, Dunkeld and Birnam Golf Club is one of the most picturesque in Perthshire. Loch of the Lowes, near Dunkeld, is a designated wildlife reserve and a beautiful place for walking and cycling. 

Rumbling Bridge is just a few miles away, where it is possible to watch salmon leaping up the waterfall during the months of October and November. The nearby Hermitage and Tay Forest Park have some of Scotland’s tallest trees and offer far-reaching views of the lochs and mountains of the Highlands. There is a forest track located behind the cottage that climbs uphill where some wonderful views await. The track is ideal for both walking and cycling, and it leads on to The Hermitage. Water sports may be enjoyed on Loch Tay at Kenmore. There are also opportunities for hillwalkers within easy driving distance.

The central location is ideal for travelling in all directions, with good road links.

Key Features

  • 3 Bedrooms
  • 1 Bathroom
  • Detached Cottage
  • Covered area approx. 990 sqft
  • Council Tax Band D

Interested in this Property?

Make an enquiry via email

"*" indicates required fields

This field is for validation purposes and should be left unchanged.
Please use valid format e.g. 07123456789, +44 7123456789, +447123456789 #123, (07123) 456 789, etc
GDPR Consent*

OR

Contact our local expert or request a callback

Jamie Cockburn
Email Jamie Cockburn Request A Callback

Request A Call Back

"*" indicates required fields

This field is for validation purposes and should be left unchanged.
Please use valid format e.g. 07123456789, +44 7123456789, +447123456789 #123, (07123) 456 789, etc
GDPR Consent*

Featured Properties

Your saved properties

clyde logo white

Property Alerts.

Stay one step ahead of the market. Register with us today to receive property alters before the portals.

Register your details and property criteria below, and we will send you updates about homes that match your search criteria.

Tip: You can add multiple options/criteria after registration.