4 Mansion View

Cove, G84 0NX
Scroll

4 Mansion View

4 Mansion View

Cove, G84 0NX

Offers Over £75,000

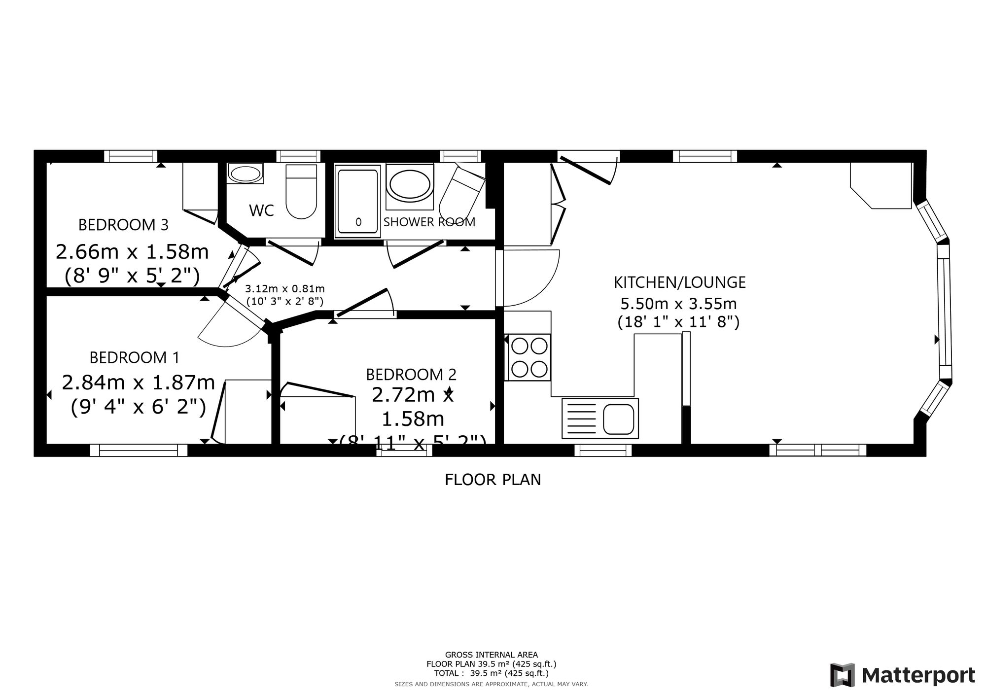
**CASH PURCHASE ONLY** Auchengower Park is a popular residential and holiday park that enjoys a spectacular setting on the shore of Loch Long. This delightful modern park home/chalet is pretty much brand new and is one of the larger options available, having three bedrooms.

From the property, there are surrounding the home are mono block paved parking areas. The property is finished to a very high specification, being modern, well presented and attractively decorated throughout. Entry is from the decked terrace at the side and the main door opens into a comfortable and bright open plan lounge/dining room/kitchen which has numerous windows on either side. The well equipped kitchen comes with a cooker, extractor hood and fridge/freezer. An internal hall leads to the three bedrooms (two double and one twin). There is a shower room (with shower enclosure, wc and wash hand basin), along with an adjacent wc compartment. The property is warmed by a system of LPG (gas) central heating and it is fully double glazed.

Full residential status comes with a lifetime lease (Ground rent/site fees are only £140 per month and include water, sewerage, lighting, general maintenance, grounds keeping and a live-in on-site manager). Being only a couple of years old, the property would be perfect as a holiday retreat or as a low maintenance, high specification and low cost main home. The park holds both a residential and holiday licence, allowing the owners to rent out their home when its not in use. Almost all of the homes are occupied by full-time permanent residential owners or owners using the property as a second home.

For those who enjoy the outdoor life it doesn't get much better, with an abundance of wildlife and stunning scenery on one’s doorstep. The delightful village of Cove and the adjoining village of Kilcreggan share a great community spirit and there is a doctor’s surgery and a range of convenience stores in the area along with a primary school and a pedestrian ferry at Kilcreggan linking the village to Gourock where a train station has services to Glasgow. Helensburgh is around fifteen miles away, where there are also train services to Glasgow and Edinburgh and where a wider selection of shops, supermarkets, bars, restaurants, cafes, banks and a post office can be found. The nearby Faslane Naval Base is a major employer in the area and can be reached in around fifteen to twenty minutes. A bus stop can be found on the shore road at the entrance to the park, with services to Kilcreggan and Helensburgh. Glasgow Airport is around forty five minutes' drive away.

Key Features

  • 3 Bedrooms
  • 2 Bathrooms
  • Other
  • Covered area approx. 419 sqft
  • Council Tax Band A

Interested in this Property?

Make an enquiry via email

"*" indicates required fields

This field is for validation purposes and should be left unchanged.
Please use valid format e.g. 07123456789, +44 7123456789, +447123456789 #123, (07123) 456 789, etc
GDPR Consent*

OR

Contact our local expert or request a callback

Seona Cashmore
t. 01436 647205
Email Seona Cashmore Request A Callback

Request A Call Back

"*" indicates required fields

This field is for validation purposes and should be left unchanged.
Please use valid format e.g. 07123456789, +44 7123456789, +447123456789 #123, (07123) 456 789, etc
GDPR Consent*

Featured Properties

Your saved properties

clyde logo white

Property Alerts.

Stay one step ahead of the market. Register with us today to receive property alters before the portals.

Register your details and property criteria below, and we will send you updates about homes that match your search criteria.

Tip: You can add multiple options/criteria after registration.