Sold STC

Clathy Park

Clathy, Crieff, PH7 3PH
Scroll

Clathy Park

Clathy Park

Clathy, Crieff, PH7 3PH

Offers Over £585,000

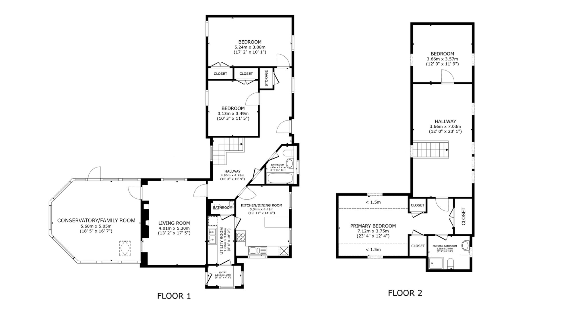
Clathy Park is a detached four bedroom villa positioned in approximately three acres of mature private garden grounds in the Hamlet of Clathy close to Perth. The house offers private family living for those that enjoy an outdoor rural lifestyle and the house comes with an additional field to the front of the house measuring a further three acres approximately.

The house is approached by a long private driveway leading to a large driveway which provides ample parking for several cars and has a double garage. The entrance vestibule leads to the welcoming hallway which in turn flows through to the main living room which has a door connecting to the conservatory overlooking the rear gardens. The dining kitchen has a selection of floor and wall mounted units and appliances and has a separate utility room with WC which has a door out to the gardens. There are two double bedrooms both with fitted wardrobes on the ground floor and a family bathroom completing the accommodation on this level.

The staircase rises to the large upper landing which provides an excellent home working space. The spacious primary bedroom has ample fitted wardrobe space and an en suite shower room. Bedroom four is located at the other end of the upper landing.

The property benefits from oil fired central heating and double glazing.

Key Features

  • 4 Bedrooms
  • 3 Bathrooms
  • Detached Villa
  • Covered area approx. 2,163 sqft
  • Council Tax Band F
  • Parking Driveway
  • Garden

Interested in this Property?

Make an enquiry via email

"*" indicates required fields

This field is for validation purposes and should be left unchanged.
Please use valid format e.g. 07123456789, +44 7123456789, +447123456789 #123, (07123) 456 789, etc
GDPR Consent*

OR

Contact our local expert or request a callback

Nicola Dow
Email Nicola Dow Request A Callback

Request A Call Back

"*" indicates required fields

This field is for validation purposes and should be left unchanged.
Please use valid format e.g. 07123456789, +44 7123456789, +447123456789 #123, (07123) 456 789, etc
GDPR Consent*

Featured Properties

Your saved properties

clyde logo white

Property Alerts.

Stay one step ahead of the market. Register with us today to receive property alters before the portals.

Register your details and property criteria below, and we will send you updates about homes that match your search criteria.

Tip: You can add multiple options/criteria after registration.