Under Offer

43 North End

Cambusbarron, Stirling, FK7 9LH
Scroll

43 North End

43 North End

Cambusbarron, Stirling, FK7 9LH

Offers Over £165,000

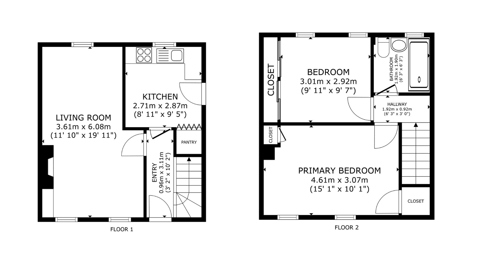
This attractive two-storey end of terrace villa presents an excellent opportunity for those seeking a well-proportioned home in a popular village setting. The ground floor welcomes you with a bright entrance hall leading through to a spacious lounge/dining room, offering ample space for both relaxation and family meals. The adjoining kitchen is well laid out with generous worktop areas and fitted units, making it ideal for everyday cooking and meal preparation.

On the first floor, the accommodation continues with a well-appointed landing giving access to two good-sized bedrooms, each offering comfortable living space and built-in storage potential. A modern shower room completes the upper level, fitted with contemporary fixtures.

Externally, the property benefits from its end-terrace position, providing added privacy and garden area to the front and rear. The villa sits within the established North End area of Cambusbarron, a neighbourhood originally developed for local authority housing and now appreciated for its community feel and convenient location.

Cambusbarron village offers a range of local amenities including shops, cafés, a primary school, and scenic walking routes. For wider services, Stirling city centre is less than two miles away, providing excellent transport links, retail facilities, and leisure options. This property represents an ideal purchase for first-time buyers, small families, or those looking to downsize while remaining close to both village charm and city convenience.

Key Features

  • 2 Bedrooms
  • 1 Bathroom
  • End of Terrace House
  • Covered area approx. 731 sqft
  • Property Age Bracket - 1940 - 1960
  • Council Tax Band B

Interested in this Property?

Make an enquiry via email

"*" indicates required fields

This field is for validation purposes and should be left unchanged.
Please use valid format e.g. 07123456789, +44 7123456789, +447123456789 #123, (07123) 456 789, etc
GDPR Consent*

OR

Contact our local expert or request a callback

Sophie Bechelli
Email Sophie Bechelli Request A Callback

Request A Call Back

"*" indicates required fields

This field is for validation purposes and should be left unchanged.
Please use valid format e.g. 07123456789, +44 7123456789, +447123456789 #123, (07123) 456 789, etc
GDPR Consent*

Featured Properties

Your saved properties

clyde logo white

Property Alerts.

Stay one step ahead of the market. Register with us today to receive property alters before the portals.

Register your details and property criteria below, and we will send you updates about homes that match your search criteria.

Tip: You can add multiple options/criteria after registration.