Sold

7 Mansion View Auchengower Park Shore Road

Cove, Helensburgh, G84 0NX
Scroll

7 Mansion View Auchengower Park Shore Road

7 Mansion View Auchengower Park Shore Road

Cove, Helensburgh, G84 0NX

Offers Over £78,500

Within Auchengower Park, on the shore of Loch Long, this delightful two bedroomed modern park home/chalet offers full residential status with a lifetime lease and would be perfect as a holiday retreat or as a low maintenance, high specification and low cost main home. The property enjoys a large decked terrace that affords all day long sunshine and wraps around the property. The property is finished to a very high specification, being modern, well presented and attractively decorated throughout.

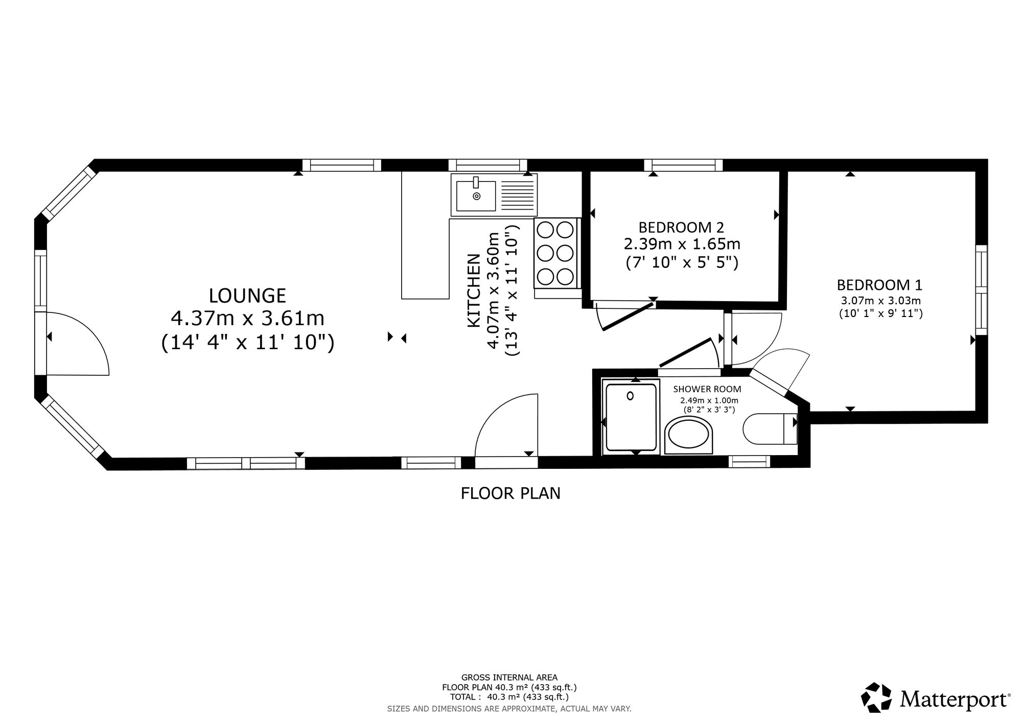
Designed for comfortable coastal living, the home features a bright, open plan layout with a well equipped kitchen which has wall mounted and counter level units as well as an oven and hob. From the kitchen is a large open plan lounge/dining area with patio doors leading out to a private decking area perfect for relaxing and taking in the stunning scenery and the fantastic views.

The master bedroom benefits from a Jack and Jill bathroom, accessible from both the bedroom and main hallway, complete with a walk in shower, wc, and wash hand basin. A second bedroom provides ideal space for guests, family, or working from home. A brand new boiler with a five year warranty and temperature control has recently been installed also.

Outside, there is a secure bike shed that can be included in the sale for no extra cost, and a separate purpose built utility shed currently housing a washer and dryer, but could be great storage if otherwise needed. The utility shed is plumbed in and has all of the required electrical points to the shed. There is a further shed unit which is also included in the sale. There is also ample space for parking making it perfect for family life, or guests visiting.

Located in the charming village of Cove on the scenic Rosneath Peninsula, this property offers a true escape from the hustle and bustle. Whether you're looking for a full time home, a weekend retreat, or a holiday investment, this is coastal living at its finest. Helensburgh is around fifteen miles away where there are also train services to Glasgow and Edinburgh and where a wider selection of shops, supermarkets, bars, restaurants, cafes, banks and a post office can be found. The nearby Faslane Naval Base is a major employer in the area and can be reached in around fifteen to twenty minutes. A bus stop can be found on the shore road at the entrance to the development, with services to Kilcreggan and Helensburgh. Glasgow Airport is around forty five minutes' drive away.

Key Features

  • 2 Bedrooms
  • 1 Bathroom
  • Detached Chalet
  • Covered area approx. 430 sqft
  • Council Tax Band A

Interested in this Property?

Make an enquiry via email

"*" indicates required fields

This field is for validation purposes and should be left unchanged.
Please use valid format e.g. 07123456789, +44 7123456789, +447123456789 #123, (07123) 456 789, etc
GDPR Consent*

OR

Contact our local expert or request a callback

Seona Cashmore
t. 01436 647205
Email Seona Cashmore Request A Callback

Request A Call Back

"*" indicates required fields

This field is for validation purposes and should be left unchanged.
Please use valid format e.g. 07123456789, +44 7123456789, +447123456789 #123, (07123) 456 789, etc
GDPR Consent*

Featured Properties

Your saved properties

clyde logo white

Property Alerts.

Stay one step ahead of the market. Register with us today to receive property alters before the portals.

Register your details and property criteria below, and we will send you updates about homes that match your search criteria.

Tip: You can add multiple options/criteria after registration.