Sold

34 Crookston Avenue, Cardonald

Glasgow, G52 3PS
Scroll

34 Crookston Avenue, Cardonald

34 Crookston Avenue, Cardonald

Glasgow, G52 3PS

Offers Over £229,000

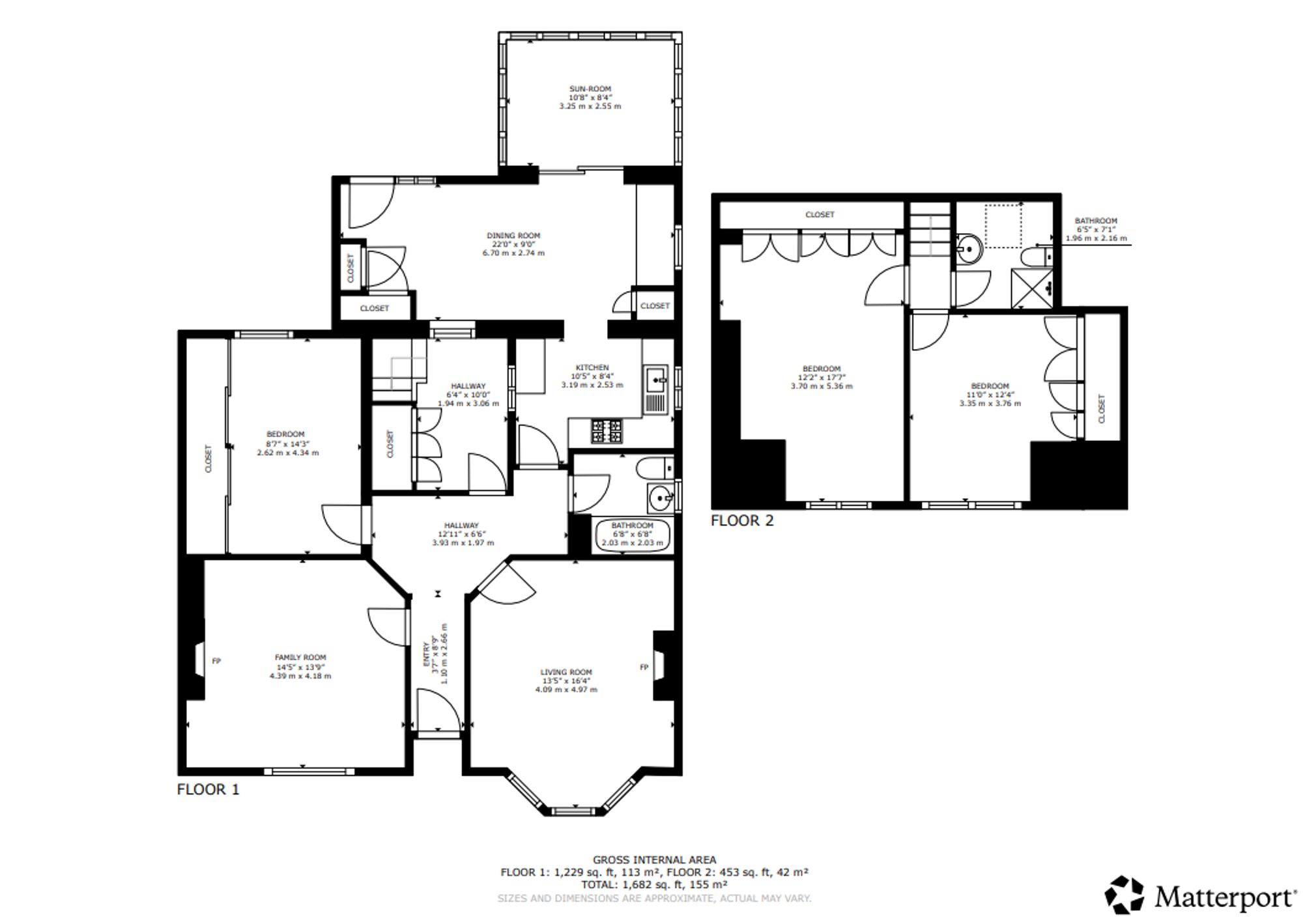
Set within a generous and level garden plot, this spacious semi-detached bungalow offers a flexible five-apartment layout, making it an ideal opportunity for a wide range of buyers, from families to those looking to downsize with room to grow. While the property would benefit from modernisation throughout, it presents a fantastic blank canvas with excellent potential to create a home tailored to personal style and needs.

The accommodation is immediately welcoming, accessed via a practical entrance porch which opens into a central reception hallway. To the front, a bright formal lounge features a gas fireplace at its focal point, creating a cosy and inviting living space. Also positioned to the front is a well-proportioned double bedroom, while two additional bedrooms sit to the side and rear either of which could be easily repurposed as a dining room, home office, or playroom. The generous extended kitchen offers ample space for formal dining and overlooks the rear garden, making it a practical and sociable heart of the home. Completing the ground floor is the main family bathroom, fitted with a three-piece suite containing shower over bath.

A staircase from the rear bedroom/dining room leads to the upper level, where two further well-sized bedrooms provide additional flexible living or sleeping accommodation.

Externally, the property enjoys a substantial and fully enclosed garden to the rear, offering both lawn and patio areas ideal for children, pets, and outdoor entertaining. A lengthy side driveway provides off-street parking for several vehicles and leads to a single detached garage, adding to the overall convenience and appeal.

Located in a peaceful residential pocket, this home benefits from excellent local amenities just a short distance away on Paisley Road West, including supermarkets, cafes, banks, and pharmacies. For commuters, regular bus services run nearby, and Crookston railway station is within comfortable walking distance, offering easy access to Glasgow city centre and beyond.

This is a rare opportunity to acquire a home with fantastic space, flexible layout, and real potential, all in a well-connected and desirable location.

Key Features

  • 3 Bedrooms
  • 2 Bathrooms
  • Semi Detached Bungalow
  • Covered area approx. 1,453 sqft
  • Council Tax Band E

Interested in this Property?

Make an enquiry via email

"*" indicates required fields

This field is for validation purposes and should be left unchanged.
Please use valid format e.g. 07123456789, +44 7123456789, +447123456789 #123, (07123) 456 789, etc
GDPR Consent*

OR

Contact our local expert or request a callback

Jennifer Thomson
t. 0141 571 3777
Email Jennifer Thomson Request A Callback

Request A Call Back

"*" indicates required fields

This field is for validation purposes and should be left unchanged.
Please use valid format e.g. 07123456789, +44 7123456789, +447123456789 #123, (07123) 456 789, etc
GDPR Consent*

Featured Properties

Your saved properties

clyde logo white

Property Alerts.

Stay one step ahead of the market. Register with us today to receive property alters before the portals.

Register your details and property criteria below, and we will send you updates about homes that match your search criteria.

Tip: You can add multiple options/criteria after registration.