Toward Bay

Toward, Dunoon, PA23 7UA
Scroll

Toward Bay

Toward Bay

Toward, Dunoon, PA23 7UA

Offers Over £355,000

This beautifully designed new build in Toward offers a rare opportunity to enjoy modern living in a tranquil coastal setting. The detached three bedroom home is thoughtfully arranged over two levels and boasts impressive views out over the water from multiple rooms.

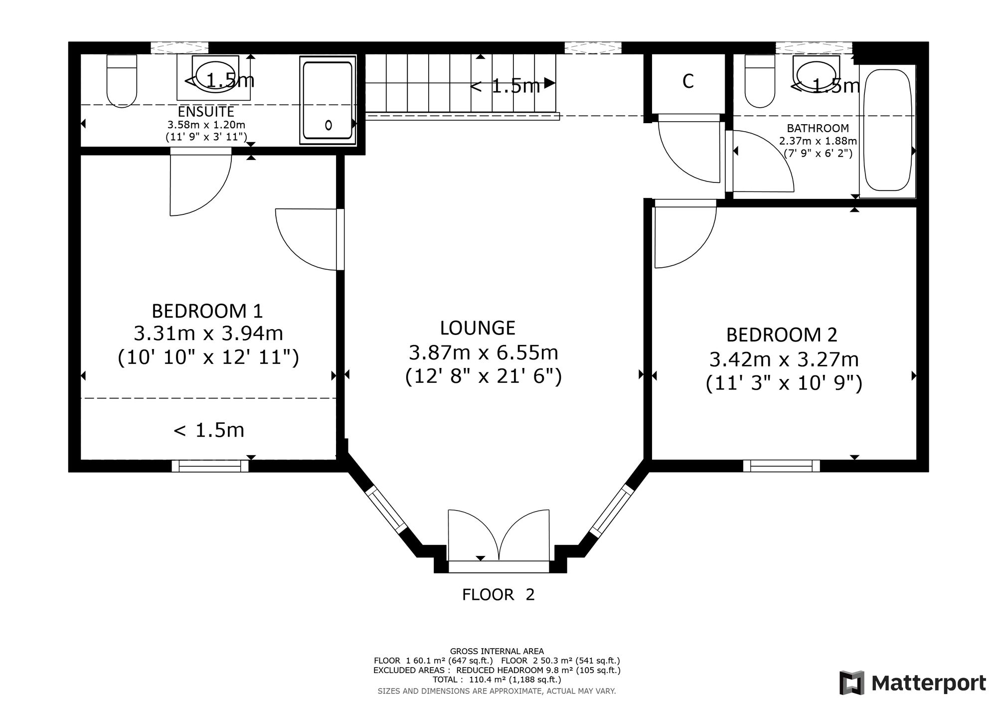
Upon entering the property, the ground floor opens out in to a spacious, bright and modern open plan lounge and dining area, finished to an impeccable standard. It comes complete with stylish herringbone flooring and expansive windows that flood the room with natural light and offer uninterrupted views towards the water, enhancing the sense of space and frames the surrounding scenery perfectly. There is a stunning kitchen, complete with wall mounted and counter level units, Silestone worktops and window sills, along with high end integrated appliances such as oven, hob, fridge/freezer and dishwasher. Moving on from the kitchen, but following the same modern style, is the utility room, with window out to the rear gardens, wall mounted and counter level units and wash hand basin. Also on this floor is a bright and spacious third double bedroom with fantastic views to the front of the property, perfect for families that require all on the level living. This room could also serve as a guest room, home office, or snug. Also on this level is a stunning Porcalenosa shower room, featuring shower enclosure, wc, wash hand basin, and heated towel rail, ideal for guests or busy family life. There is also a large storage cupboard on this floor, again perfect for family living. The entire ground level of this property has underfloor heating.

Moving to the upstairs accommodation, the master bedroom is a true retreat, large in size with views over the front gardens and complete with ensuite shower room. The ensuite is also Porcalenosa and completed to a high end specification with walk in shower enclosure, wc, wash hand basin and heated towel rail. A second double bedroom on this floor offers generous space and versatility and again comes with stunning views across the water. There is also a modern Porcalenosa family bathroom on this floor, again finished to a high end specification and comes complete with bath with shower overhead, wc, wash hand basin and heated towel rail. Finally, the main focal point to the upstairs accommodation is the fantastic, spacious and bright family room. The beautiful family room has French doors with a Juliet balcony overlooking the water offering a calming space to relax. It is perfect for family living, children to play, or a place to socialise. Another great sized storage cupboard can be found on this floor, along with a combination of column and K2 radiators. The property comes with full double glazing and has a mains gas combination boiler.

Outside the property is a beautiful front garden, with large double garage that comes with power and light laid on, and a large tarmacked driveway with room for numerous cars. At the back of the property, is a slabbed pathway, bedded areas and it is fenced around each side of the house, perfect for family living and for children to play outside.

Located in the heart of Toward, this home enjoys all the benefits of coastal living where you can wander the ruins of Toward Castle, once home to Clan Lamont, and explore the elegant Castle Toward mansion, steeped in wartime history and Highland charm. The local town of Dunoon is approximately 5 miles away and offers a vibrant seaside town on the Cowal Peninsula, known for its welcoming community, scenic waterfront, and beautiful walks. The area offers excellent local schools, shops, cafes, leisure facilities, and regular ferry services to Gourock, making it an ideal location for both permanent residents and those seeking a holiday escape.

Key Features

  • 3 Bedrooms
  • 3 Bathrooms
  • Detached House
  • Covered area approx. 1,184 sqft

Interested in this Property?

Make an enquiry via email

"*" indicates required fields

This field is for validation purposes and should be left unchanged.
Please use valid format e.g. 07123456789, +44 7123456789, +447123456789 #123, (07123) 456 789, etc
GDPR Consent*

OR

Contact our local expert or request a callback

Seona Cashmore
t. 01436 647205
Email Seona Cashmore Request A Callback

Request A Call Back

"*" indicates required fields

This field is for validation purposes and should be left unchanged.
Please use valid format e.g. 07123456789, +44 7123456789, +447123456789 #123, (07123) 456 789, etc
GDPR Consent*

Featured Properties

Your saved properties

clyde logo white

Property Alerts.

Stay one step ahead of the market. Register with us today to receive property alters before the portals.

Register your details and property criteria below, and we will send you updates about homes that match your search criteria.

Tip: You can add multiple options/criteria after registration.