128 Ingram Street, Flat 2/4

Glasgow, G1 1EJ
Scroll

128 Ingram Street, Flat 2/4

128 Ingram Street, Flat 2/4

Glasgow, G1 1EJ

Offers Over £185,000

This stunning, one-bedroom luxury apartment offers bright and spacious living space with the added benefit of secure underground parking in the heart of Glasgow's Merchant City.

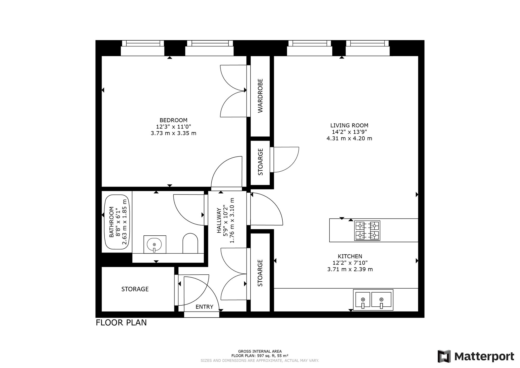
This beautiful flat is held within the eye-catching McIntyre and Hogg building which was originally constructed circa 1875.  The building is accessed via a secure entry intercom system with 24 CCTV at all entrances. The communal areas are well maintained by the appointed factor and a lift and stairs provide access to all levels. The attached photographs, floor plan and HD video tour will give a good idea to the size and layout of the flat.

However, in brief the accommodation extends to; welcoming entrance hallway with two storage cupboards, full bathroom with three-piece suite and shower over the bath, spacious double bedroom with large built in double wardrobe. The accommodation is completed by an open plan living room/kitchen which has large windows with views down Brunswick Street. The kitchen itself has a number of high gloss base and wall mounted units with tiled splash back and integrated appliances including a fridge/freezer, dishwasher, oven, washing machine, gas hob and oven hood. The property further benefits from custom built window shutters, a wet electric heating system.

Key Features

  • 1 Bedroom
  • 1 Bathroom
  • Flat
  • Covered area approx. 613 sqft
  • Council Tax Band E
  • Parking Allocated parking

Interested in this Property?

Make an enquiry via email

"*" indicates required fields

This field is for validation purposes and should be left unchanged.
Please use valid format e.g. 07123456789, +44 7123456789, +447123456789 #123, (07123) 456 789, etc
GDPR Consent*

OR

Contact our local expert or request a callback

Rachel Dewar
t. 0141 212 7014
Email Rachel Dewar Request A Callback

Request A Call Back

"*" indicates required fields

This field is for validation purposes and should be left unchanged.
Please use valid format e.g. 07123456789, +44 7123456789, +447123456789 #123, (07123) 456 789, etc
GDPR Consent*

Featured Properties

Your saved properties

clyde logo white

Property Alerts.

Stay one step ahead of the market. Register with us today to receive property alters before the portals.

Register your details and property criteria below, and we will send you updates about homes that match your search criteria.

Tip: You can add multiple options/criteria after registration.