Sold STC

2 Byres Road, Flat 3/2, Partick

Glasgow, G11 5JY
Scroll

2 Byres Road, Flat 3/2, Partick

2 Byres Road, Flat 3/2, Partick

Glasgow, G11 5JY

Offers Over £199,000

This two bedroom, South facing top floor tenement flat is presented in wonderful condition, just moments from all West End amenities.

Byres Road has a selection of bars, restaurants, boutiques and coffee shops and the newly opened Glasgow University buildings are literally minutes walk. Kelvingrove Park is extremely close by as is Kelvinhall subway station, making this an ideal base for those looking to travel for work/University.

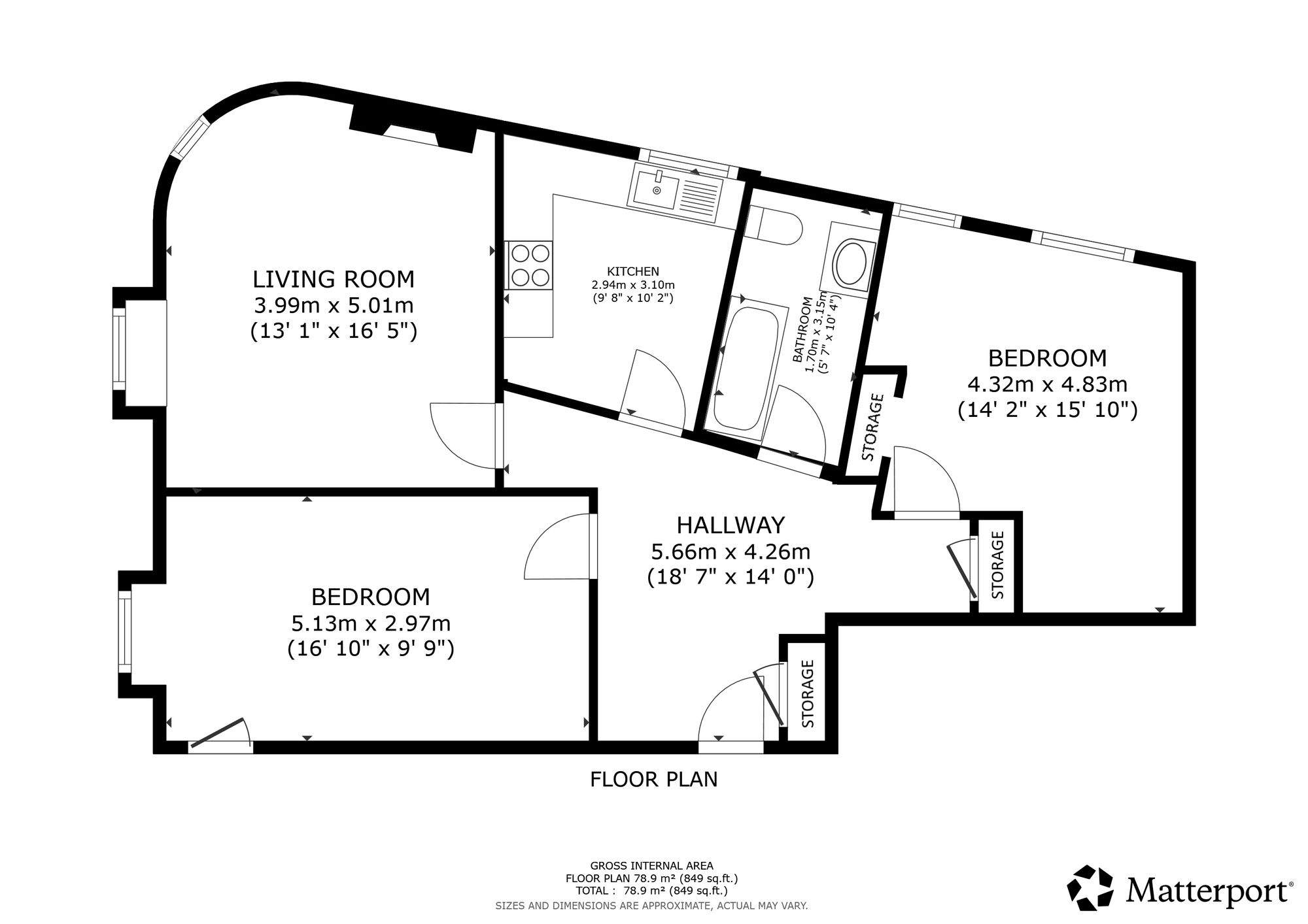
The building itself is accessed via a secure entry intercom system and the home for sale is found on the top floor. The flat has been upgraded throughout by the current owner and is presented in "turn key" condition. In brief, the accommodation extends to; welcoming entrance hallway with storage cupboards off, incredibly spacious South facing living room with dual aspect windows, a dining kitchen with shaker style units, two generous double bedrooms, and a fully tiled bathroom with three piece suite and shower over the bath.

Key Features

  • 2 Bedrooms
  • 1 Bathroom
  • Flat
  • Covered area approx. 839 sqft
  • Council Tax Band D
  • Parking On street
  • Communal Garden

Interested in this Property?

Make an enquiry via email

"*" indicates required fields

This field is for validation purposes and should be left unchanged.
Please use valid format e.g. 07123456789, +44 7123456789, +447123456789 #123, (07123) 456 789, etc
GDPR Consent*

OR

Contact our local expert or request a callback

Millie Gibbons
t. 0141 212 7026
Email Millie Gibbons Request A Callback

Request A Call Back

"*" indicates required fields

This field is for validation purposes and should be left unchanged.
Please use valid format e.g. 07123456789, +44 7123456789, +447123456789 #123, (07123) 456 789, etc
GDPR Consent*

Featured Properties

Your saved properties

clyde logo white

Property Alerts.

Stay one step ahead of the market. Register with us today to receive property alters before the portals.

Register your details and property criteria below, and we will send you updates about homes that match your search criteria.

Tip: You can add multiple options/criteria after registration.