Sold

15 Shiphaugh Place

Stirling, FK8 1UZ
Scroll

15 Shiphaugh Place

15 Shiphaugh Place

Stirling, FK8 1UZ

Offers Over £160,000

CLOSING DATE TUESDAY 27TH JANUARY 2026 @ 12 NOON - This well-presented ground floor flat is situated within the desirable Riverside area of Stirling, a well-established residential location known for its convenience and accessibility. A variety of local amenities, shops and services are available nearby, while Stirling city centre is within easy reach, offering further retail, leisure and transport links. The property is also very well positioned for families, being located close to the local primary school. The accommodation is all on one level, making it practical and accessible for a wide range of purchasers.

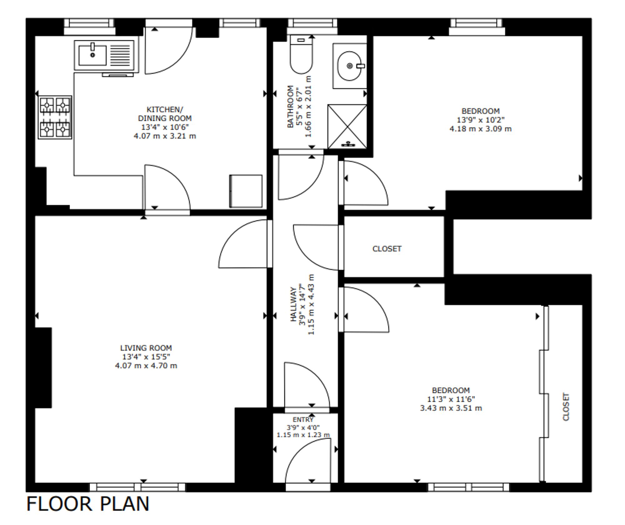
Internally, the accommodation comprises a welcoming entrance hall which provides access to all main apartments. The lounge is of comfortable size and offers a pleasant space for everyday living and relaxation. The kitchen is positioned off the hallway and provides adequate storage and worktop space. There are two well-proportioned bedrooms, both suitable for bedroom use or alternatively for home working or guest accommodation. A shower room completes the internal layout.

Externally, the property benefits from private garden grounds to the front, bounded by timber fencing and hedging, offering a good degree of privacy and outdoor space. To the rear, there is a shared grassed lawn along with a communal garden and drying area directly behind the flat, providing additional outdoor amenity. On-street parking is available to the front of the property, while to the rear there is ample off-road parking, offering excellent convenience for both residents and visitors.

Key Features

  • 2 Bedrooms
  • 1 Bathroom
  • Flat
  • Covered area approx. 775 sqft
  • Council Tax Band B

Interested in this Property?

Make an enquiry via email

"*" indicates required fields

This field is for validation purposes and should be left unchanged.
Please use valid format e.g. 07123456789, +44 7123456789, +447123456789 #123, (07123) 456 789, etc
GDPR Consent*

OR

Contact our local expert or request a callback

Carol Clydesdale
t. 01786 471777
Email Carol Clydesdale Request A Callback

Request A Call Back

"*" indicates required fields

This field is for validation purposes and should be left unchanged.
Please use valid format e.g. 07123456789, +44 7123456789, +447123456789 #123, (07123) 456 789, etc
GDPR Consent*

Featured Properties

Your saved properties

clyde logo white

Property Alerts.

Stay one step ahead of the market. Register with us today to receive property alters before the portals.

Register your details and property criteria below, and we will send you updates about homes that match your search criteria.

Tip: You can add multiple options/criteria after registration.