Under Offer

7 Upper Glen Road

Bridge Of Allan, Stirling, FK9 4PX
Scroll

7 Upper Glen Road

7 Upper Glen Road

Bridge Of Allan, Stirling, FK9 4PX

Offers Over £645,000

Enjoying a peaceful setting within one of Bridge of Allan’s most desirable addresses, this impressive detached villa commands an attractive outlook across the town of Bridge of Allan. The property offers expansive family accommodation extending to approximately 205 sqm, and sits comfortably within a mature residential area renowned for its quality homes, strong sense of community and close proximity to an excellent range of local amenities, schooling and transport links.

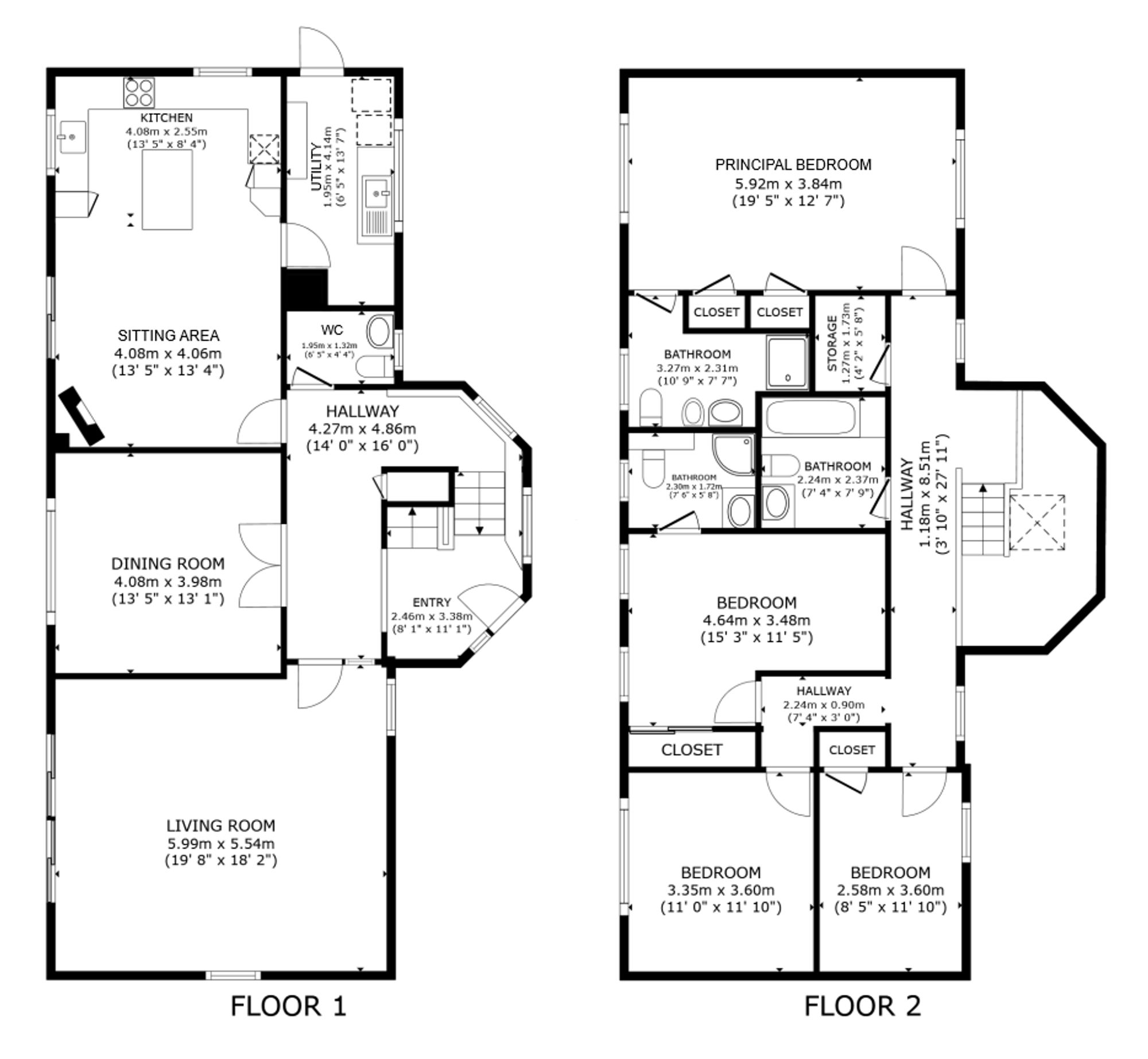
The interior is generously proportioned throughout, with a welcoming entrance hall and stairwell setting the tone for the space and flexibility on offer. The ground floor flows beautifully, providing a bright and elegant lounge, a formal dining room ideal for both everyday living and entertaining, and a well-equipped kitchen/diner that forms the heart of the home. A separate utility room and WC add further practicality, making the layout particularly well suited to modern family life.

On the upper level, a spacious landing is enhanced by skylights that allows natural light to filter through the centre of the home, creating a bright and open feel. From here, there is access to the principal bedroom with ensuite bathroom, a second bedroom with ensuite shower room, two further well-sized bedrooms and a family bathroom, providing comfortable accommodation for family members and guests.

Externally, the home is surrounded by private garden grounds that provide a pleasant balance of lawned and landscaped areas, all enclosed by timber fencing and mature hedging to ensure privacy. A double detached garage adds excellent storage and secure parking, complemented by a generous driveway to the front providing ample off-street parking. With its elevated position, desirable outlook, substantial accommodation and prime location within Bridge of Allan, this outstanding home represents a rare opportunity to secure a quality property in an area that remains perennially popular.

Key Features

  • 4 Bedrooms
  • 3 Bathrooms
  • Detached House
  • Covered area approx. 2,206 sqft
  • Council Tax Band G

Interested in this Property?

Make an enquiry via email

"*" indicates required fields

This field is for validation purposes and should be left unchanged.
Please use valid format e.g. 07123456789, +44 7123456789, +447123456789 #123, (07123) 456 789, etc
GDPR Consent*

OR

Contact our local expert or request a callback

Sophie Bechelli
Email Sophie Bechelli Request A Callback

Request A Call Back

"*" indicates required fields

This field is for validation purposes and should be left unchanged.
Please use valid format e.g. 07123456789, +44 7123456789, +447123456789 #123, (07123) 456 789, etc
GDPR Consent*

Featured Properties

Your saved properties

clyde logo white

Property Alerts.

Stay one step ahead of the market. Register with us today to receive property alters before the portals.

Register your details and property criteria below, and we will send you updates about homes that match your search criteria.

Tip: You can add multiple options/criteria after registration.