Sold STC

4 Cromarty Gardens

Clarkston, Glasgow, G76 8PA
Scroll

4 Cromarty Gardens

4 Cromarty Gardens

Clarkston, Glasgow, G76 8PA

Set near the foot of a quiet cul-de-sac and capturing picturesque views to the front towards the striking Netherton Braes, this extremely well-ordered mid terrace home is notably bright throughout and offers a stylishly neutral interior.

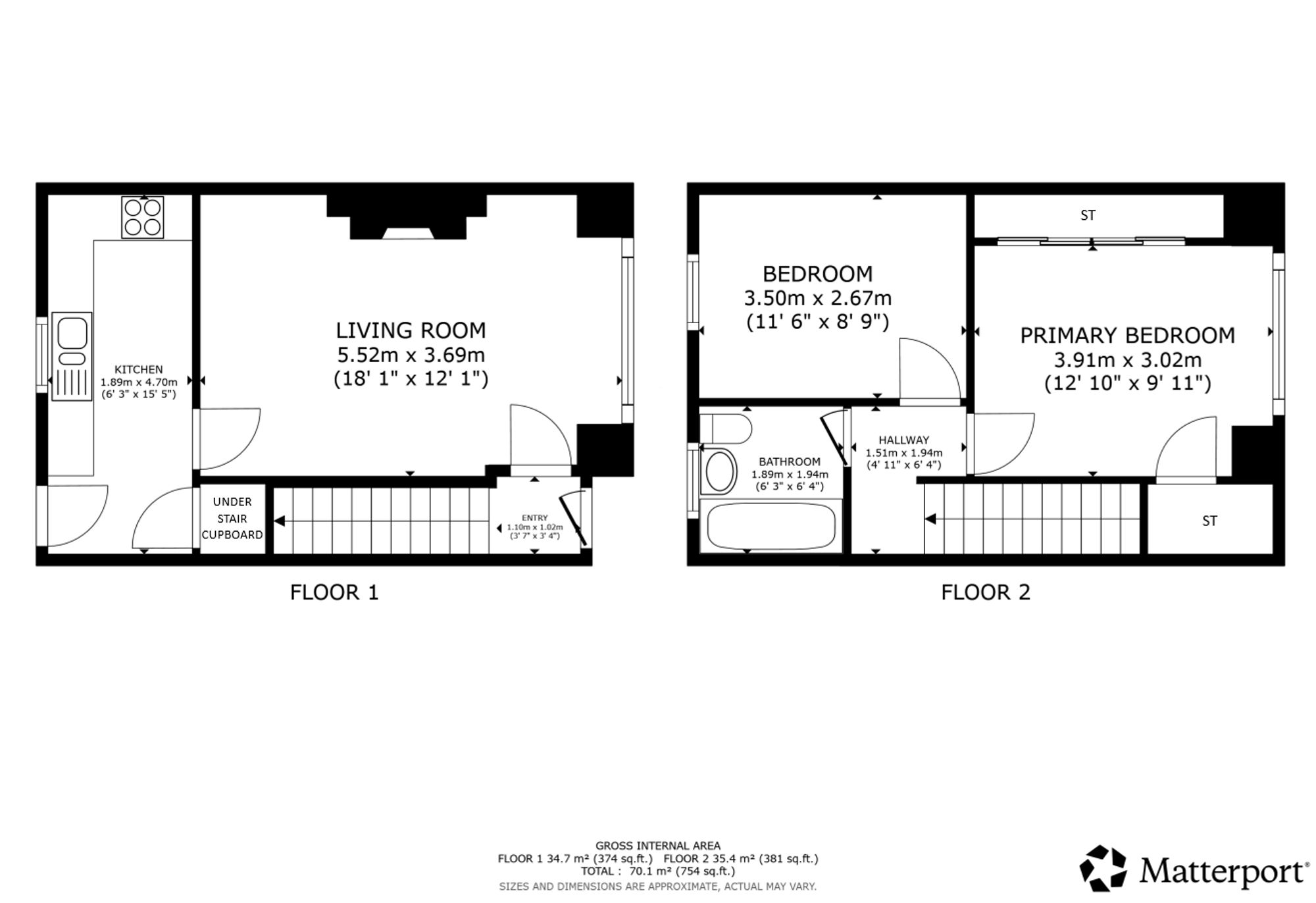
Set over two levels; the welcoming accommodation comprises entrance vestibule, spacious lounge with box-bay window formation, comprehensively fitted kitchen with allocated space for breakfasting table and sizeable storage cupboard off, two generous upper floor bedrooms and a re-fitted family bathroom featuring white three-piece suite with overhead shower attachment and contemporary wet-wall finish. There is also an expansive attic in situ which is floored for storage purposes and accessed from the upper floor landing by means of a pull-down ladder.

Similarly impressive externally, this home sits slightly proud of pavement level to the front securing terrific privacy whilst, to the rear, there is an attractive and predominantly level garden incorporating an attractive feature sun deck as well as an area of level lawn. These combine to promote the ideal family-friendly proposition.

It should also be noted that this particular home sits within comfortable walking distance of a riverside walkway which connects directly with Linn Park via an attractive off-road path. Moreover, this particular address feeds in to highly sought-after East Renfrewshire schooling at both primary and secondary levels.

Key Features

  • 2 Bedrooms
  • 1 Bathroom
  • Mid-Terraced House
  • Covered area approx. 753 sqft
  • Property Age Bracket - 1910 - 1940
  • Council Tax Band D
  • Garden

Interested in this Property?

Make an enquiry via email

"*" indicates required fields

This field is for validation purposes and should be left unchanged.
Please use valid format e.g. 07123456789, +44 7123456789, +447123456789 #123, (07123) 456 789, etc
GDPR Consent*

OR

Contact our local expert or request a callback

Ann Forbes
t. 0141 212 7029
Email Ann Forbes Request A Callback

Request A Call Back

"*" indicates required fields

This field is for validation purposes and should be left unchanged.
Please use valid format e.g. 07123456789, +44 7123456789, +447123456789 #123, (07123) 456 789, etc
GDPR Consent*

Featured Properties

Your saved properties

clyde logo white

Property Alerts.

Stay one step ahead of the market. Register with us today to receive property alters before the portals.

Register your details and property criteria below, and we will send you updates about homes that match your search criteria.

Tip: You can add multiple options/criteria after registration.