Under Offer

57 Parkdyke

Stirling, FK7 9LS
Scroll

57 Parkdyke

57 Parkdyke

Stirling, FK7 9LS

Offers Over £325,000

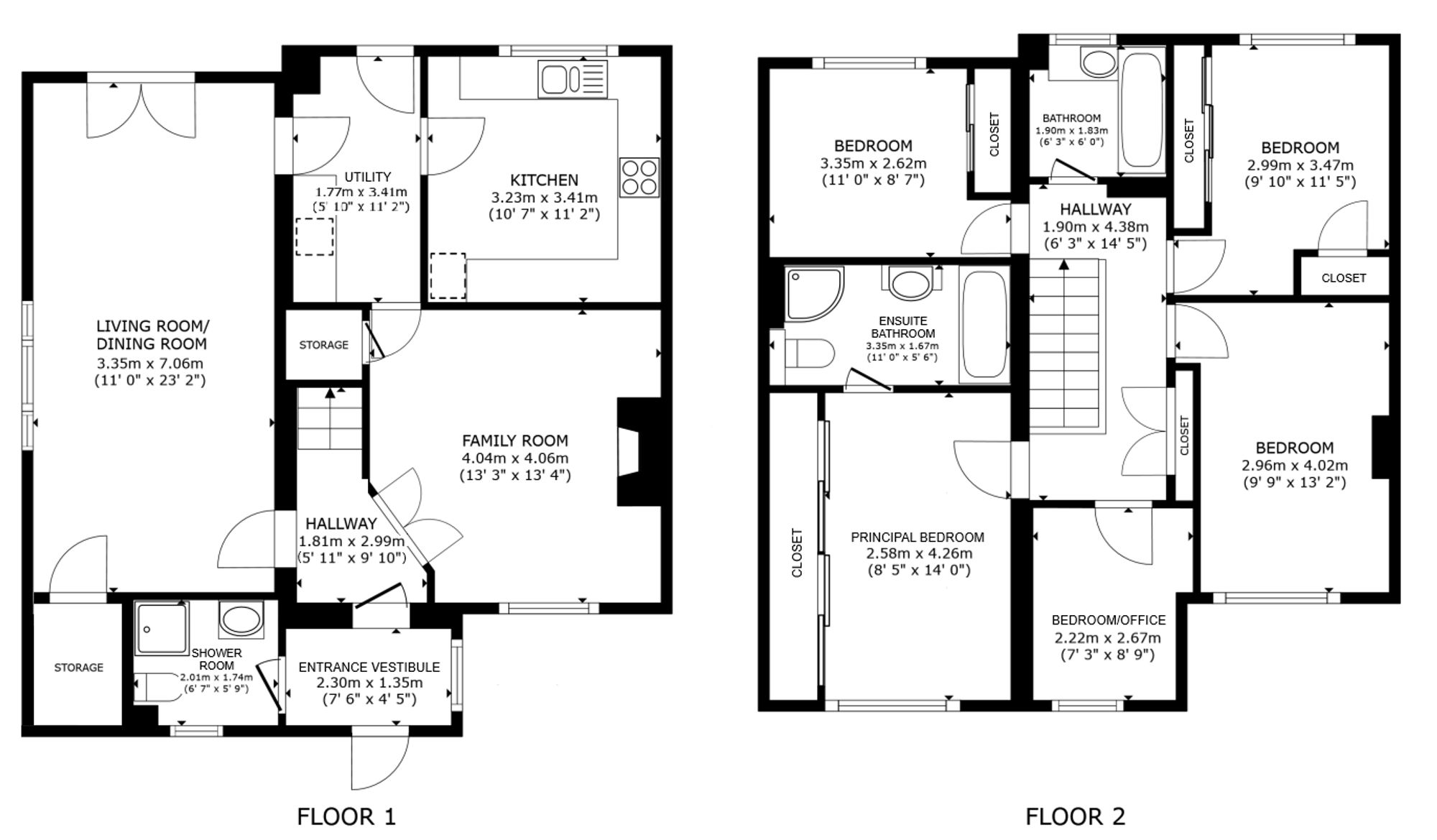
Immaculately presented and extending to approximately 157 m², this impressive extended semi-detached villa offers spacious and highly flexible accommodation. Situated within a sought-after residential area of Stirling, the property enjoys a peaceful setting with outlooks towards the Touch Hills and is located close to King's Park, while remaining within around a 15-minute walk of Stirling High School, a 10-minute walk of the local primary school, and convenient access to local amenities.

The ground floor begins with a welcoming entrance vestibule leading to a bright reception hall. A generous lounge/diner provides excellent entertaining space, complemented by a separate sitting room featuring a charming open fire, offering additional versatility and a cosy focal point. The well-appointed kitchen is supported by a practical utility room, while a ground-floor shower room and large storage cupboard enhance everyday convenience.

Upstairs, the upper hall leads to a spacious master bedroom with ensuite bathroom, four further well-proportioned bedrooms, and a family bathroom, providing ample accommodation for growing families or those requiring home working space.

Externally, private garden grounds surround the property and are enclosed by timber fencing, creating a secure and attractive outdoor environment. A double driveway leads to the carport and single garage positioned to the rear, providing excellent parking and sheltered storage. Overall, this is a substantial, beautifully maintained home combining space, practicality, and a highly desirable location.

Key Features

  • 5 Bedrooms
  • 3 Bathrooms
  • Semi Detached House
  • Covered area approx. 1,689 sqft
  • Council Tax Band E

Interested in this Property?

Make an enquiry via email

"*" indicates required fields

This field is for validation purposes and should be left unchanged.
Please use valid format e.g. 07123456789, +44 7123456789, +447123456789 #123, (07123) 456 789, etc
GDPR Consent*

OR

Contact our local expert or request a callback

Tara Sinclair
t. 01786 471777
Email Tara Sinclair Request A Callback

Request A Call Back

"*" indicates required fields

This field is for validation purposes and should be left unchanged.
Please use valid format e.g. 07123456789, +44 7123456789, +447123456789 #123, (07123) 456 789, etc
GDPR Consent*

Featured Properties

Your saved properties

clyde logo white

Property Alerts.

Stay one step ahead of the market. Register with us today to receive property alters before the portals.

Register your details and property criteria below, and we will send you updates about homes that match your search criteria.

Tip: You can add multiple options/criteria after registration.