Sold

120 Lochleven Road, Flat 1/1, Battlefield

Glasgow, G42 9SJ
Scroll

120 Lochleven Road, Flat 1/1, Battlefield

120 Lochleven Road, Flat 1/1, Battlefield

Glasgow, G42 9SJ

Offers Over £169,000

Enjoying a prime position in the ever-popular Battlefield district of Glasgow and presented to the market in superb condition throughout, this stylish one-bedroom first floor flat offers an exceptional opportunity to acquire traditional period accommodation with a modern touch perfectly suited to first-time buyers or young professionals.

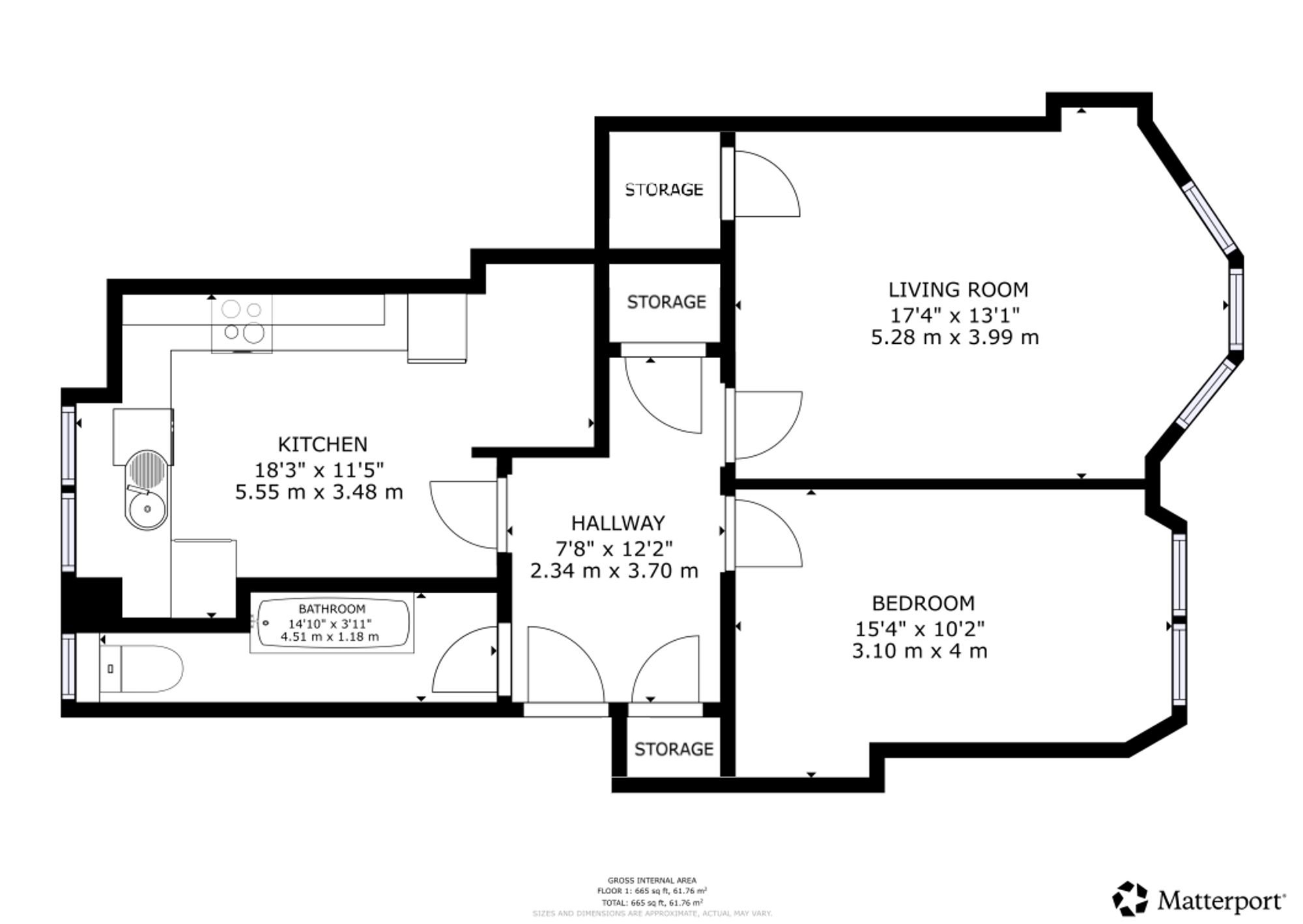
Occupying a prime first floor position within a traditional red sandstone tenement, this attractive property blends classic charm with contemporary touches. Notable features include secure door entry, gas-fired central heating with combi boiler, and double glazing throughout. Residents also benefit from a well-maintained communal garden to the rear, which includes drying and refuse facilities.

The accommodation comprises: a welcoming reception hall with a large storage cupboard, a galley style bathroom, a bright and generously sized lounge with a beautiful bay window, a modern dining-sized kitchen fitted with a range of wall and base mounted units, complemented by integrated appliances and ample space for dining. To complete the accommodation there is a rear facing double bedroom.

Set within one of the Southside’s most desirable neighbourhoods, the property enjoys close proximity to a wide variety of amenities on Battlefield Road and Sinclair Drive while Silverburn Shopping Centre is just a short drive away for more extensive retail and dining options. Outdoor enthusiasts will appreciate nearby Queen’s Park and Pollok Park, while excellent public transport links via nearby Langside and Cathcart train stations ensure easy access to Glasgow City Centre and beyond.

Key Features

  • 1 Bedroom
  • 1 Bathroom
  • Flat
  • Covered area approx. 656 sqft
  • Council Tax Band B

Interested in this Property?

Make an enquiry via email

"*" indicates required fields

This field is for validation purposes and should be left unchanged.
Please use valid format e.g. 07123456789, +44 7123456789, +447123456789 #123, (07123) 456 789, etc
GDPR Consent*

OR

Contact our local expert or request a callback

Jennifer Thomson
t. 0141 571 3777
Email Jennifer Thomson Request A Callback

Request A Call Back

"*" indicates required fields

This field is for validation purposes and should be left unchanged.
Please use valid format e.g. 07123456789, +44 7123456789, +447123456789 #123, (07123) 456 789, etc
GDPR Consent*

Featured Properties

Your saved properties

clyde logo white

Property Alerts.

Stay one step ahead of the market. Register with us today to receive property alters before the portals.

Register your details and property criteria below, and we will send you updates about homes that match your search criteria.

Tip: You can add multiple options/criteria after registration.